Vuokrataan toimistotilat - Espoo
Derby Business Park, Tarvonsalmenkatu 13-19, Perkkaa, 02600 Espoo #10768155
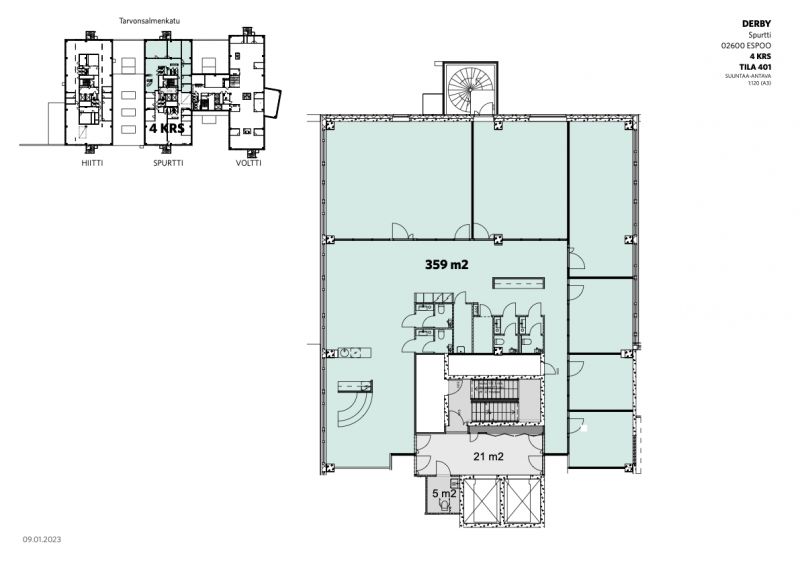
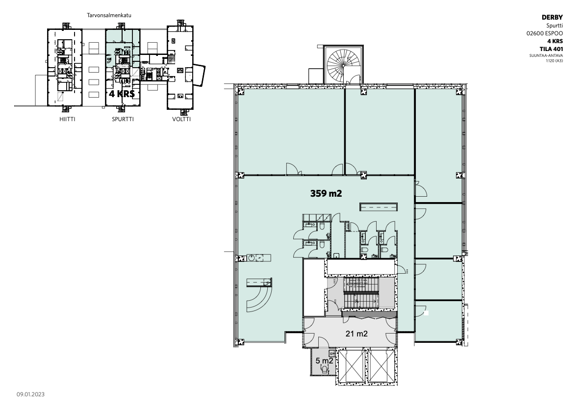
Muuntojoustava neljännen kerroksen 359 m² toimisto Turunväylän varrella Perkkaalla.
Osoite
Tarvonsalmenkatu 13-19, 02600 Espoo
Tilatyyppi
Toimistotilaa
359 m2
Pohjapiirros
Kiinteistö
Muuntojoustava neljännen kerroksen toimistotila, jossa erikokoisia 10-40 m² työtiloja, oma keittiö, oleskelutila sekä wc-tilat. Mahdollista rakentaa esimerkiksi työhuoneita tarpeen mukaan.
Kiinteistö sijaitsee aivan Turunväylän läheisyydessä.
Ilmoituksen kuvat ovat yleiskuvia kiinteistön eri tiloista.
Korkealaatuisia tiloja LEED-sertifioiduissa toimistorakennuksissa. Vuonna 2013 rakennettu Derby Business Park koostuu kolmesta modernista toimistorakennuksesta, joissa on kahdeksan maanpäällistä kerrosta ja joiden kokonaispinta-ala on 19 000 neliömetriä.
Derby Business Parkin asiakkaat pääsevät nauttimaan erinomaisista palveluista, kuten suositusta ravintolasta, saunasta, kuiva- ja autopesusta. Toimistorakennukset ovat saavuttaneet korkeimman LEED-sertifiointitilan LEED Platinumin. Sen saa sitoutumalla tiukkoihin ympäristöperusteisiin koskien yrityspuiston sijaintia, suunnittelua ja käyttöä. Derby voitti Green Building Finlandin Suomen viihtyisin ja energiatehokkain toimitila 2014 kilpailun.
Nimi Derby on peräisin läheiseltä raviradalta. Derby Business Park sijaitsee Turun moottoritien varrella ja lähellä Kehä I risteystä Espoon Perkkaalla. Vuonna 2013 valmistuneista toimitiloista on upeat näkymät merelle. Viereinen kaupungin virkistysalue tarjoaa vehreää maisemaa pohjoisen puoleisille ikkunoille. Työmatkan Derbyyn voi helposti taittaa vaikka polkupyörällä, joita varten löytyy säilytystilat ja pyöräilijöille on myös pesutilat. Autoille on yli 500 pysäköintipaikkaa.
Kiinteistö sijaitsee aivan Turunväylän läheisyydessä.
Ilmoituksen kuvat ovat yleiskuvia kiinteistön eri tiloista.
Korkealaatuisia tiloja LEED-sertifioiduissa toimistorakennuksissa. Vuonna 2013 rakennettu Derby Business Park koostuu kolmesta modernista toimistorakennuksesta, joissa on kahdeksan maanpäällistä kerrosta ja joiden kokonaispinta-ala on 19 000 neliömetriä.
Derby Business Parkin asiakkaat pääsevät nauttimaan erinomaisista palveluista, kuten suositusta ravintolasta, saunasta, kuiva- ja autopesusta. Toimistorakennukset ovat saavuttaneet korkeimman LEED-sertifiointitilan LEED Platinumin. Sen saa sitoutumalla tiukkoihin ympäristöperusteisiin koskien yrityspuiston sijaintia, suunnittelua ja käyttöä. Derby voitti Green Building Finlandin Suomen viihtyisin ja energiatehokkain toimitila 2014 kilpailun.
Nimi Derby on peräisin läheiseltä raviradalta. Derby Business Park sijaitsee Turun moottoritien varrella ja lähellä Kehä I risteystä Espoon Perkkaalla. Vuonna 2013 valmistuneista toimitiloista on upeat näkymät merelle. Viereinen kaupungin virkistysalue tarjoaa vehreää maisemaa pohjoisen puoleisille ikkunoille. Työmatkan Derbyyn voi helposti taittaa vaikka polkupyörällä, joita varten löytyy säilytystilat ja pyöräilijöille on myös pesutilat. Autoille on yli 500 pysäköintipaikkaa.
Sijainti
Derby Business Parkin kolme toimistorakennusta sijaitsevat Kehä I:n ja Turunväylän välissä.
Pysäköinti
Kiinteistöllä on oma pysäköintitalo. Vierasparkkipaikat talojen edessä. Ilmaiset sähköautojen latauspisteet kiinteistön edessä.
Kulkuyhteydet
Bussipysäkki 400 m, Juna-asema 1,4 km, Lentoasema 15 km
Vapautuu
Heti
Kerros
4
Energiatehokkuusluokka
Ei lain edellyttämää energiatodistusta
Näkyvällä paikalla
Hissi
Ota yhteyttä
ScanReal Oy LKV
Opus Business Park
Hitsaajankatu 24
00810 Helsinki
info@scanreal.fi
Puh:
Näytä puhelinnumero
020 730 8830
Sopivat toimitilat yhdellä otolla!
Kartoitamme toimitilatarpeesi ja etsimme yrityksellesi parhaiten sopivat vapaat toimitilat. Koska vuokranantajat maksavat palvelumme, on tämä yrityksellesi veloituksetonta.
OTA YHTEYTTÄ - SOVI NÄYTTÖ!
Kaikki kohteemme eivät ole netissä, kerro tilatarpeesi niin kartoitamme vaihtoehdot.
Palvelumme on tilanhakijalle ilmainen
Pyydä lisätietoa
