Vuokrataan toimistotilat - Oulu
Saaristonkatu 22, Keskusta, 90100 Oulu #10767904
Osoite
Saaristonkatu 22, 90100 Oulu
Tilatyyppi
Toimistotilaa
69 m2
Muuta
Vuokrattavana Saaristonkatu 22, 90100 Oulu sijaitsevasta, Sammakkotalona tunnetusta rakennuksesta toimistotilaa. Sijainti ihan ydinkeskustan tuntumassa.
Rakennus on peruskorjattu ja toimistohuoneistot ovat nykyaikaisia. Piha-alue on asfaltoitu ja vieressä on myös hyvin asiakaspysäköintipaikkoja.
Vuokrattavana olevat huoneistot ovat rakennuksen 2. kerroksessa.
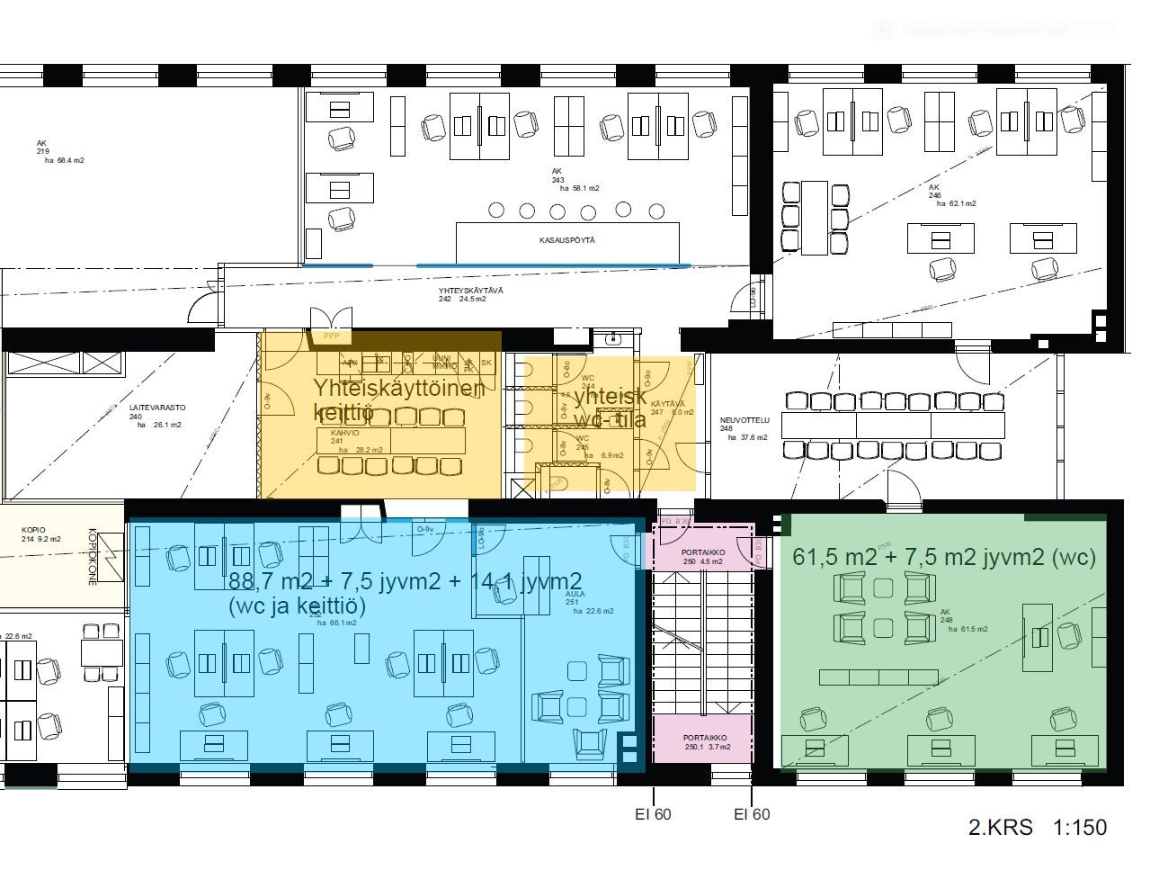
Vuokrattava kokonaispinta-ala 2. krs noin 61,5 m2 toimistotiloista sekä
- käyttöoikeudesta wc- tiloihin, joista jyvitys 7,5 m2
Vuokrattava pinta-ala on n. 69 jyvm2. (pohjakuvan vihreä alue)
Pääomavuokra 20,00 eur/ m2 + alv
Hoitovuokra 5,00 eur/ m2/ kk + alv.
Hoitovuokra tarkistetaan vuosittain. Hoitovuokraan sisältyy lämmitys, käyttösähkö, vesi- ja jätevesimaksu, jätemaksu sekä porraskäytävien siivous.
Vuokra sidotaan indeksiin, minimikorotus 1x vuodessa 3%.
Vuokralainen vastaa vuokra-aikana omien tilojensa siivouksesta, valaisinhuollosta sekä kulunvalvonnastaan.
Vuokrattavana autopaikkoja (pistoke) 65,00e/kpl/kk + alv.
Pyydä esittely kohteeseen!
Rakennus on peruskorjattu ja toimistohuoneistot ovat nykyaikaisia. Piha-alue on asfaltoitu ja vieressä on myös hyvin asiakaspysäköintipaikkoja.
Vuokrattavana olevat huoneistot ovat rakennuksen 2. kerroksessa.
Vuokrattava kokonaispinta-ala 2. krs noin 61,5 m2 toimistotiloista sekä
- käyttöoikeudesta wc- tiloihin, joista jyvitys 7,5 m2
Vuokrattava pinta-ala on n. 69 jyvm2. (pohjakuvan vihreä alue)
Pääomavuokra 20,00 eur/ m2 + alv
Hoitovuokra 5,00 eur/ m2/ kk + alv.
Hoitovuokra tarkistetaan vuosittain. Hoitovuokraan sisältyy lämmitys, käyttösähkö, vesi- ja jätevesimaksu, jätemaksu sekä porraskäytävien siivous.
Vuokra sidotaan indeksiin, minimikorotus 1x vuodessa 3%.
Vuokralainen vastaa vuokra-aikana omien tilojensa siivouksesta, valaisinhuollosta sekä kulunvalvonnastaan.
Vuokrattavana autopaikkoja (pistoke) 65,00e/kpl/kk + alv.
Pyydä esittely kohteeseen!
Vapautuu
Kysy
Kerros
2
Ota yhteyttä
Catella Property Oy
Kirkkokatu 6, 5. krs, 90100 OULU
Näytä puhelinnumero
010 5220 100
Pekka Laurila-Harju
Näytä puhelinnumero
010 5220 603
Pyydä lisätietoa
