Vuokrataan näyttelytilat, varastotilat - Riihimäki
Puhdistamontie 12, 11100 Riihimäki #10767070
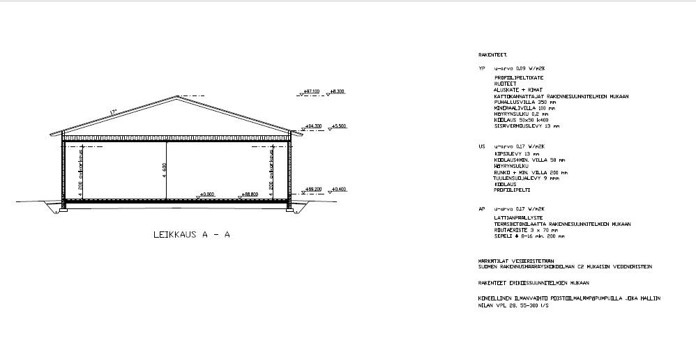
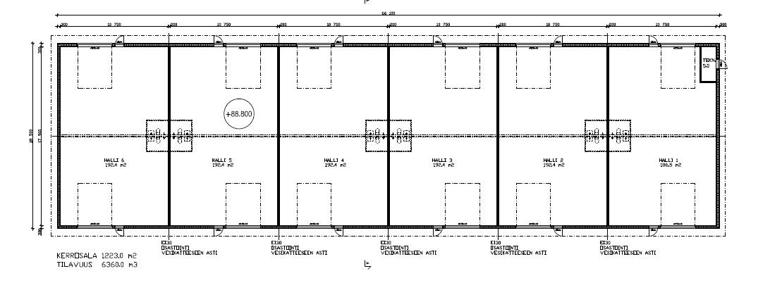
Juuri valmistunut varastokiinteistö Riihimäen keskustan tuntumassa. Halli on 123 m2. Korkeus 3,7m, Nosto-ovella, leveys 3,5 ja korkeus 3,3. Lattia on kovapinnoitettu betoni. Tilassa on lattiakaivo, pieni wc tila. Mahdollisuus rakentaa erillinen toimistotila. Lämmitys ja jäähdytys kahdella ilmalämpöpumpulla sekä Lattiassa on myös oven edessä upotettu sähkökaapelit.
Jokaisessa tilassa on oma sähkö- ja vesimittaus, joka laskutetaan kulutuksen mukaan. Hallin edessä on muutama pysäköintipaikka (n 100 m2). Kiinteistön pihapiirissä on vuokrattavissa myös kylmää hallitilaa. Piha on kokonaan asfaltoitu ja aidattu. Tilassa on voimavirta
Lisätiedot ja esittelyt kohteesta 0400891057/0207290710
Lisää kohteita www.premises.fiKerros: katutaso
CRE PREMISES
Puh. Näytä puhelinnumero 020 7290 710
Vantaankoskentie 14
01670 VANTAA
