Vuokrataan toimistotilat, varastotilat - Vantaa
Postimiehenkuja 4, Viinikkala, 01530 Vantaa #10766658
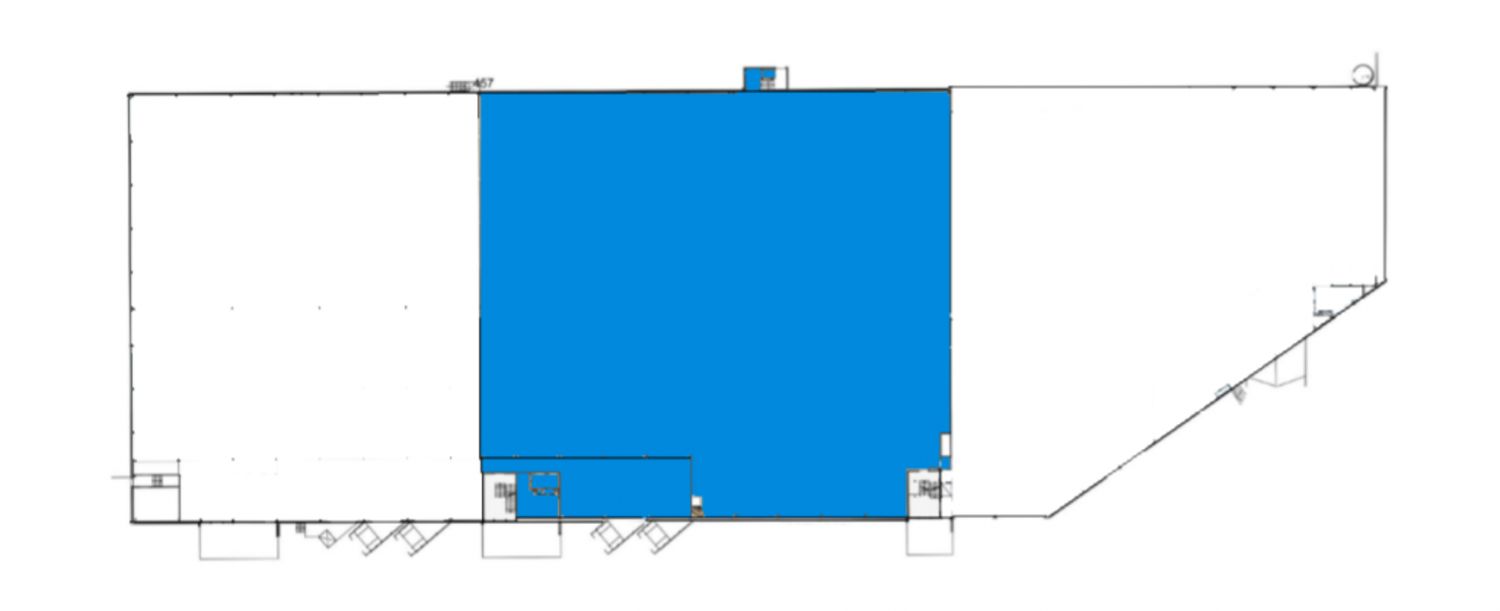
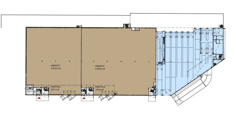
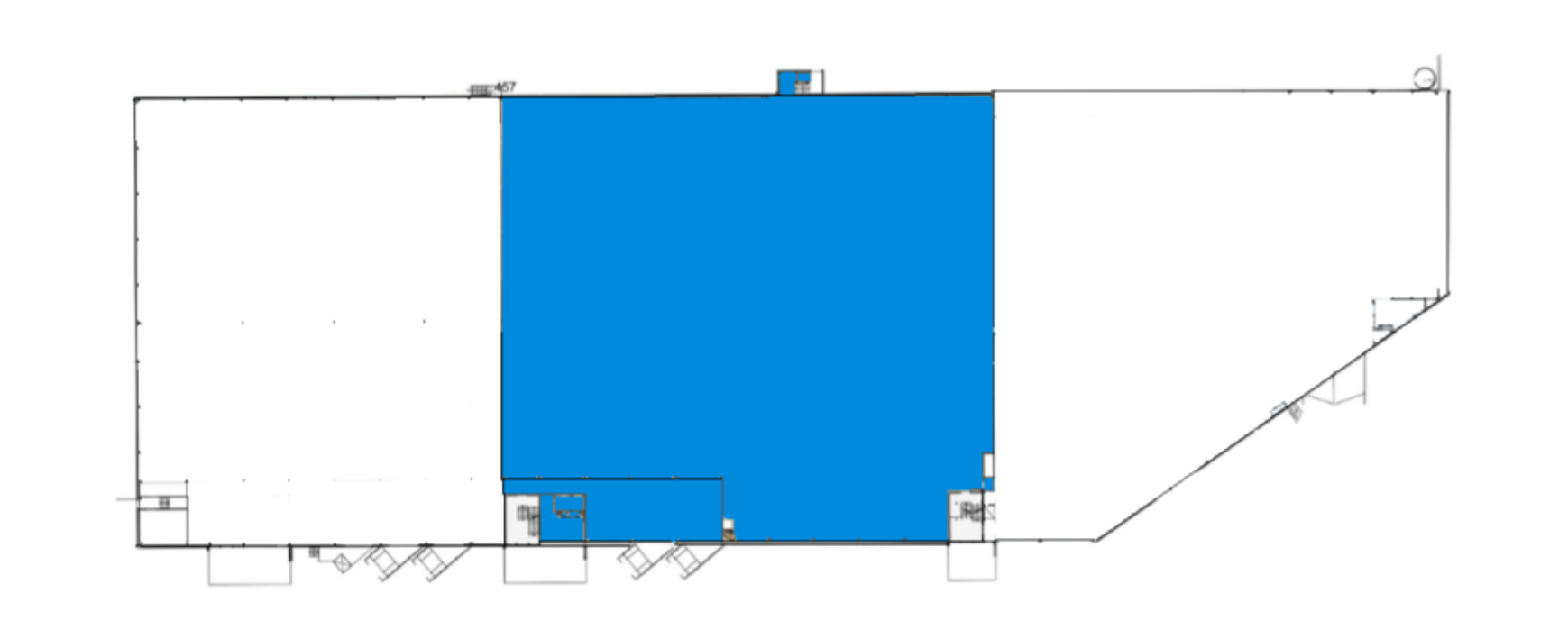
Vantaan Rasti on vuoden 2022 aikana valmistunut logistiikkakiinteistö. Tarjolla on toimitilat yritykselle, jolla on tarve moderneille varasto- tai teollisuustiloille huippusijainnilla Kehä III:n varrella. Käyttäjälle rakennetaan tarpeiden mukaisesti räätälöidyt tilat teollisuus-, varasto- ja toimistokäyttöön, jolloin on saatavilla toimialaan liittyviä tuotanto-, huolto-, kokoonpano- ja näyttely- tai noutovarastotiloja. Rakennus on toteutettu ympäristöystävällisesti BREEAM sertifikaatin Very Good-luokituksen mukaan. Ota yhteyttä ja sovi esittely, vuokrauspalvelumme on tilanhakijoille maksuton.
• Tilan pohjoispäähän ja länsireunalle saadaan
tarpeen mukaan lisää lastaustaskuja (1-2 kpl).
• Maanvaraisen lattian kantavuus on 5000kg/m²,
10000kg pistekuorma k/k 300mm, eli hyllyjalalle
laskettu kuorma.
• Ontelokentän kuormitus 400kg/m² (parvitila). • Tilan vapaa korkeus 9,4m + max. 1,5m (ristikkoväli 12m). 8 lavakerrosta.
• Pysäköintipaikkoja saatavana sekä pihalta että pysäköintilaitoksesta.
Katutasossa
Näkyvällä paikalla
Jaettavissa
Lastauslaituri
Senaatin Notariaatti Oy LKV
Lämmittäjänkatu 4 A
FIN-00880 Helsinki
Tel:
Näytä puhelinnumero
+358 9 7745 100
