Vuokrataan toimistotilat - Kuopio
Kauppapaikka Herman, Leväsentie 2, 70700 Kuopio #10765791
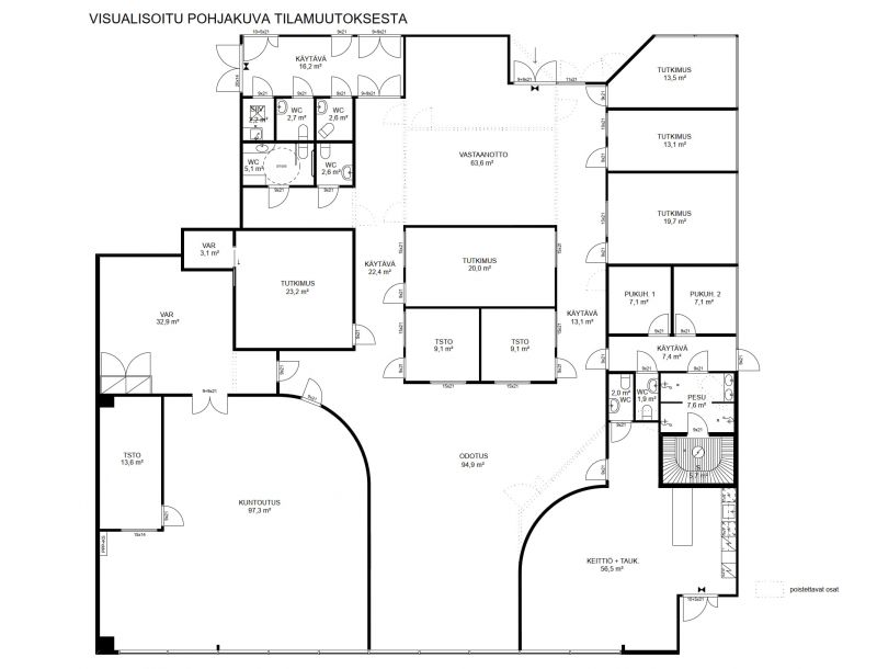
Kauppapaikka Hermannista voit vuokrata siistiä toimitilaa toisesta kerroksesta. Toimitila (485,6m2) koostuu erillistä toimistotiloista 9 kpl, jotka on ääni eristettyjä, toimistot soveltuu mm. terapia käyttöön. Huoneet on 9m2- 24m2. Avarasta ja valoista korkeatila sopii toiminnalliseen työskentelyyn tai avotoimistoksi. Visualisoiduista kuvista näet esimerkkejä tilan käytön esimerkeistä. Visualisointikuvat on tehty lapsille tarkoitetusta terapiavastaanottotilasta. Pohjakuvissa on kaksi erillistä pohjaa havainnekuvana kalustetusta tilasta ja muutostyö pohjakuva.
Nykyisin tilassa on sauna ja kylpyhuone jossa on poreamme ja tilava keittiö. Lämmin varastotila 70,6m2 ja toimistotila. Omat wc-tilat 2 x ja yhteiseteinen 18,3m2. Korkeat lasiseinät, avautuu Leväsentien suuntaan ja niihin saa näkyvät mainosteippaukset. Tila on heti vapaa.
2. kerrokseen pääsee tilavalla hissillä tai liukuportaita pitkin. 1. kerroksessa on lastauslaituri ja isot nosto-ovet. Hermannissa on monipuolisesti liikkeitä sekä kahvila- ja lounasravintoloita 3 kpl. Isot laajat autopaikat ilmainen asiakaspysäköinti sekä voit vuokrata oman autopaikat. Vuokralaisten käytössä on lisäksi ilmainen kokoustila. Sisäinen intra palvelee vuokralaisia. Hoidan vuokralaisyhteystyötä ja vuokraukseen liittyviä asioita kaupallisena managerina, soita ja kysy lisää Minna Moisio 0505417349.
Näkyvällä paikalla
Jaettavissa
Hissi
Lastauslaituri

Fine LKV
Minna Moisio
Toimitilavuokraus, LKV
Näytä puhelinnumero
0505417349
minna@finelkv.fi
Leväsentie 2, 70700 Kuopio
Yliopistonkatu 28, 40100 Jyväskylä
Toimin kaupallisena managerina ja toimitilavuokraajana, otathan yhteyttä jos mietit mahdollisia muutostöitä tai esillä olevista toimitiloista ei löydy sitä mitä etsit. Selvitetään muut tila mahdollisuudet. Asiakaslähtöisyys on minulle tärkeää sekä asioiden sujuvuus. Ota yhteyttä, mielelläni autan sinua.
https://www.finelkv.fi/