Vuokrataan toimistotilat, liiketilat, näyttelytilat - Helsinki
Katajanokanlaituri 4, Katajanokka, 00160 Helsinki #10763797
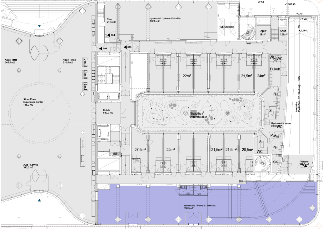
Vuokrataan katutason merenpuoleinen liiketila (pohjakuvassa väritetty alue), joka sopisi hyvin esimerkiksi showroomiksi hienojen maisemien ansiosta.
Toimitalossa on vuokrattavaa tilaa noin 16 000 neliömetriä. Stora Enson pääkonttorin ja hotellin lisäksi rakennuksessa on toimitiloja yrityksille ja palveluntarjoajille.
Merkittävään kulttuuriympäristöön sijoittuvaan kiinteistöön tulee myös julkisia tiloja, jolloin se palvelee myös merellisestä sijainnista nauttivia kaupunkilaisia ja matkailijoita.
Talossa on vastaanotto, neuvottelutiloja, ravintola ja kahvila.
Kiinteistöön haetaan korkeimman LEED Platinum tason ympäristösertifikaattia.
Rakennuksen päärunkomateriaalina käytetään talon päävuokralaisen, Stora Enson, massiivipuuelementtejä. Kiinteistössä on vuokrattavaa tilaa noin 16 000 m2. Stora Enson pääkonttorin ja hotellin lisäksi rakennukseen on tulossa ravintola, kattoterassi sekä toimitiloja yrityksille ja palveluntarjoajille. Katajanokan Laiturista valmistuu kaupunkikuvallisesti ympäristöönsä sulautuva edistyksellinen toimitalo.
Näkyvällä paikalla
Senaatin Notariaatti Oy LKV
Lämmittäjänkatu 4 A
FIN-00880 Helsinki
Tel:
Näytä puhelinnumero
+358 9 7745 100
