Myydään liiketilat, varastotilat, työtilat, tontti - Loviisa
Koskenkyläntie 2, 07700 Loviisa #10762628
Myydään liikekiinteistö Koskenkylän tunnetulla levähdyspaikalla! Myydään tarjousten perusteella
Osoite
Koskenkyläntie 2, 07700 Loviisa
Tilatyyppi
Liiketilaa
300 m2
Varastotilaa
60 m2
Työtilaa
300 m2
Tontti
11700 m2
Yhteensä
360 m2
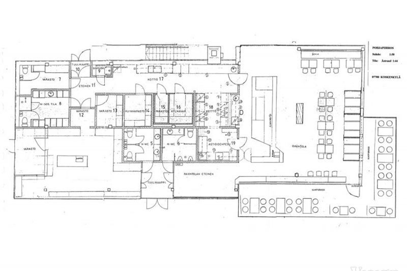
Pohjapiirros
Virtuaaliesittely
Myyntihinta
Tarjousten perusteella
Muuta
Itäliikenteen tunnetulta levähdyspaikalta myydään monien mahdollisuuksien liikekiinteistö sekä 1,17 hehtaarin tontti, joka rajoittuu Hammarkoskeen.
Rakennus valmistui vuonna 1965 ja on pinta-alaltaan noin 300 m². Ensimmäisessä kerroksessa on tilava ravintolasali, jonka yhteydessä on isompi, hyvin varusteltu keittiö, erillinen kabinetti (vieressä pienkeittiö), toimisto, henkilökunnan sosiaalitilat sekä asiakasvessat. Kiinteistössä on myös varastokellari pinta-alaltaan 60 m² sekä kaksi alun perin autotalleina ollutta varastotilaa. Tällä hetkellä rakennuksessa toimii kahvila/ravintola. Kahvilasalin kalusteet ja laitteet sekä keittiön koneet on mahdollista ostaa kaupan yhteydessä edulliseen hintaan.
Aiemmin kiinteistössä on ollut myös pizzeria, leipä- ja kukkamyymälä sekä autohuoltopiste. Huollon peruja oleva rasvamonttu on poistettu käytöstä, mutta sen voi tarvittaessa ottaa uudelleen käyttöön lattiaa purkamalla.
Rakennusta on kunnostettu ja päivitetty säännöllisesti; muun muassa katto on uusittu ja julkisivu maalattu pari vuotta sitten. Lämmitys tapahtuu ilma/vesikierto-lämpöpumpuilla (varalla öljylämmitys) ja kiinteistö on siirtynyt kunnalliseen jätevesijärjestelmään. Rakennuksessa on suurkeittiökaasujärjestelmä, jossa on paikka neljälle 33 kg:n kaasupullolle.
Levähdyspaikan polttoaineenjakelupiste on vuokrattu tuottoisalla sopimuksella Nesteelle 30.8.2030 saakka. Lisäksi rakennuksen päädystä on vuokrattu paikka kahdelle Telian antennille. Nettotuotto näistä on noin 12’500 €/vuosi.
Piha-alue on asfaltoitu ja erittäin suuri; siinä mahtuvat isommatkin yhdistelmät kääntymään tai kiertämään rakennuksen.
Tässä hieno mahdollisuus kehittää jotain uutta jo tunnetulle sijainnille!
Kohdetiedot
Sijainti
Katuosoite: Koskenkyläntie 2, 07700 Loviisa
Kaupunginosa: Koskenkylä
Ympäristö: Huoltoasema, Koskenkylän levähdyspaikka
Tontti
Pinta-ala: 1,1765 ha (Tilan nimi Åstrand)
Omistus: Oma
Rakennus/huoneisto
Pinta-ala: Liiketila 300 m², kellari 60 m² = 360 m²
Huoneistoselitelmä: Liikerakennus, jossa kahvila/ravintola, kabinetti, keittiö, pienkeittiö, toimisto sekä wc- ja sosiaalitilat, kellarissa varastotilaa
Kunto: Hyväkuntoiset tilat
Varusteet ja palvelut: Kahvilasalin kalusteet ja laitteet sekä keittiön koneet
Pysäköinti: Pihassa
Myyntihinta
Myyntihinta: Myydään tarjousten perusteella
Muut kulut: Kiinteistövero ja lämmityskulut
Rakennus valmistui vuonna 1965 ja on pinta-alaltaan noin 300 m². Ensimmäisessä kerroksessa on tilava ravintolasali, jonka yhteydessä on isompi, hyvin varusteltu keittiö, erillinen kabinetti (vieressä pienkeittiö), toimisto, henkilökunnan sosiaalitilat sekä asiakasvessat. Kiinteistössä on myös varastokellari pinta-alaltaan 60 m² sekä kaksi alun perin autotalleina ollutta varastotilaa. Tällä hetkellä rakennuksessa toimii kahvila/ravintola. Kahvilasalin kalusteet ja laitteet sekä keittiön koneet on mahdollista ostaa kaupan yhteydessä edulliseen hintaan.
Aiemmin kiinteistössä on ollut myös pizzeria, leipä- ja kukkamyymälä sekä autohuoltopiste. Huollon peruja oleva rasvamonttu on poistettu käytöstä, mutta sen voi tarvittaessa ottaa uudelleen käyttöön lattiaa purkamalla.
Rakennusta on kunnostettu ja päivitetty säännöllisesti; muun muassa katto on uusittu ja julkisivu maalattu pari vuotta sitten. Lämmitys tapahtuu ilma/vesikierto-lämpöpumpuilla (varalla öljylämmitys) ja kiinteistö on siirtynyt kunnalliseen jätevesijärjestelmään. Rakennuksessa on suurkeittiökaasujärjestelmä, jossa on paikka neljälle 33 kg:n kaasupullolle.
Levähdyspaikan polttoaineenjakelupiste on vuokrattu tuottoisalla sopimuksella Nesteelle 30.8.2030 saakka. Lisäksi rakennuksen päädystä on vuokrattu paikka kahdelle Telian antennille. Nettotuotto näistä on noin 12’500 €/vuosi.
Piha-alue on asfaltoitu ja erittäin suuri; siinä mahtuvat isommatkin yhdistelmät kääntymään tai kiertämään rakennuksen.
Tässä hieno mahdollisuus kehittää jotain uutta jo tunnetulle sijainnille!
Kohdetiedot
Sijainti
Katuosoite: Koskenkyläntie 2, 07700 Loviisa
Kaupunginosa: Koskenkylä
Ympäristö: Huoltoasema, Koskenkylän levähdyspaikka
Tontti
Pinta-ala: 1,1765 ha (Tilan nimi Åstrand)
Omistus: Oma
Rakennus/huoneisto
Pinta-ala: Liiketila 300 m², kellari 60 m² = 360 m²
Huoneistoselitelmä: Liikerakennus, jossa kahvila/ravintola, kabinetti, keittiö, pienkeittiö, toimisto sekä wc- ja sosiaalitilat, kellarissa varastotilaa
Kunto: Hyväkuntoiset tilat
Varusteet ja palvelut: Kahvilasalin kalusteet ja laitteet sekä keittiön koneet
Pysäköinti: Pihassa
Myyntihinta
Myyntihinta: Myydään tarjousten perusteella
Muut kulut: Kiinteistövero ja lämmityskulut
Katutasossa
Näkyvällä paikalla
Ota yhteyttä
Tilat.fi
KTM, LKV Antti Soivio
Näytä puhelinnumero
0400 446 553
OTM, LKV Riikka Tuominen
Näytä puhelinnumero
0400 551 790
KTM, LKV Maria-Sofia Puhakka
Näytä puhelinnumero
0400-150330
Yrityksen virallinen nimi: LKV Toimitilaa.fi Oy. Toimitilojen välitykseen erikoistunut yritys.
http://www.tilat.fiPyydä lisätietoa
