Vuokrataan toimistotilat, työtilat - Sipoo
Uusi Porvoontie 623, 01120 Sipoo #10761219
Vuokrataan toimisto- ja hallitilaa Sipoon Västerskogissa! Vuokra alkaen 999 €/kk, alv-vapaa
Osoite
Uusi Porvoontie 623, 01120 Sipoo
Tilatyyppi
Toimistotilaa
106 - 241 m2
Työtilaa
106 - 241 m2
Yhteensä
106 - 241 m2
Virtuaaliesittely
Vuokra
Alkaen 999 €/kk, alv-vapaa
Muuta
Sipoon Västerskogissa on vuokrattavana kaksi hyväkuntoista ja tyylikästä toimistotilaa. Toinen, noin 106-neliöinen huoneisto sijaitsee liikerakennuksen toisessa kerroksessa. Katutasossa on noin 135-neliöinen tila.
Ensimmäisen kerroksen toimiston yhteydessä on nosto-ovellinen (L 3,1 m x K 3,15 m) varastohallitila, jossa on myös lattiakaivo. Halli on erotettu toimistosta kevyellä väliseinällä, jota voi tarvittaessa siirtää tai sen voi purkaa pois. Tilassa on koneellinen ilmanvaihto ja ilmalämpöpumppu, jolla huoneistoon saa kätevästi viilennystä hellepäivinä. Toimistohuoneen yhteydessä on minikeittiö ja hallin yhteydessä wc.
Huoneistossa on upeat, korkeat ikkunat, joista tulee kauniisti luonnonvaloa. Tila sijaitsee rakennuksen rauhallisella takapihalla.
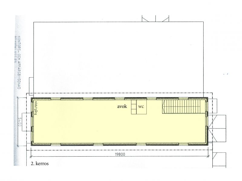
Toisen kerroksen huoneisto on isoa avotilaa, jonka yhteydessä on pieni avokeittiö ja wc. Tilassa on viisto katto ja huoneen päädyissä on hauskat vinot ikkunat, mikä tekee huoneistosta persoonallisen. Tilan molemmilla pitkillä sivuilla on ikkunat, korkeammalla seinustalla pienet yläikkunat, matalammalla seinällä hiukan suuremmat ikkunat.
Huoneistossa on koneellinen ilmanvaihto (tulo- ja poistoilma), mutta ei jäähdytystä. Tämä tila on heti vapaa.
Pihassa on pysäköintitilaa erikseen sovitusti. Rakennus sijaitsee näkyvällä paikalla, aivan Uuden Porvoontien varrella. Porvoon moottoritien liittymään on matkaa vain pari kilometriä.
Oivalliset tilat näkyvällä paikalla!
Kohdetiedot
Sijainti
Katuosoite: Uusi Porvoontie 623, 01120 Sipoo
Kaupunginosa: Västerskog
Ympäristö: Maaseutua, asutusta
Rakennus/huoneisto
Pinta-alat: Noin 106 m² ja noin 135 m²
Kiinteistötyyppi: Liikerakennus
Rakennusvuosi: 2007
Tilatyyppi: Toimisto- ja hallitila
Energiatodistus: Ei lain edellyttämää todistusta
Kunto, varusteet ja palvelut: Hyvä kunto, molemmissa huoneistoissa avokeittiö ja wc, ensimmäisen kerroksen toimistossa myös nosto-ovellinen ja lattiakaivollinen varastohalli
Pysäköinti: Pihassa
Vapautuu: Heti vapaa
Vuokrahinta ja kulut
Kuukausivuokra: 106 m²:n tila 999 €/kk, alv-vapaa. 135 m²:n tila 2’100 €/kk, alv-vapaa.
Sähkömaksu: Erikseen sovitun maksun mukaan
Vesimaksu: Erikseen sovitun maksun mukaan
Jätehuolto: Vuokralainen vastaa omasta jätehuollostaan
Lämmitys: Sisältyy vuokraan
Muut ehdot: Vakuus 3 kk:n vuokraa vastaava summa, minimisopimus 12 kk, luottotietojen oltava kunnossa
Ensimmäisen kerroksen toimiston yhteydessä on nosto-ovellinen (L 3,1 m x K 3,15 m) varastohallitila, jossa on myös lattiakaivo. Halli on erotettu toimistosta kevyellä väliseinällä, jota voi tarvittaessa siirtää tai sen voi purkaa pois. Tilassa on koneellinen ilmanvaihto ja ilmalämpöpumppu, jolla huoneistoon saa kätevästi viilennystä hellepäivinä. Toimistohuoneen yhteydessä on minikeittiö ja hallin yhteydessä wc.
Huoneistossa on upeat, korkeat ikkunat, joista tulee kauniisti luonnonvaloa. Tila sijaitsee rakennuksen rauhallisella takapihalla.
Toisen kerroksen huoneisto on isoa avotilaa, jonka yhteydessä on pieni avokeittiö ja wc. Tilassa on viisto katto ja huoneen päädyissä on hauskat vinot ikkunat, mikä tekee huoneistosta persoonallisen. Tilan molemmilla pitkillä sivuilla on ikkunat, korkeammalla seinustalla pienet yläikkunat, matalammalla seinällä hiukan suuremmat ikkunat.
Huoneistossa on koneellinen ilmanvaihto (tulo- ja poistoilma), mutta ei jäähdytystä. Tämä tila on heti vapaa.
Pihassa on pysäköintitilaa erikseen sovitusti. Rakennus sijaitsee näkyvällä paikalla, aivan Uuden Porvoontien varrella. Porvoon moottoritien liittymään on matkaa vain pari kilometriä.
Oivalliset tilat näkyvällä paikalla!
Kohdetiedot
Sijainti
Katuosoite: Uusi Porvoontie 623, 01120 Sipoo
Kaupunginosa: Västerskog
Ympäristö: Maaseutua, asutusta
Rakennus/huoneisto
Pinta-alat: Noin 106 m² ja noin 135 m²
Kiinteistötyyppi: Liikerakennus
Rakennusvuosi: 2007
Tilatyyppi: Toimisto- ja hallitila
Energiatodistus: Ei lain edellyttämää todistusta
Kunto, varusteet ja palvelut: Hyvä kunto, molemmissa huoneistoissa avokeittiö ja wc, ensimmäisen kerroksen toimistossa myös nosto-ovellinen ja lattiakaivollinen varastohalli
Pysäköinti: Pihassa
Vapautuu: Heti vapaa
Vuokrahinta ja kulut
Kuukausivuokra: 106 m²:n tila 999 €/kk, alv-vapaa. 135 m²:n tila 2’100 €/kk, alv-vapaa.
Sähkömaksu: Erikseen sovitun maksun mukaan
Vesimaksu: Erikseen sovitun maksun mukaan
Jätehuolto: Vuokralainen vastaa omasta jätehuollostaan
Lämmitys: Sisältyy vuokraan
Muut ehdot: Vakuus 3 kk:n vuokraa vastaava summa, minimisopimus 12 kk, luottotietojen oltava kunnossa
Vapautuu
Heti
Näkyvällä paikalla
Ota yhteyttä
Tilat.fi
KTM, LKV Antti Soivio
Näytä puhelinnumero
0400 446 553
OTM, LKV Riikka Tuominen
Näytä puhelinnumero
0400 551 790
KTM, LKV Maria-Sofia Puhakka
Näytä puhelinnumero
0400-150330
Yrityksen virallinen nimi: LKV Toimitilaa.fi Oy. Toimitilojen välitykseen erikoistunut yritys.
http://www.tilat.fiPyydä lisätietoa
