Vuokrataan toimistotilat - Helsinki
Elielinaukio 5, Keskusta, 00100 Helsinki #10760546
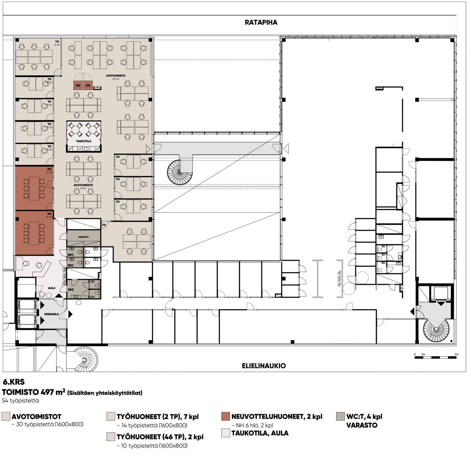
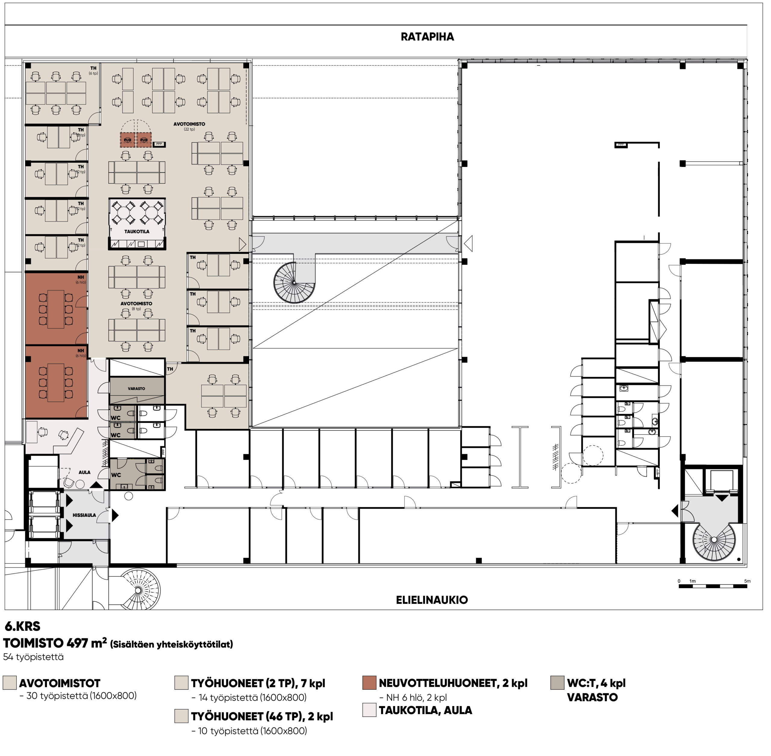
Vapaana valoisa ja avara 6. kerroksen toimistotila 497 m2, jossa ikkunat kolmeen suuntaan. Näkymät Töölönlahden sekä Ratapihan kuin myös viihtyisän sisäpihan terassin suuntaan. Nykyaikaiset ja monipuoliset toimistotilat sallivat tehokkaasti avotilaa ja työhuoneita, sekä joustavasti neuvotteluhuoneita ja lounge-tilaa keittiön yhteyteen. Tilat ovat täysin remontoitavat ja tilat suunnitellaan sekä toteutetaan aina vuokralaisen tarpeisiin sopiviksi.
Ota yhteyttä ja sovi esittely, vuokrauspalvelumme on tilanhakijalle maksutonta. Puh. 09 7745 100.
Kiinteistön hiilineutraali energiankäyttö pienentää merkittävästi vuokralaisten toimistotilojen hiilijalanjälkeä. Elielinaukiolla käytetään uusiutuvaa, kotimaisella tuulivoimalla tuotettua sähköä. Sähkö tuotetaan Exilion Tuuli Ky:n Lappeenrannassa sijaitsevassa Muukon tuulivoimalassa. Lämmityksenä on käytössä Helenin päästötön kiertolämpö. Kiertolämpö on alkuperätakuin varmennettua Helsingissä lämpöpumpuilla tuotettua uusiutuvaa energiaa.
Naapurissa on Holiday Inn -hotelli, joka tarjoaa neuvottelutiloja jopa 100 hengen seminaareihin. Hotellin aulan kahvio ja lounge sekä aamiaistarjonta palvelee myös toimistokäyttäjiä. Lisää tyylikkäitä kokoustiloja tarjoaa Rautieaseman Scandic Grand Central Helsinki -hotellin konferenssikeskus.
Näkyvällä paikalla
Hissi
Liitetiedostot
Senaatin Notariaatti Oy LKV
Lämmittäjänkatu 4 A
FIN-00880 Helsinki
Tel:
Näytä puhelinnumero
+358 9 7745 100
