Vuokrataan toimistotilat - Helsinki
Atomitie 5, Pitäjänmäki, 00370 Helsinki #10759300
Vuokrattavana eri kokoisia toimisto-/tuotanto-/varastotiloja ja useaan eri tarkoitukseen soveltuvia muuntojoustavia toimitiloja monipuolisesta kiinteistöstä aivan juna-aseman kyljessä. Tämä tila sijaitsee 2. kerroksessa, 278 m2. Kuvat edustavat talon yleistä tasoa ja yleisilmettä. Avaa KIINTEISTÖESITE liitetiedostosta ja ota yhteyttä esittelyn merkeissä, palvelumme on tilanhakijoille ilmainen.
Osoite
Atomitie 5, 00370 Helsinki
Tilatyyppi
Toimistotilaa
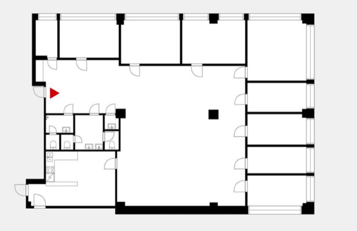
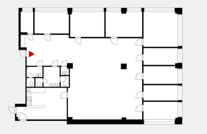
278 m2
Pohjapiirros
Kiinteistö
Yhdessä kerroksessa jopa yli 3000 m²:n yhtenäiset toimitilat, joihin voi sijoitettaa 100-200 henkilön organisaatio nykyaikaiseen monitilatoimistoon. Toimistotiloissa on koneellinen poistoilma ja palkkijäähdytys.
Sijainti
Taloon on helppo löytää, sillä Atomitie päättyy kiinteistön pihaan. Pihaan saavuttaessa näkymää hallitsee Atomitie 5:n pääsisäänkäynti opaste- ja infotauluineen, joiden avulla kävijä löytää helposti talosta etsimänsä yrityksen.
Ympäristö
Pitäjänmäen teollisuusalueena tunnettu yritysalue käy läpi rakennemuutosta ja kehittyy nopeasti. Raskaan tuotannon osuus vähenee ja toimistotiloja rakennetaan lisää. Alue on merkittävä työpaikkakeskittymä, jossa työskentelee jo yli 26 000 henkilöä. Heille lähialue tarjoaa tärkeimmät työympäristössä tarvittavat palvelut.
Pysäköinti
Kiinteistöllä edullista pysäköintitilaa 360 ajoneuvolle.
Kulkuyhteydet
Atomitie on keskeisellä paikalla rautatieaseman vieressä, Helsingin keskustaan matka taittuu junalla 11 minuutissa. Myös poikittaisliikenne sujuu, sillä Atomitien bussipysäkiltä Kaupintiellä kulkee bussilinjoja mm. Leppävaaraan, Tapiolaan, Helsinki-Vantaan lentoasemalle ja Itäkeskukseen.
ETÄISYYDET;
Valimon asema 0.2 km
Vihdintie 0.4 km
Pitäjänmäen asema 0.8 km
Kehä I 1.5 km
Leppävaara 3.0 km
Helsinki, keskusta 9.0 km
Helsinki-Vantaa, lentoasema 15 km
ETÄISYYDET;
Valimon asema 0.2 km
Vihdintie 0.4 km
Pitäjänmäen asema 0.8 km
Kehä I 1.5 km
Leppävaara 3.0 km
Helsinki, keskusta 9.0 km
Helsinki-Vantaa, lentoasema 15 km
Muuta
Talossa toimii Sodexon operoima lounasravintola.
Vapautuu
Heti
Rakennusvuosi
1978
Saneerausvuosi
2015
Kerros
2
Energiatehokkuusluokka
Ei lain edellyttämää energiatodistusta
Ota yhteyttä
Senaatin Notariaatti Oy LKV
Lämmittäjänkatu 4 A
FIN-00880 Helsinki
Tel:
Näytä puhelinnumero
+358 9 7745 100
Pyydä lisätietoa
