Vuokrataan toimistotilat, tuotantotilat, varastotilat - Vantaa
Suokallionkuja 8, Tuupakka, 01740 Vantaa #10754527
K3 Logistics West - moderni varasto- ja logistiikkakiinteistö
Osoite
Suokallionkuja 8, 01740 Vantaa
Tilatyyppi
Toimistotilaa
450 m2
Tuotantotilaa
4240 m2
Varastotilaa
4240 m2
Yhteensä
4700 m2
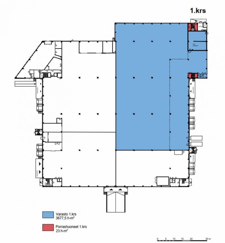
Tilajako
3700m² varasto- ja tuotantotilaa, 540m² parvi-ja varastotilaa + n. 450m² toimisto- ja sosiaalitilaa
Kiinteistö
K3 Logistics West on alkukesästä 2020 valmistunut moderni varasto-/logistiikkakiinteistö logistiikan loistopaikalla, Helsinki - Vantaan lentoaseman vieressä.
Vuokrattavana 4700m² tilakokonaisuus, joka koostuu 3700m² varasto- ja tuotantotilasta, 540m² parvi- ja varastotilasta sekä noin 450m² toimisto- ja sosiaalitiloista.
Vuokralaisella on mahdollisuus vaikuttaa rakenteilla olevien tilojen suunnitteluun. Varastotilassa on useita lastaustaskuja, lastauslaituri sekä nostopöytä. Varastotilan vapaa korkeus on 12 metriä ja lattian kantavuus 6000 kg/ m².
Vuokrattavana 4700m² tilakokonaisuus, joka koostuu 3700m² varasto- ja tuotantotilasta, 540m² parvi- ja varastotilasta sekä noin 450m² toimisto- ja sosiaalitiloista.
Vuokralaisella on mahdollisuus vaikuttaa rakenteilla olevien tilojen suunnitteluun. Varastotilassa on useita lastaustaskuja, lastauslaituri sekä nostopöytä. Varastotilan vapaa korkeus on 12 metriä ja lattian kantavuus 6000 kg/ m².
Sijainti
Moderni varasto-/logistiikkakiinteistö sijaitsee Vantaan Tuupakassa, aivan Helsinki-Vantaan lentoaseman vieressä. Kohde sijaitsee hyvien liikenneyhteyksien varrella ja on helposti saavutettavissa pääväyliltä.
Pysäköinti
Suuri piha-alue mahdollistaa sujuvan rekkaliikenteen, samoin kuin erillään pidettävän henkilöautoliikenteen. Pihalla on runsaasti parkkipaikkoja henkilöautoille.
Vapautuu
Heti
Ota yhteyttä
Conorin
Toimitilojen vuokraus ja myynti
Näytä puhelinnumero
09 - 612 2230
Toimisto
Valimotie 17-19
Helsinki
Kaikki vapaat tilamme:
vapaat.toimitilat.fi/conorin
Pyydä lisätietoa
