Myydään liiketilat - Oulu

Kirkkokatu 53 M 1, Keskusta, 90100 Oulu #10753411

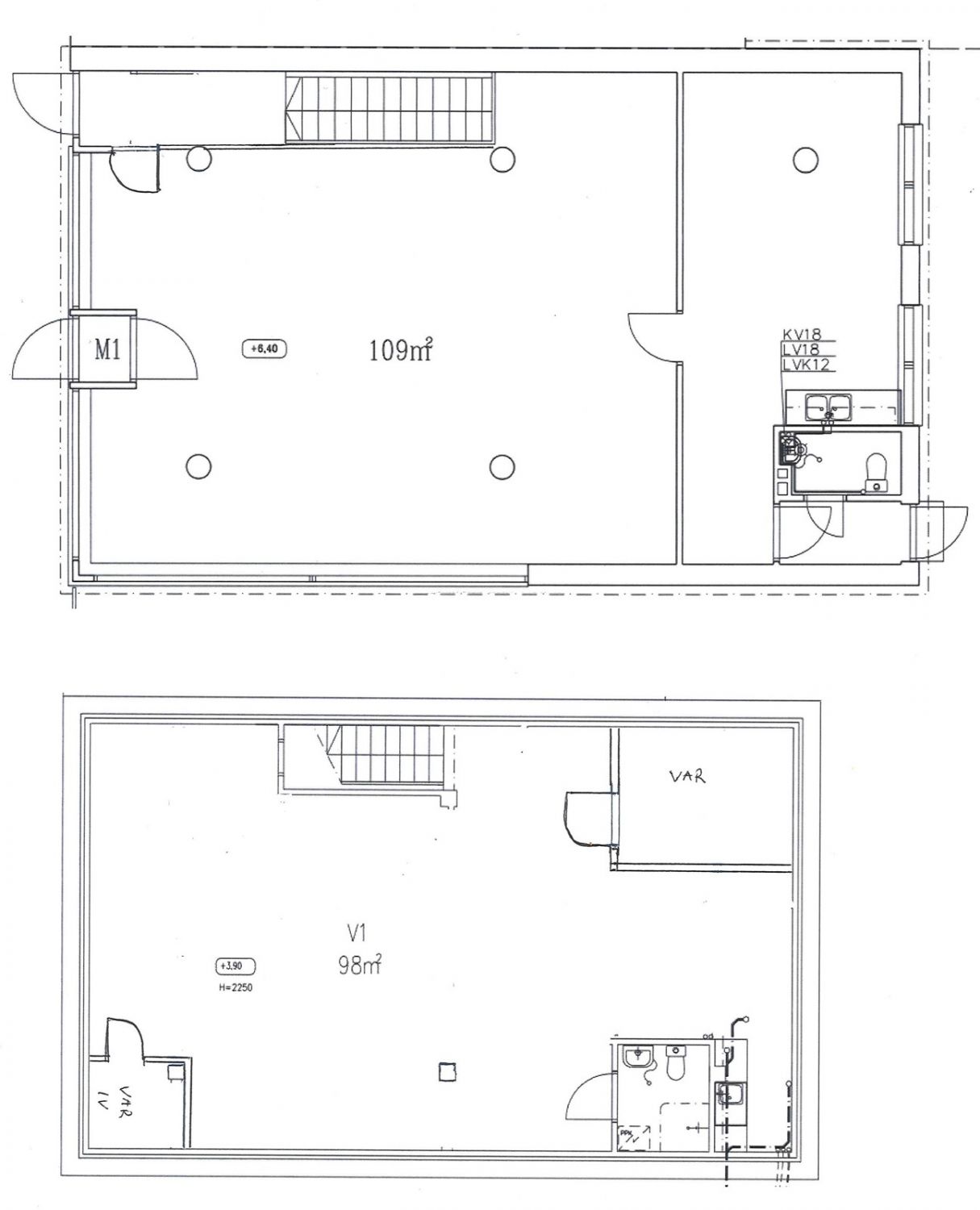
Omalla tontilla olevassa v. 1963 valmistuneessa talossa erittäin hyvä kuntoinen 207 m2:n kokonaisuus. Katutason liiketila 109 m2 ja kellarikerroksen kokous-, varasto- ja sos.tilat 98 m2. Tilojen hoitovastike yhteensä 1 068 € / kk.
Tiloissa koneellinen iv- ja lämmön talteenotto. Tilat remontoitu muutamia vuosia sitten. Molemmissa kerroksissa keittiö / minikeittiö sekä wc ja alakerrassa myös suihku. Taloyhtiössä tehty paljon peruskorjauksia. Mahdollisuus ostaa myös kaksi lämmintä autohallipaikkaa. Sovi aika tarkemmalle tutustumiselle.

Osoite
Kirkkokatu 53 M 1, 90100 Oulu
Tilatyyppi
Liiketilaa
207 m2
Tilajako
Jaettavissa
Tila on jaettavissa. Katutason ja kellarin tilaa voidaan käyttää myös erillisinä tiloina (molempiin omat sisäänkäynnit.
Myyntihinta
170000.00
Muuta
Omalla tontilla olevassa v. 1963 valmistuneessa talossa erittän hyvä kokonaisuus. Katutason liiketila 109 m2 ja kellarikerroksen kokous-, varasto- ja sos.tilat 98 m2. Tilojen hoitovastike yhteensä 1 068 € / kk. Erinomaista tilaa yhteensä 207 m2. Tiloissa koneellinen iv- ja lämmön talteenotto. Tilat remontoitu muutamia vuosia sitten. Molemmissa kerroksissa keittiö / minikeittiö sekä wc ja alakerrassa suihku. Taloyhtiössä tehty paljon peruskorjauksia. Mahdollisuus ostaa myös kaksi lämmintä autohallipaikkaa á 30 000 euroa (hoitovastike 20,24€ / kk). Sovi aika tarkemmalle tutustumiselle.
Lisätietoa saneerauksista
Vesikatto uusittu 2021, saunaosaston pinnat ja pesulan lattiat uusittu 2020, sokkelin kapillaarikatkot asennettu 2019, kameravalvonta 2019, lämpöverkon linjasäätö- ja sulkuventtiilit uusittu 2013, parvekkeiden puuosat ja ikkunoiden sekä parvekeovien ulko-osien maalaus 2010, lukitus (ilog) 2010, rappukäytävien valaistus uusittu 2010, iv-kanavat puhdistettu 2010, käyttövesiputket uusittu 2009-2010, viemärit uusittu 2009-2010, sähköjärjestelmät uusittu 2009-2010, lämmönvaihdin uusittu 2009, pintavesikaivot ja sadevesiviemärit uusittu 2009, ikkunat uusittu 1991.

Kunnossapitotarveselvityksen mukaan suunnitellut (ei päätöksiä): iv-kanavien nuohous 2023, julkisivujen korjaussuunnittelu 2024, perunakellarien purku ja fiksaus
Vapautuu
Sopimuksen mukaan
Huoneiden lukumäärä
3

Jaettavissa

Ota yhteyttä

OP Koti Pohjoinen Oy LKV

Toimitila- ja vuokravälitys
Lekatie 6
90140 OULU

Julia Hoikkala
Myyntineuvottelija, Toimitilat, LVV, Trad.
Näytä puhelinnumero 050 411 8747

Pyydä lisätietoa

Kohteesta Kirkkokatu 53 M 1, Oulu

 

B2B palvelut

LASTAUSRATKAISUT

Mainos
Lastauksien ratkaisut tehokkaammin ja turvallisemmin

MARKKINOINTI

Tavoita oikea kohderyhmä!