Vuokrataan tuotantotilat, varastotilat, työtilat - Porvoo
Timpurinkuja 5, 06150 Porvoo #10753203
Korkea, valoisa varasto- tai tuotantotila vuokrattavana! Vuokra 9,90 €/m²/kk + alv
Osoite
Timpurinkuja 5, 06150 Porvoo
Tilatyyppi
Tuotantotilaa
360 m2
Varastotilaa
360 m2
Työtilaa
360 m2
Yhteensä
360 m2
Virtuaaliesittely
Vuokra
9,90 €/m²/kk + alv
Muuta
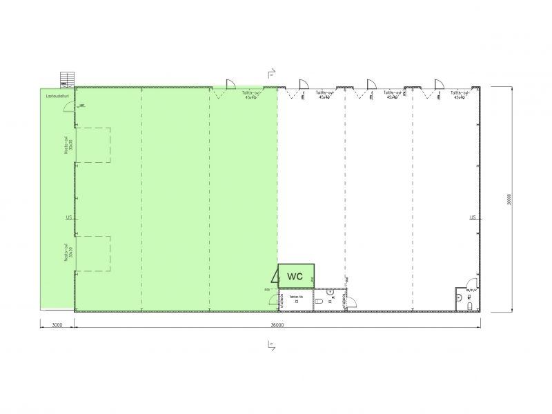
Kaupunginhaan teollisuusalueella on vuokrattavana uudehko, erittäin hyvin varusteltu, korkea hallitila (merkitty pohjakuvaan vihreällä). Halli sopii mainiosti esimerkiksi monenlaiseen varastointiin tai tuotantotilaksi.
Noin 360 m²:n hallin päädyssä on kaksi nosto-ovea (L 3 m x K 3 m), jotka johtavat lastauslaiturille. Lastauslaituri sopii korkeudeltaan sekä paketti- että kuorma-autoille. Hallin toisella sivulla on iso paljeovi (L 4,5 m x K 4,5 m), josta on kulku pihan puolelle katutasoon. Vapaa korkeus harjakattoisessa tilassa on noin 5–8 metriä.
Siistissä hallissa on hyvä valaistus, kaksi lattiakaivoa, kaksi vesipistettä, koneellinen poistoilma sekä automaattinen savunpoisto. Nosto-ovien päällä on ovipuhaltimet ja hallin katossa tuulettimet, jotka painavat katonrajaan hakeutuvaa lämmintä ilmaa takaisin tilan alempiin osiin. Hallissa on myös oma wc. Lisäksi rakennuksessa on kameravalvonta, hälyttimet ja kauko-ohjattavat lukot.
Lämmitysmuoto rakennuksessa on maalämpö.
Tilassa on tällä hetkellä isot, seiniä kiertävät hyllyköt, joiden jäämisestä halliin voidaan tarvittaessa neuvotella. Hallissa on vesikiertoinen lattialämmitys, joten lattiaan ei ole mahdollista pultata esimerkiksi hyllyköitä kiinni.
Rakennuksen piha on asfaltoitu ja siinä on runsaasti pysäköintitilaa.
Hallitilan yhteydessä on oma lastauslaituri!
Kohdetiedot
Sijainti
Katuosoite: Timpurinkuja 5, 06150 Porvoo
Kaupunginosa: Kaupunginhaka
Ympäristö: Teollisuusalue
Rakennus/huoneisto
Pinta-ala: Noin 360 m²
Kiinteistötyyppi: Varastorakennus
Rakennusvuosi: 2018
Energiatodistus: Ei lain edellyttämää todistusta
Huoneistoselitelmä: Halli, varasto- tai tuotantotila
Kunto, varusteet ja palvelut: Uudenveroiset tilat, lastauslaituri, kaksi nosto-ovea, ovipuhaltimet, iso paljeovi, kaksi lattiakaivoa, kaksi vesipistettä hallissa, wc, hyvä valaistus, koneellinen poistoilma, automaattinen savunpoisto, kameravalvonta, hälyttimet, kauko-ohjattavat lukot
Korkeus: 5–8 metriä
Lämmitysmuoto: Maalämpö
Vapautuu: Sopimuksen mukaan nopeasti
Pysäköinti: Pihassa
Vuokrahinta ja kulut
Kuukausivuokra: 9,90 €/m²/kk + alv
Vesimaksu: Kulutuksen mukaan
Sähkö: Mittauksen mukaan
Lämmitys: Sisältyy vuokraan
Autopaikkamaksu: Ei ole
Muut ehdot: Minimisopimuskausi 12 kk, vakuus 3 kk:n vuokraa vastaava summa ja luottotietojen on oltava kunnossa
Noin 360 m²:n hallin päädyssä on kaksi nosto-ovea (L 3 m x K 3 m), jotka johtavat lastauslaiturille. Lastauslaituri sopii korkeudeltaan sekä paketti- että kuorma-autoille. Hallin toisella sivulla on iso paljeovi (L 4,5 m x K 4,5 m), josta on kulku pihan puolelle katutasoon. Vapaa korkeus harjakattoisessa tilassa on noin 5–8 metriä.
Siistissä hallissa on hyvä valaistus, kaksi lattiakaivoa, kaksi vesipistettä, koneellinen poistoilma sekä automaattinen savunpoisto. Nosto-ovien päällä on ovipuhaltimet ja hallin katossa tuulettimet, jotka painavat katonrajaan hakeutuvaa lämmintä ilmaa takaisin tilan alempiin osiin. Hallissa on myös oma wc. Lisäksi rakennuksessa on kameravalvonta, hälyttimet ja kauko-ohjattavat lukot.
Lämmitysmuoto rakennuksessa on maalämpö.
Tilassa on tällä hetkellä isot, seiniä kiertävät hyllyköt, joiden jäämisestä halliin voidaan tarvittaessa neuvotella. Hallissa on vesikiertoinen lattialämmitys, joten lattiaan ei ole mahdollista pultata esimerkiksi hyllyköitä kiinni.
Rakennuksen piha on asfaltoitu ja siinä on runsaasti pysäköintitilaa.
Hallitilan yhteydessä on oma lastauslaituri!
Kohdetiedot
Sijainti
Katuosoite: Timpurinkuja 5, 06150 Porvoo
Kaupunginosa: Kaupunginhaka
Ympäristö: Teollisuusalue
Rakennus/huoneisto
Pinta-ala: Noin 360 m²
Kiinteistötyyppi: Varastorakennus
Rakennusvuosi: 2018
Energiatodistus: Ei lain edellyttämää todistusta
Huoneistoselitelmä: Halli, varasto- tai tuotantotila
Kunto, varusteet ja palvelut: Uudenveroiset tilat, lastauslaituri, kaksi nosto-ovea, ovipuhaltimet, iso paljeovi, kaksi lattiakaivoa, kaksi vesipistettä hallissa, wc, hyvä valaistus, koneellinen poistoilma, automaattinen savunpoisto, kameravalvonta, hälyttimet, kauko-ohjattavat lukot
Korkeus: 5–8 metriä
Lämmitysmuoto: Maalämpö
Vapautuu: Sopimuksen mukaan nopeasti
Pysäköinti: Pihassa
Vuokrahinta ja kulut
Kuukausivuokra: 9,90 €/m²/kk + alv
Vesimaksu: Kulutuksen mukaan
Sähkö: Mittauksen mukaan
Lämmitys: Sisältyy vuokraan
Autopaikkamaksu: Ei ole
Muut ehdot: Minimisopimuskausi 12 kk, vakuus 3 kk:n vuokraa vastaava summa ja luottotietojen on oltava kunnossa
Vapautuu
Sopimuksen mukaan
Rakennusvuosi
2018
Katutasossa
Lastauslaituri
Ota yhteyttä
Tilat.fi
KTM, LKV Antti Soivio
Näytä puhelinnumero
0400 446 553
OTM, LKV Riikka Tuominen
Näytä puhelinnumero
0400 551 790
KTM, LKV Maria-Sofia Puhakka
Näytä puhelinnumero
0400-150330
MBA, LKV Susanne Wallenius
Näytä puhelinnumero
0400-128877
LKV Tilat.fi Oy on toimitilojen välitykseen erikoistunut yritys.
http://www.tilat.fiPyydä lisätietoa
