Vuokrataan tuotantotilat - Lieto
Länsi-Avantintie 10, 20660 Lieto #10752680
Vuokrataan korkea, raskaalle kalustolle sopiva n. 2 000 m2 uudiskohde, Liedon Avantista hyvältä paikalta, osoitteessa Länsi-Avantintie 10, Lieto.
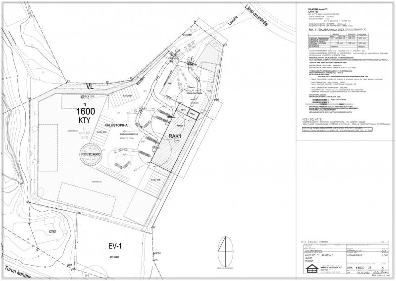
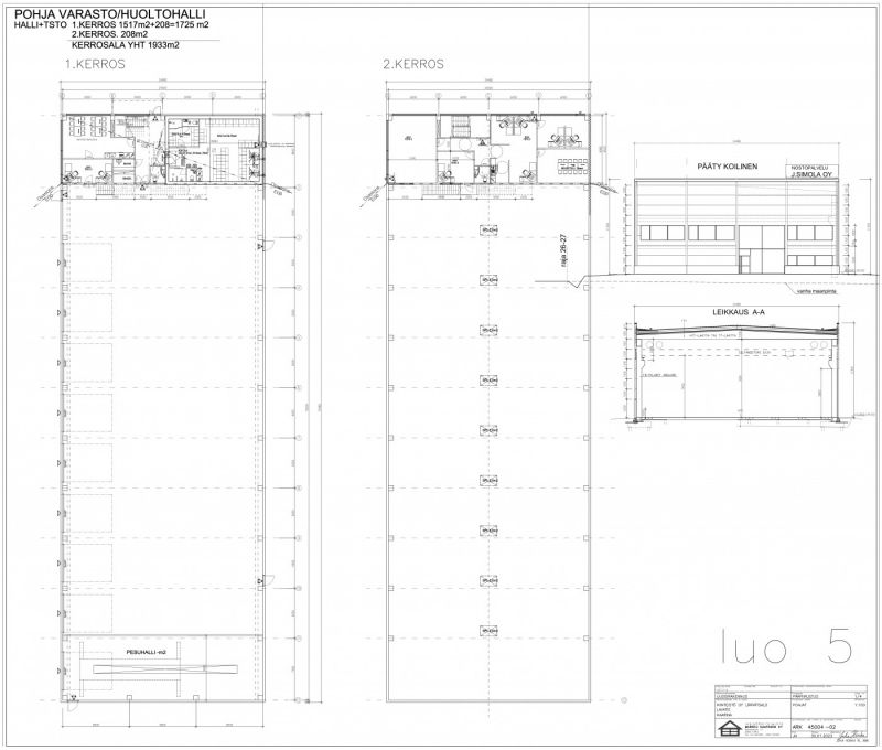
Tontin rakennusoikeus noin 4 000 m2, hallin mitat 150 metriä x 24 metriä.
Uudiskohteesta n. 2 000m2 jää omistajan omaan käyttöön ja loppu tilalle etsitään ulkopuolinen käyttäjä.
Omistaja toimii raskaan kalustona alalla, ja samaan kiinteistöön sopii esim. saman alan toimija. Halliin tulee kattonosturit ja pihatilaa jää varmasti tarpeeksi.
2 000m2 tila jaettavissa tarvittaessa 1 000 m2 / 1 000 m2. Hallin vapaa korkeus noin 9 metriä, nosturin alaosaan 7,4 metriä.
Liitteenä olevassa pohjakuvassa on omistajan omaan käyttöön tuleva halli puolikas.
Rakennustyöt aloitetaan alkuvuodesta 2023 ja tässä vaiheessa vuokralaisen on mahdollista vaikuttaa omiin tilaratkaisuihin.
Lähiympäristöön on valmistunut lukuisia uusia toimitilakiinteistöjä viime vuosina. Avanti on Turun alueen vetovoimaisempia ja nopeimmin kehittyneimpiä yritysalueita, jossa vapaat toimitilat ovat vähissä.
Alueelle on valmistunut suuria toimitilahankkeita lähivuosina, kuten DB Schenkerin 19 000 m2 logistiikkahanke ja Warasto Finlandin noin 10 000 m2 logistiikkahanke. Viimeisimpänä alueelle sijoittuneista yrityksistä on Puuilo.
Valmistuu alkuvuodesta 2024
Kysyy lisätietoja
Lisää toimitiloja www.rhg.fi
Uudiskohde
RHG Real Estate
Hämeenkatu 2 B20, 20500 Turku
Näytä puhelinnumero
020 734 4020
Tony Rosenblad
Hallituksen puheenjohtaja
Näytä puhelinnumero
+358 50 551 5375
