Vuokrataan/myydään näyttelytilat, tuotantotilat, varastotilat, työtilat - Pirkkala
Jasperintie 270 A 6, 33960 Pirkkala #10752461
Monikäyttöinen työ-/ tuotantotila 96 m2 sis. 20 m2 toimisto-/taukotila + sos.tilat. Tontti yhtiön oma!
Osoite
Jasperintie 270 A 6, 33960 Pirkkala
Tilatyyppi
Näyttelytilaa
96 m2
Tuotantotilaa
96 m2
Varastotilaa
96 m2
Työtilaa
96 m2
Yhteensä
96 m2
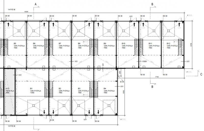
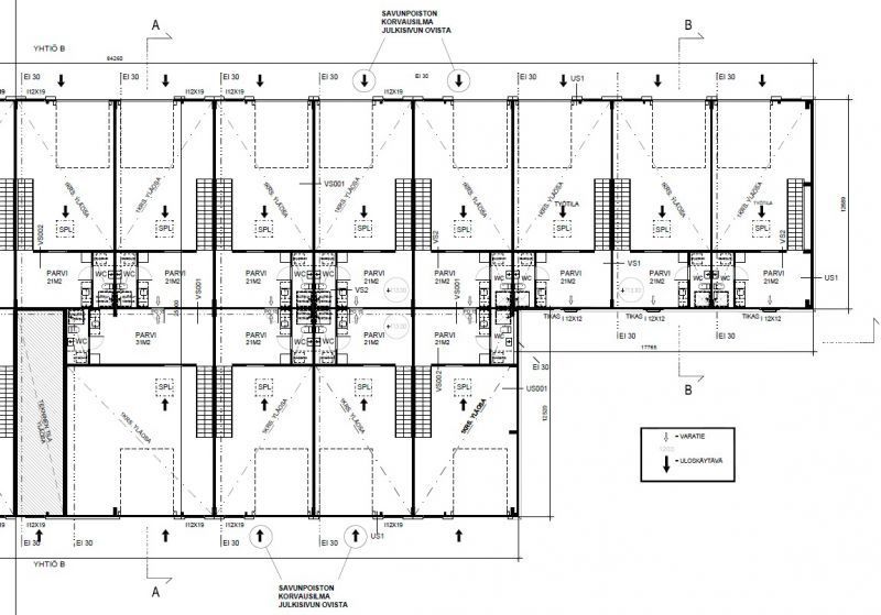
Pohjapiirros
Kiinteistö
31.5.2026 vapautumassa (tai sopimuksen mukaan) monikäyttöinen työ-/ tuotantotila 96 m2 monitoimitila A6. Mahdollisuus ostaa omaan käyttöön tai vuokrata.
Varustelu:
- maalämpö
- koneellinen ilmanvaihto
- Lattiakaivo
- Voimavirta
- Vesipiste
- toimisto-/taukotila 20m2 (2.krs, rakennusluvitettu tila)
- WC + Suihku (2.krs.)
- Iso nosto-ovi, sähkökäyttöinen
- Erillinen käyntiovi
Nykyaikaiset ja edustavat tilat ovat joustavasti muunneltavissa. Tiloissa on kiinnitetty lisäksi huomiota energiatehokkuuteen.
Konseptissa kiinteistön pohja- ja LVI-ratkaisut mahdollistavat tilojen muunneltavuuden joustavasti käyttäjän tarpeiden mukaan tuotanto-, varasto-, toimisto- ja näyttelytiloiksi. Samalla tilat tarjoavat sijaintinsa puolesta helppoa logistiikkaa.
Vuokra 975 euroa / kk + alv.
Lisäksi vuokralainen tekee oman sähkösopimuksen ja vesi kulutuksen mukaan.
Vuokralainen vastaa hoitokuluista 237,50 euroa/kk+alv.
Myynti:
Mh. 106.190 euroa
vo. 29.810 euroa
Myyntihinta ja velkaosuus päivitetään kaupantekohetken velkaosuuden mukaan. Velaton hinta 136.000 euroa.
Varustelu:
- maalämpö
- koneellinen ilmanvaihto
- Lattiakaivo
- Voimavirta
- Vesipiste
- toimisto-/taukotila 20m2 (2.krs, rakennusluvitettu tila)
- WC + Suihku (2.krs.)
- Iso nosto-ovi, sähkökäyttöinen
- Erillinen käyntiovi
Nykyaikaiset ja edustavat tilat ovat joustavasti muunneltavissa. Tiloissa on kiinnitetty lisäksi huomiota energiatehokkuuteen.
Konseptissa kiinteistön pohja- ja LVI-ratkaisut mahdollistavat tilojen muunneltavuuden joustavasti käyttäjän tarpeiden mukaan tuotanto-, varasto-, toimisto- ja näyttelytiloiksi. Samalla tilat tarjoavat sijaintinsa puolesta helppoa logistiikkaa.
Vuokra 975 euroa / kk + alv.
Lisäksi vuokralainen tekee oman sähkösopimuksen ja vesi kulutuksen mukaan.
Vuokralainen vastaa hoitokuluista 237,50 euroa/kk+alv.
Myynti:
Mh. 106.190 euroa
vo. 29.810 euroa
Myyntihinta ja velkaosuus päivitetään kaupantekohetken velkaosuuden mukaan. Velaton hinta 136.000 euroa.
Sijainti
PIRKKALA, Lentokentän risteys
Ympäristö
Alueella toimii mm. Ramirent, Hämeen Laaturemontti, Rotator, Valtra, DHL, TNT, Kattokeskus, Ramirent ja Ponsse.
Pysäköinti
Yhtiön pihalla.
Palvelut
Useita lounasravintoloita ja muut alueen kattavat palvelut; lisäksi Pirkkalan keskusta ja Tampereen keskusta.
Kulkuyhteydet
Valtatie 3, Pirkkalan keskustaan 3 km, Tampereen keskustaan 13,5 km, Lentoasema 4,5km. Valtatie 3:lle tulossa uusi yhteys välille Pirkkala–Lempäälä. Lisäksi Valtatie 3 aiotaan oikaista Lempäälästä suoraan Pirkkalaan.
Vapautuu
01.06.2026
Rakennusvuosi
2018
Kerros
1 / 1
Katutasossa
Näkyvällä paikalla
Ota yhteyttä
Conorin
Toimitilojen vuokraus ja myynti
Näytä puhelinnumero
09 - 612 2230
Toimisto
Valimotie 17-19
Helsinki
Kaikki vapaat tilamme:
vapaat.toimitilat.fi/conorin
Pyydä lisätietoa
