Vuokrataan toimistotilat - Espoo
Säterinportti, Linnoitustie 6, Leppävaara, 02600 Espoo #10751424
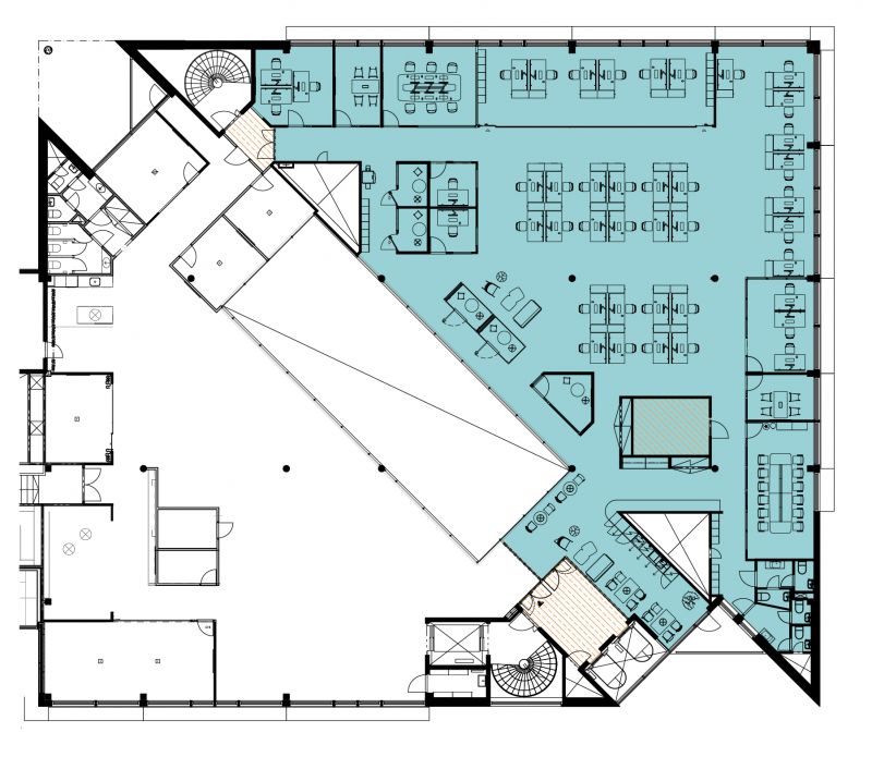
Neljännen kerroksen avotoimisto, jonka ikkunoista upeat näkymät Helsingin suuntaan. Tila muokataan vuokralaisen toiveiden mukaiseksi.
Osoite
Linnoitustie 6, 02600 Espoo
Tilatyyppi
Toimistotilaa
620 m2
Pohjapiirros
Virtuaaliesittely
Kiinteistö
Säterinportti on viidestä rakennuksesta koostuva ainutlaatuinen toimistokampus, jossa työhyvinvointi on viety täysin uudelle tasolle. Alkaen valaistuksesta ja ilmanvaihdosta, kaikki kiinteistössä on suunniteltu tukemaan työssä jaksamista. Kaksi ravintolaa tarjoaa terveellistä ruokaa, ensiluokkainen kuntokeskus ohjattua ja itsenäistä liikuntaa ja WellRoomin hieronta- ja fysiopalvelut auttavat palautumaan työn ja liikunnan jälkeen. Lisäksi Säterinportissa on yhdessä olemiseen ja rentoutumiseen pyhitetty Mukavuusalue, jossa voi pelata pöytälätkää, biljardia, dartsia ja muita pelejä tai lukea kirjoja, neuloa tai vain hengähtää hetken mukavasti istuen.
Sijainti
Leppävaarassa, Turunväylän ja Kehä I:n risteyskohdassa sijaitsevaan Säterinporttiin pääsee helposti julkisilla ja omalla autolla eri puolilta pääkaupunkiseutua ja Uuttamaata.
Ympäristö
Urbaanista sijainnistaan valtaväylien varrella huolimatta kiinteistön suurista ikkunoista on upean avarat ja vehreät näkymät Helsingin suuntaan ja metsäiset näkymät Espoon suuntaan. Suur-Leppävaaran alueella voi harrastaa lähestulkoon kaikkia mahdollisia urheilulajeja.
Pysäköinti
Runsaasti pysäköintitilaa kiinteistön pihalla ja parkkihalleissa.
Palvelut
Suomen kattavimmat toimistokiinteistön hyvinvointipalvelut sisältävät kaksi lounasravintolaa, kuntokeskuksen, aulapalvelun, WellnessRoomin hieronta- ja fysiopalvelut, parturi-kampaamon sekä mukavuus- ja pelialueen.
Kulkuyhteydet
Bussipysäkki: kiinteistön edessä
Raide-Jokerin pysäkki: kiinteistön edessä
Leppävaaran juna-asema: 1km
Raide-Jokerin pysäkki: kiinteistön edessä
Leppävaaran juna-asema: 1km
Vuokralaisia
Abloy
Coor
Dynatrace
Evac
Fatman
Figure
Lenovo
Neomore
Novo Nordisk
Sitowise
Vincit
Wonderland
Coor
Dynatrace
Evac
Fatman
Figure
Lenovo
Neomore
Novo Nordisk
Sitowise
Vincit
Wonderland
Vapautuu
Heti
Rakennusvuosi
2000
Saneerausvuosi
2020
Kerros
4 / 5
Ympäristöluokitus
BREEAM
Näkyvällä paikalla
Hissi
Ota yhteyttä
Nordika
Säterinportti
Linnoitustie 6, 02600 Espoo
Nordika on vuonna 2011 perustettu kiinteistösijoitusyhtiö, joka sijoittaa Pohjoismaiden alueelle. Toimivan johdon ja pohjoismaisten eläkesrahastojen omistama yhtiö tarjoaa sijoittajilleen mahdollisuuden suoriin kiinteistösijoituksiin houkuttelevalla tuottotasolla. Nordika omistaa Suomessa useita kiinnostavia kohteita, joita se kehittää aktiivisesti.
https://nordika.se/Pyydä lisätietoa
