Vuokrataan toimistotilat - Helsinki
Vilhonvuorenkatu 11, Sörnäinen, 00500 Helsinki #10750988
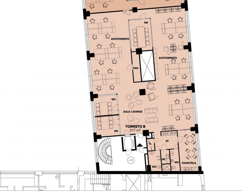
Vuokrataan toimistotila Hattutehtaan 7. kerroksessa. Tila muokataan vuokralaisen tarpeen mukaan. Sörnäisten Hattutehdas tarjoaa runsaasti mahdollisuuksia niille, jotka tahtovat yhdistää historiallisen tehdasrakennuksen rouheuden ja modernin, talotekniikaltaan ensiluokkaisen toimistoympäristön. Kaikki tilat ovat muokattavissa käyttäjänsä ilmettä ja tarpeita vastaaviksi. SOITA ja SOVI ESITTELY, Puh: 09 7745 100.
Osoite
Vilhonvuorenkatu 11, 00500 Helsinki
Tilatyyppi
Toimistotilaa
317 m2
Kiinteistö
Hattutehtaan kiinteistö sijaitsee näköalapaikalla Sörnäisten rantatien ja Vilhonvuorenkadun kulmassa. Hattutehdas on erittäin hyvin saavutettavissa julkisella liikenteellä, lähimmät pysäkit ovat heti kadun toisella puolella. Myös autolla on Hattutehtaalle kätevää saapua, sillä sijainti on aivan Itäväylän alkupäässä. Sekä keskusta että Pasila ovat kävelyetäisyydellä, samoin myös kehittyvä Kalasatama ja Redin palvelut.
Sijainti
Sörnäinen - Suvilahti
Ympäristö
Sörkka - Kalasatama
Pysäköinti
Autohalli ja piha.
Palvelut
Rakennuksessa on kaikkia vuokralaisia palveleva lounasravintola sekä useita vuokrakäyttöön tarkoitettuja kokous- ja neuvottelutiloja. Eloa Hattutehtaaseen tuovat talon yhteydessä toimivat myymälät, kahvila ja kuntosali.
Vapautuu
Heti
Kerros
7
Energiatehokkuusluokka
Ei lain edellyttämää energiatodistusta
Näkyvällä paikalla
Hissi
Liitetiedostot
Ota yhteyttä
Senaatin Notariaatti Oy LKV
Lämmittäjänkatu 4 A
FIN-00880 Helsinki
Tel:
Näytä puhelinnumero
+358 9 7745 100
Pyydä lisätietoa
