Vuokrataan toimistotilat, työtilat - Helsinki
Lemuntie 9, Vallila, 00510 Helsinki #10747970
Isot ja siistit toimitilat vuokrattavana Vallilassa! Vuokra alkaen 12 €/m²/kk + alv
Osoite
Lemuntie 9, 00510 Helsinki
Tilatyyppi
Toimistotilaa
550 m2
Työtilaa
550 m2
Yhteensä
550 m2
Virtuaaliesittely
Vuokra
Alkaen 12 €/m²/kk + alv
Muuta
Nyt on tarjolla siisti toimisto- ja avokonttoritila vuokrattavaksi suurellekin toimijalle. Noin 550-neliöinen huoneisto sijaitsee Helsingin Vallilassa ison, 1950- ja 60-luvun vaihteessa rakennetun toimitalon kolmannessa kerroksessa.
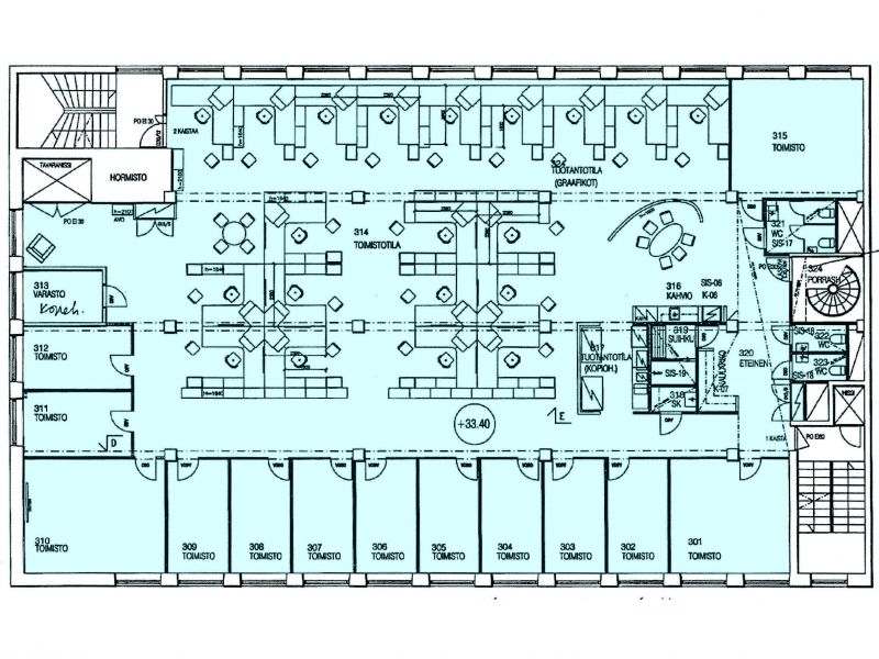
Tilavan avokonttorin lisäksi huoneistossa on kaikkiaan 13 erillistä toimistohuonetta, moderni keittiönurkkaus/taukotila, suihkuhuone ja wc:t. Suurimmassa osassa huoneista avokonttorin puoleinen seinä on huurrettua lasia, mikä tuo tiloihin lisää valoa. Pääasiallinen kulku huoneistoon tapahtuu Lemuntien puoleisesta porrashuoneesta, jossa on henkilöhissi. Tarvittaessa tilaan on mahdollista kuljettaa isoja tavaroita avokonttorin perällä sijaitsevalla tavarahissillä.
Huoneisto sopii loistavasti vaikkapa erilaisille asiantuntijaorganisaatioille, esimerkiksi suunnittelu- tai mainostoimistolle, rakennuttajalle, lakiasiantoimistolle, tilitoimistolle… Tilat on merkitty pohjakuvaan sinisellä värillä.
Pysäköinti tapahtuu kadulla. Lisäksi pysäköintihallissa sekä ulkoparkkipaikallakin on vuokrattavana muutama paikka. Alueelle pääsee sujuvasti myös julkisilla liikennevälineillä!
Kysy mahdollisuutta vuokrata tiloja pienempinä kokonaisuuksina!
Kohdetiedot
Sijainti
Katuosoite: Lemuntie 9, 00510 Helsinki
Kaupunginosa: Vallila
Ympäristö: Toimitaloja, liikerakennuksia
Rakennus/huoneisto
Pinta-alat: Noin 550 m²
Kiinteistötyyppi: Toimistorakennus
Rakennusvuosi: 1959
Energiatodistus: Ei lain edellyttämää todistusta
Huoneistoselitelmä: Toimistohuoneita, avokonttori, keittiönurkkaus/taukotila, wc:t, suihku
Kerros: 3.
Hissi: On
Kunto, varusteet ja palvelut: Hyvässä kunnossa olevat, siistit tilat, loistavat yhteydet julkisilla kulkuneuvoilla, Vallilan palvelut vieressä
Pysäköinti: Kadulla, pysäköintihallissa (100 €/kk + alv), ulkoparkkipaikalla (60 €/kk + alv)
Vapautuu: Sopimuksen mukaan
Vuokrahinta ja kulut
Kuukausivuokra: Alkaen 12 €/m²/kk + alv
Sähkö- ja vesimaksu: Erikseen sovitusti
Lämmitys: Sisältyy vuokraan
Jätehuolto: Normaali määrä sekajätettä voi viedä taloyhtiön jätekeräykseen
Muuta: Minimisopimuskausi 12 kk, vakuus 3 kk:n vuokraa vastaava summa ja luottotietojen on oltava kunnossa
Tilavan avokonttorin lisäksi huoneistossa on kaikkiaan 13 erillistä toimistohuonetta, moderni keittiönurkkaus/taukotila, suihkuhuone ja wc:t. Suurimmassa osassa huoneista avokonttorin puoleinen seinä on huurrettua lasia, mikä tuo tiloihin lisää valoa. Pääasiallinen kulku huoneistoon tapahtuu Lemuntien puoleisesta porrashuoneesta, jossa on henkilöhissi. Tarvittaessa tilaan on mahdollista kuljettaa isoja tavaroita avokonttorin perällä sijaitsevalla tavarahissillä.
Huoneisto sopii loistavasti vaikkapa erilaisille asiantuntijaorganisaatioille, esimerkiksi suunnittelu- tai mainostoimistolle, rakennuttajalle, lakiasiantoimistolle, tilitoimistolle… Tilat on merkitty pohjakuvaan sinisellä värillä.
Pysäköinti tapahtuu kadulla. Lisäksi pysäköintihallissa sekä ulkoparkkipaikallakin on vuokrattavana muutama paikka. Alueelle pääsee sujuvasti myös julkisilla liikennevälineillä!
Kysy mahdollisuutta vuokrata tiloja pienempinä kokonaisuuksina!
Kohdetiedot
Sijainti
Katuosoite: Lemuntie 9, 00510 Helsinki
Kaupunginosa: Vallila
Ympäristö: Toimitaloja, liikerakennuksia
Rakennus/huoneisto
Pinta-alat: Noin 550 m²
Kiinteistötyyppi: Toimistorakennus
Rakennusvuosi: 1959
Energiatodistus: Ei lain edellyttämää todistusta
Huoneistoselitelmä: Toimistohuoneita, avokonttori, keittiönurkkaus/taukotila, wc:t, suihku
Kerros: 3.
Hissi: On
Kunto, varusteet ja palvelut: Hyvässä kunnossa olevat, siistit tilat, loistavat yhteydet julkisilla kulkuneuvoilla, Vallilan palvelut vieressä
Pysäköinti: Kadulla, pysäköintihallissa (100 €/kk + alv), ulkoparkkipaikalla (60 €/kk + alv)
Vapautuu: Sopimuksen mukaan
Vuokrahinta ja kulut
Kuukausivuokra: Alkaen 12 €/m²/kk + alv
Sähkö- ja vesimaksu: Erikseen sovitusti
Lämmitys: Sisältyy vuokraan
Jätehuolto: Normaali määrä sekajätettä voi viedä taloyhtiön jätekeräykseen
Muuta: Minimisopimuskausi 12 kk, vakuus 3 kk:n vuokraa vastaava summa ja luottotietojen on oltava kunnossa
Vapautuu
Sopimuksen mukaan
Rakennusvuosi
1959
Kerros
3 / 6
Energiatehokkuusluokka
Ei lain edellyttämää energiatodistusta
Hissi
Ota yhteyttä
Tilat.fi
KTM, LKV Antti Soivio
Näytä puhelinnumero
0400 446 553
OTM, LKV Riikka Tuominen
Näytä puhelinnumero
0400 551 790
KTM, LKV Maria-Sofia Puhakka
Näytä puhelinnumero
0400-150330
MBA, LKV Susanne Wallenius
Näytä puhelinnumero
0400-128877
LKV Tilat.fi Oy toimitilojen välitykseen erikoistunut yritys.
http://www.tilat.fiPyydä lisätietoa
