Vuokrataan tuotantotilat - Kempele
Rasivainiontie 6, Riihivainio, 90440 Kempele #10747509
Osoite
Rasivainiontie 6, 90440 Kempele
Tilatyyppi
Tuotantotilaa
445 m2
Vuokra
4788,20 €/kk
Vuokraan sisältyy lämpö
Muuta
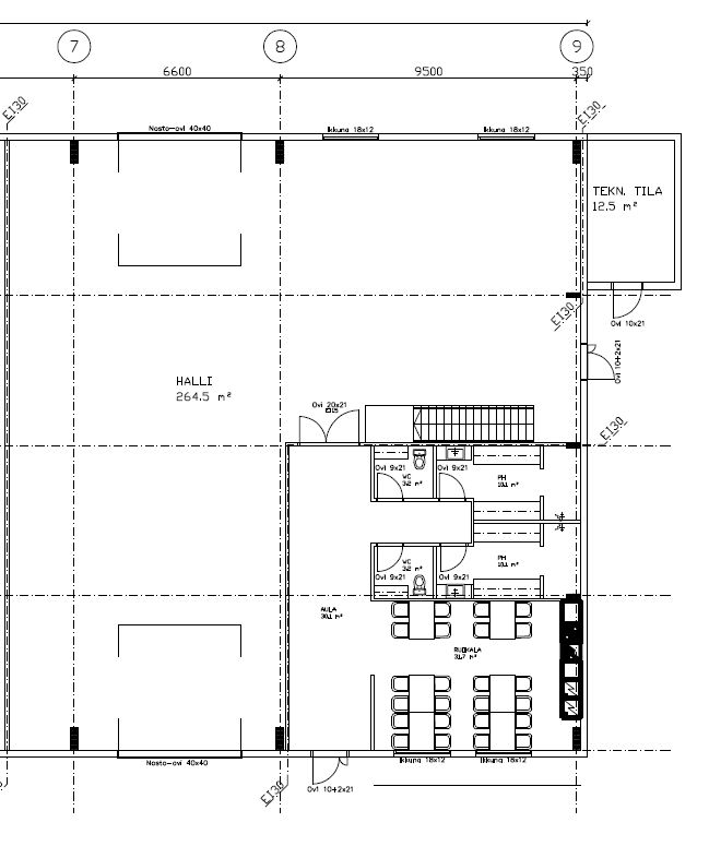
Kempeleen Riihivainiolta vapautumassa vuokrattavaksi korkeaa hallitilaa ja siistiä toimistotilaa. Tuotanto- ja hallitilaa on 265m2 ja toimistotilaa 180m2.
Hallitiloihin on isot nosto-ovet käyntioven lisäksi ja halli on läpiajettava. Tarvittaessa pihatilaa on mukavasti käytettävissä sopimuksen mukaan.
Vuokra 10,76 €/m2, 4788,20 €/kk + alv.
Lämmitys sisältyy vuokraan, vedestä ja käyttösähköstä maksetaan erikseen.
Hallien välinen piha-alue on asfaltoitu ja tässä on lämpötolpallisia autopaikkoja vuokrattavana 10 e/kpl/kk + alv.
Toimisto-osa koostuu alakerran sosiaali- ja avotilasta sekä yläkerran keittiöstä, toimistohuoneista ja neukkarista. Tilat vapautuvat sopimuksen mukaan. Tarvittaessa samasta pihapiiristä on mahdollisuus vuokrata lisää hallitilaa 246m2.
Tästä fiksut ja toimivat tilat, kysy lisää!
Eikö tämä ole sopiva? Kysy muita vaihtoehtojamme!
Hallitiloihin on isot nosto-ovet käyntioven lisäksi ja halli on läpiajettava. Tarvittaessa pihatilaa on mukavasti käytettävissä sopimuksen mukaan.
Vuokra 10,76 €/m2, 4788,20 €/kk + alv.
Lämmitys sisältyy vuokraan, vedestä ja käyttösähköstä maksetaan erikseen.
Hallien välinen piha-alue on asfaltoitu ja tässä on lämpötolpallisia autopaikkoja vuokrattavana 10 e/kpl/kk + alv.
Toimisto-osa koostuu alakerran sosiaali- ja avotilasta sekä yläkerran keittiöstä, toimistohuoneista ja neukkarista. Tilat vapautuvat sopimuksen mukaan. Tarvittaessa samasta pihapiiristä on mahdollisuus vuokrata lisää hallitilaa 246m2.
Tästä fiksut ja toimivat tilat, kysy lisää!
Eikö tämä ole sopiva? Kysy muita vaihtoehtojamme!
Vapautuu
Heti vapaa
Kerros
1
Ota yhteyttä
Kiinteistö-Tahkola Oy
Lumijoentie 1, 90400 Oulu
Näytä puhelinnumero
0207 480 250
Sami Kortesoja
Näytä puhelinnumero
045 896 4803
Pyydä lisätietoa
