Vuokrataan toimistotilat - Porvoo
Urakoitsijantie 15 A 1, 06450 Porvoo #10746629
Siisti toimistotila vuokrattavana Porvoon Ölstensissä! Vuokra 700 €/kk + alv
Osoite
Urakoitsijantie 15 A 1, 06450 Porvoo
Tilatyyppi
Toimistotilaa
45 m2
Virtuaaliesittely
Vuokra
700 €/kk + alv
Vuokraan sisältyy vesi, lämpö
Muuta
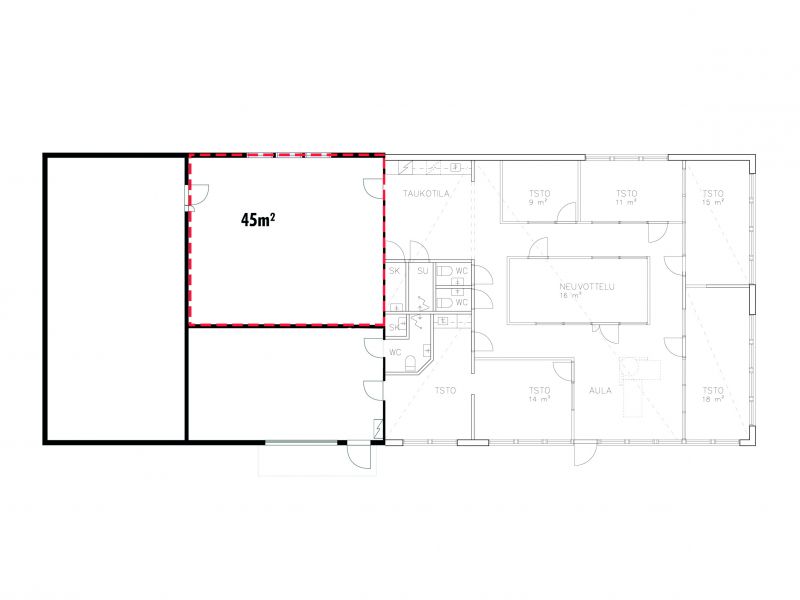
Porvoon Ölstensin alueella on vuokrattavana siisti toimistohuone. Huone sijaitsee ison hallirakennuksen päätytiloissa, jotka on väliseinin jaettu useamman käyttäjän tyylikkäiksi toimistoiksi. Nyt vuokrattavana oleva, noin 45-neliöinen huone on merkitty pohjakuvaan punaisella katkoviivalla.
Kaikkien vuokralaisten yhteiskäytössä ovat niin kutsuva aulatila, kaunis keittiö, valoisa neuvotteluhuone kuin wc-tilat ja suihkukin. Neuvotteluhuoneen seiniä ei ole rakennettu ulottumaan kiinni sisäkattoon saakka, mutta tarpeen vaatiessa huoneeseen on mahdollista rakentaa umpikatto.
Tiloissa on koneellinen ilmanvaihto. Paikalla käy siivoaja, joka siistii yhteisten tilojen lisäksi toimistohuoneet.
Tilat sopivat vain arvonlisäverovelvolliseen yrityskäyttöön.
Rakennus sijaitsee aidatulla, asfaltoidulla alueella. Yritysalueella on useampi tallentava valvontakamera sekä GSM-ohjatut portit.
Toimiston edessä on hyvin pysäköintitilaa ja liikenneyhteydet paikalle ovat sujuvat.
Kutsuvat yhteiset tilat!
Kohdetiedot
Sijainti
Katuosoite: Urakoitsijantie 15 A 1, 06450 Porvoo
Kaupunginosa: Ölstens
Ympäristö: Yritysalue
Rakennus/huoneisto
Pinta-alat: 45 m²
Rakennusvuosi: 2004
Kiinteistötyyppi: Toimisto- ja hallirakennus
Tilatyyppi: Toimistotila
Kunto, varusteet ja palvelut: Erinomainen kunto, koneellinen ilmanvaihto, yhteiskäytössä aulatila, keittiö, neuvotteluhuone, wc-tilat, suihku
Pysäköinti: Paljon pysäköintipaikkoja toimiston edessä
Lämmitys: Maalämpö
Vapautuu: Sopimuksen mukaan
Vuokrahinta ja kulut
Kuukausivuokra: 700 €/kk + alv
Sähkömaksu: 60 €/kk + alv
Vesimaksu: Sisältyy vuokraan
Lämmitys: Sisältyy vuokraan
Siivousmaksu: 70 €/kk + alv
Internet tarvittaessa: 50 €/kk + alv
Muuta: Minimisopimuskausi 12 kk, vakuus 3 kk:n vuokraa vastaava summa, luottotietojen oltava kunnossa
Kaikkien vuokralaisten yhteiskäytössä ovat niin kutsuva aulatila, kaunis keittiö, valoisa neuvotteluhuone kuin wc-tilat ja suihkukin. Neuvotteluhuoneen seiniä ei ole rakennettu ulottumaan kiinni sisäkattoon saakka, mutta tarpeen vaatiessa huoneeseen on mahdollista rakentaa umpikatto.
Tiloissa on koneellinen ilmanvaihto. Paikalla käy siivoaja, joka siistii yhteisten tilojen lisäksi toimistohuoneet.
Tilat sopivat vain arvonlisäverovelvolliseen yrityskäyttöön.
Rakennus sijaitsee aidatulla, asfaltoidulla alueella. Yritysalueella on useampi tallentava valvontakamera sekä GSM-ohjatut portit.
Toimiston edessä on hyvin pysäköintitilaa ja liikenneyhteydet paikalle ovat sujuvat.
Kutsuvat yhteiset tilat!
Kohdetiedot
Sijainti
Katuosoite: Urakoitsijantie 15 A 1, 06450 Porvoo
Kaupunginosa: Ölstens
Ympäristö: Yritysalue
Rakennus/huoneisto
Pinta-alat: 45 m²
Rakennusvuosi: 2004
Kiinteistötyyppi: Toimisto- ja hallirakennus
Tilatyyppi: Toimistotila
Kunto, varusteet ja palvelut: Erinomainen kunto, koneellinen ilmanvaihto, yhteiskäytössä aulatila, keittiö, neuvotteluhuone, wc-tilat, suihku
Pysäköinti: Paljon pysäköintipaikkoja toimiston edessä
Lämmitys: Maalämpö
Vapautuu: Sopimuksen mukaan
Vuokrahinta ja kulut
Kuukausivuokra: 700 €/kk + alv
Sähkömaksu: 60 €/kk + alv
Vesimaksu: Sisältyy vuokraan
Lämmitys: Sisältyy vuokraan
Siivousmaksu: 70 €/kk + alv
Internet tarvittaessa: 50 €/kk + alv
Muuta: Minimisopimuskausi 12 kk, vakuus 3 kk:n vuokraa vastaava summa, luottotietojen oltava kunnossa
Vapautuu
Heti
Rakennusvuosi
2004
Kerros
1 / 1
Katutasossa
Ota yhteyttä
Tilat.fi
KTM, LKV Antti Soivio
Näytä puhelinnumero
0400 446 553
OTM, LKV Riikka Tuominen
Näytä puhelinnumero
0400 551 790
KTM, LKV Maria-Sofia Puhakka
Näytä puhelinnumero
0400-150330
HTM, LKV Aleksandra Riki
Näytä puhelinnumero
0400-211288
LKV Tilat.fi Oy on toimitilojen välitykseen erikoistunut yritys.
http://www.tilat.fiPyydä lisätietoa
