Vuokrataan toimistotilat - Tampere
Hatanpään Valtatie 26, Hatanpää, 33100 Tampere #10745579
Osoite
Hatanpään Valtatie 26, 33100 Tampere
Tilatyyppi
Toimistotilaa
395 m2
Muuta
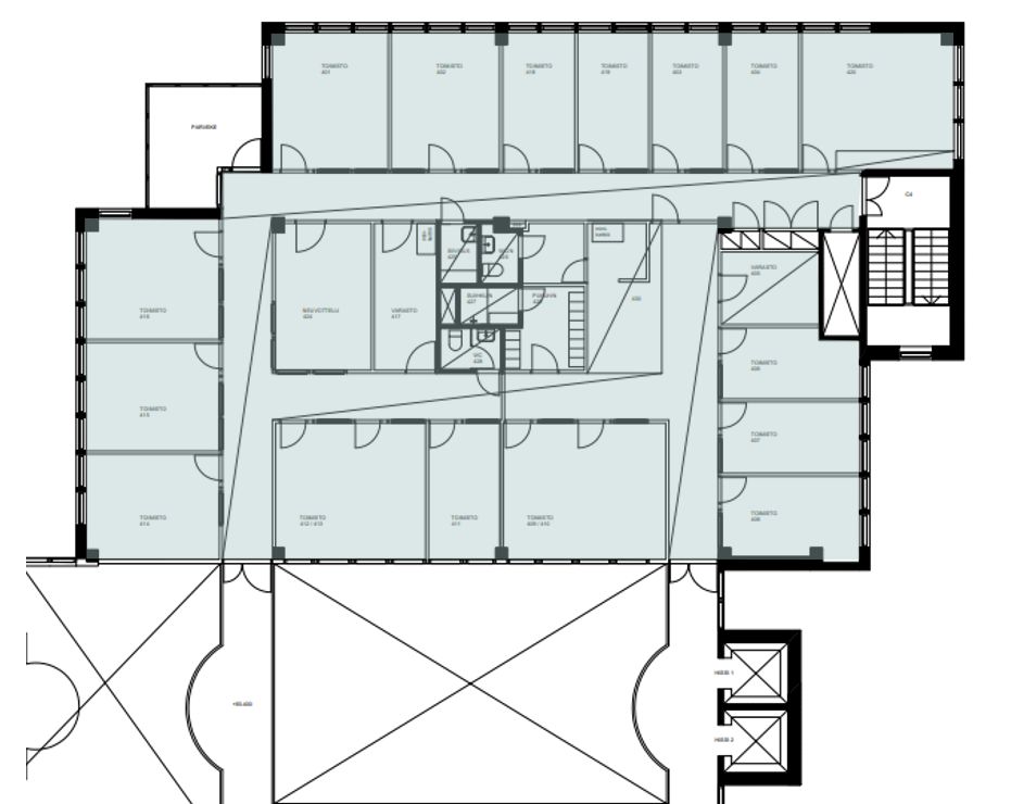
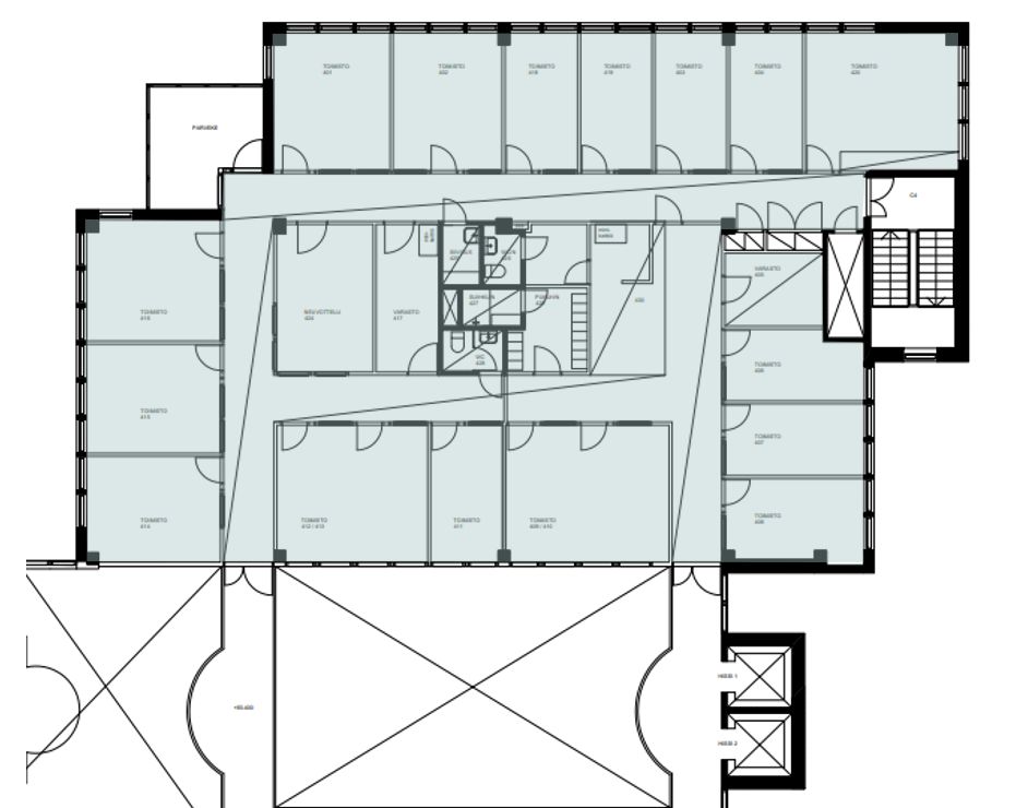
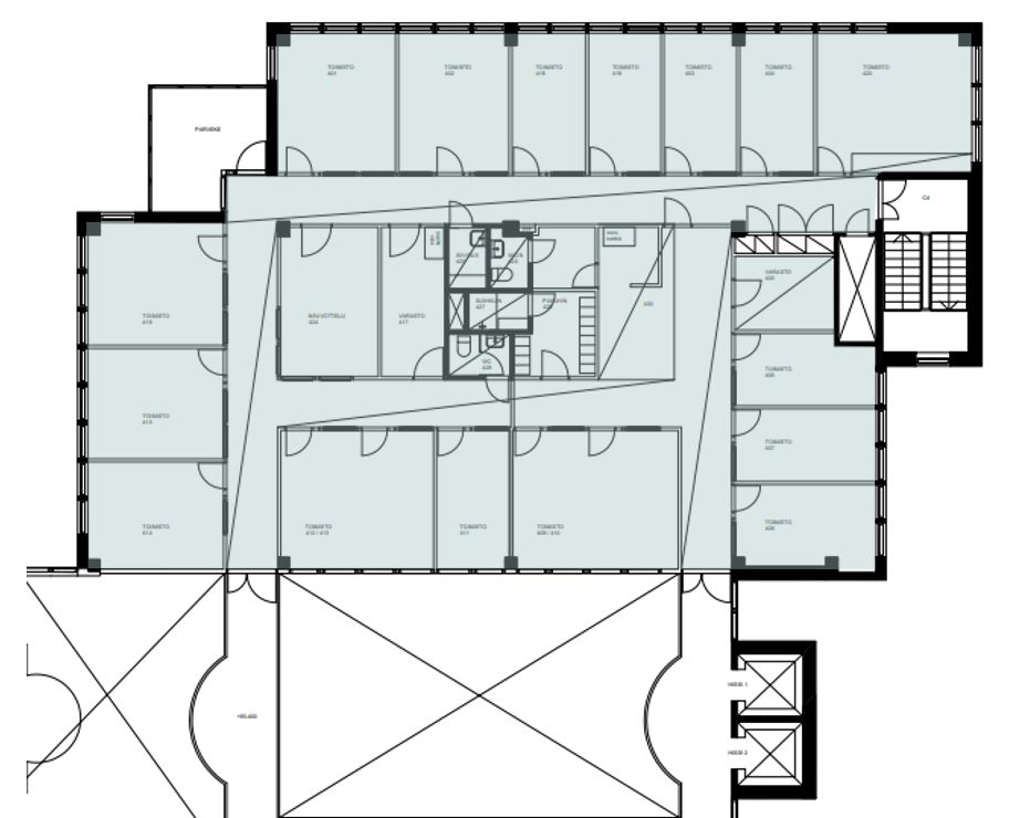
Vuokrataan noin 395 m2 toimistotila Hatanpäältä.
Jäähdytettyä toimistotilaa 7. kerroksessa. Osasta tiloja upeat Pyhäjärvi näkymät. Paljon 1-2 hengen toimistohuoneita valmiina.
Autopaikkoja vuokrattavissa kiinteistön parkkihallista.
Esite liitteenä.
Kysy lisää ja sovi näyttö!
Sami Saraste
Myyntipäällikkö, LKV
sami.saraste@catella.com
050 3014 455
Tilanhakijalle palvelumme ovat maksuttomia.
Catella Property Oy on valtakunnallinen toimitilojen vuokraukseen ja myyntiin keskittynyt kiinteistönvälitysyritys.
Kysy paikallisilta ammattitaitoisilta välittäjiltämme myös muita välityksessämme olevia toimitilakohteita.
Välittäjiemme yhteystiedot ja lisää välitettäviä tilakohteita verkkosivuillamme: www.toimitilat.catella.fi.
Ota yhteyttä!
Jäähdytettyä toimistotilaa 7. kerroksessa. Osasta tiloja upeat Pyhäjärvi näkymät. Paljon 1-2 hengen toimistohuoneita valmiina.
Autopaikkoja vuokrattavissa kiinteistön parkkihallista.
Esite liitteenä.
Kysy lisää ja sovi näyttö!
Sami Saraste
Myyntipäällikkö, LKV
sami.saraste@catella.com
050 3014 455
Tilanhakijalle palvelumme ovat maksuttomia.
Catella Property Oy on valtakunnallinen toimitilojen vuokraukseen ja myyntiin keskittynyt kiinteistönvälitysyritys.
Kysy paikallisilta ammattitaitoisilta välittäjiltämme myös muita välityksessämme olevia toimitilakohteita.
Välittäjiemme yhteystiedot ja lisää välitettäviä tilakohteita verkkosivuillamme: www.toimitilat.catella.fi.
Ota yhteyttä!
Vapautuu
Heti vapaa
Kerros
7.
Liitetiedostot
Ota yhteyttä
Catella Property Oy
Hämeenkatu 13b A, 33100 Tampere
Näytä puhelinnumero
010 5220 100
Sami Saraste
Näytä puhelinnumero
0503014455
Pyydä lisätietoa
