Vuokrataan toimistotilat, tuotantotilat, autotalli/-hallitilat - Oulu
Automaatiotie 1, 90460 Oulu #10745560
Vuokrataan aivan Oulun lentokentän kupeesta hyvätasoista hallitilaa, sekä siihen liittyvä toimistohuoneisto.
Technology Park Oulu on tyylikäs, moderni ja monipuolinen toimisto- ja tuotantotilakonsepti Oulun lentokentän vieressä. Kohteen laaja palveluvalikoima takaa pääkonttoritason palvelukokemuksen.
Osoite
Automaatiotie 1, 90460 Oulu
Tilatyyppi
Toimistotilaa
200 m2
Tuotantotilaa
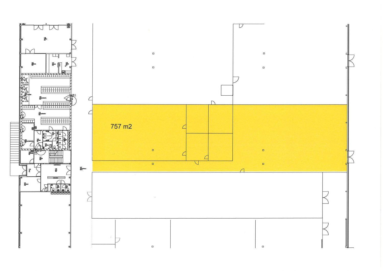
757 m2
Autotalli/-hallitilaa
757 m2
Yhteensä
757 - 957 m2
Tilajako
Hallirakennuksessa 2.kerroksen toimisto-osio 200m².
Pohjapiirros
Vuokra
Halli 10,50€/m², toisen kerroksen toimísto 12,50€/m² + alv.Toimisto-osion vuokra sisältää myös sähkön ja veden. Tuotantotiloihin lisäksi käyttösähkö ja vesi. Tilamääriin lisätään kerroin 1,1 yhteiskäyttötiloista, sekä erilliskorvaus aulapalveluista 0,55€/m².
Vuokraan sisältyy lämpö
Sijainti
Lentokentän vieressä
Pysäköinti
Piha-alueella kymmeniä paikkoja
Palvelut
Technology Parkin asiakkaita ja vuokralaisia palvelevat aulapalvelu sekä laadukas lounasravintola catering-palveluineen. Tiloista löytyy puitteet erilaisille kokouksille ja tilaisuuksille moderneista neuvotteluhuoneista luksusta henkivään saunaosastoon.
Kulkuyhteydet
Bussit Lentokentäntietä
Muuta
Toimistoissa koneellinen IV kanavajäähdytyksellä. Tuotantohallin väliseiniä voidaan purkaa.
Kiinteistölle tulee NetPlazan valokuitu.
Kiinteistölle tulee NetPlazan valokuitu.
Vapautuu
Tarvittaessa nopeastikin
Näkyvällä paikalla
Lastauslaituri
Ota yhteyttä
Pohjois-Suomen Toimitilat Oy
Sepänkatu 20, 90100 Oulu
Pekka Valkola
Näytä puhelinnumero
044 311 0555
Pyydä lisätietoa
