Vuokrataan liiketilat - Lappeenranta
Myllärinkatu 12, 53100 Lappeenranta #10742631
Liike- ja toimitilaa Lappeenrannassa.
Osoite
Myllärinkatu 12, 53100 Lappeenranta
Tilatyyppi
Liiketilaa
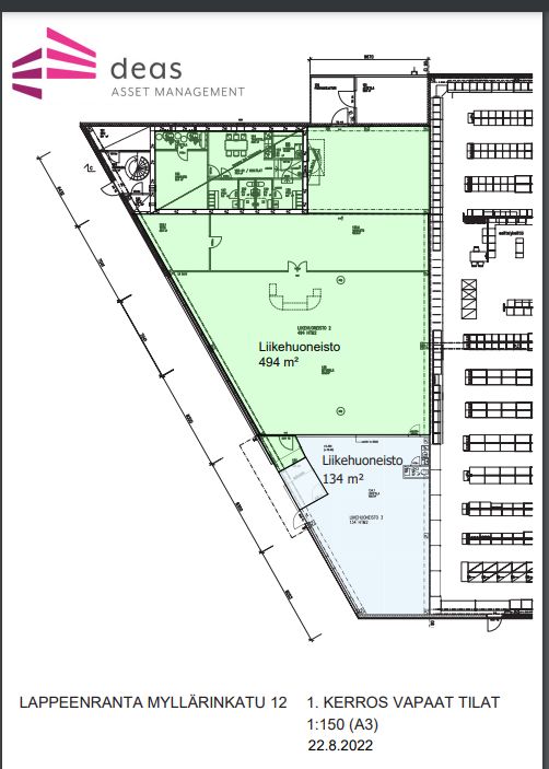
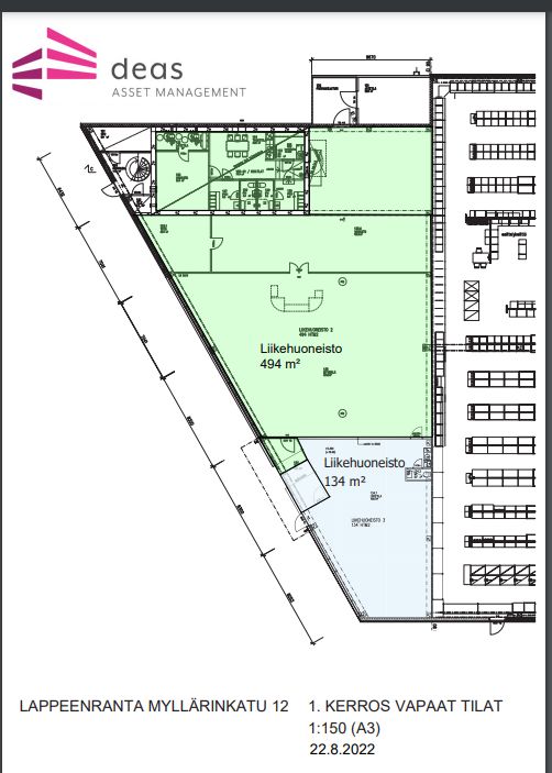
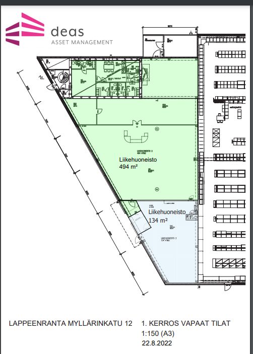
494 m2
Kiinteistö
Modernia liike- ja toimitilaa Lappeenrannassa.
Tarjoamme vuokralle modernia
Modernia liike- ja toimitilaa 494 m² 2011 valmistuneesta kiinteistöstä.
Sijainti Lappeenrannan parhailla paikoilla Myllymäessä osoitteessa Myllärinkatu 12, aivan siinä Gigantin ja XXL:n välissä.
Kiinteistö näkyy hyvin vt 6:lle ja sillä on runsaasti pysäköintipaikkoja.
Tarjoamme vuokralle modernia
Modernia liike- ja toimitilaa 494 m² 2011 valmistuneesta kiinteistöstä.
Sijainti Lappeenrannan parhailla paikoilla Myllymäessä osoitteessa Myllärinkatu 12, aivan siinä Gigantin ja XXL:n välissä.
Kiinteistö näkyy hyvin vt 6:lle ja sillä on runsaasti pysäköintipaikkoja.
Vapautuu
Kysy
Kerros
1
Ota yhteyttä
LogisTila Oy
Kauppakatu 14, 33210 Tampere
Tuomas Lehtinen
Näytä puhelinnumero
044 491 5961
Pyydä lisätietoa
