Vuokrataan liiketilat - Vantaa
Äyritie 4, Veromies, 01510 Vantaa #10733980
Etsitään kokenutta ravintolatoimijaa Aviapoliksen katutason lounasravintolatilaan.
Osoite
Äyritie 4, 01510 Vantaa
Tilatyyppi
Liiketilaa
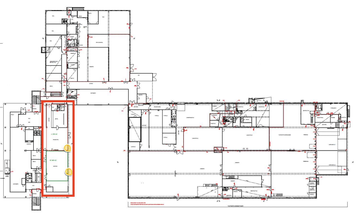
220 - 360 m2
Tilajako
Mahdollisuus jakaa.
Pohjapiirros
Tila soveltuu
Ravintola, elintarviketila
Kiinteistö
Vuokrattavana katutasossa sijaitseva lounasravintolakäyttöön soveltuva tilakokonaisuus osoitteessa Äyritie 4, Vantaa. Kohteeseen etsitään toimijaa, jolla on voimassa oleva yritys ja valmius harjoittaa ravintolatoimintaa.
Tila koostuu noin 220 m² keittiö ja ruokailutilasta sekä erillisestä noin 140 m² tilasta, joka on aiemmin toiminut auditoriona. Tilat ovat yhdistettävissä yhdeksi noin 360 m² kokonaisuudeksi. Pinta-alaa ei ole tarkistusmitattu.
Keittiö on varustettu rasvakaivolla ja rasvakanavalla, mikä mahdollistaa ravintolatoiminnan käynnistämisen ilman raskaita taloteknisiä muutoksia. Tilakokonaisuus sisältää lisäksi henkilökunnan pukuhuoneen, wc tilat, toimistotilan, varaston sekä siivouskomeron, jotka tukevat sujuvaa päivittäistä operointia.
Tilassa on aiemmin toiminut lounasravintola, ja se soveltuu hyvin vastaavaan käyttöön. Tavarantoimitus on helppo toteuttaa suoraan tilaan johtavien pariovien kautta.
Tila vuokrataan nykykunnossa, ja mahdollisista muutostöistä sovitaan erikseen vuokranantajan kanssa.
Soveltuu hyvin lounasravintolalle tai henkilöstöravintolalle.
Tila koostuu noin 220 m² keittiö ja ruokailutilasta sekä erillisestä noin 140 m² tilasta, joka on aiemmin toiminut auditoriona. Tilat ovat yhdistettävissä yhdeksi noin 360 m² kokonaisuudeksi. Pinta-alaa ei ole tarkistusmitattu.
Keittiö on varustettu rasvakaivolla ja rasvakanavalla, mikä mahdollistaa ravintolatoiminnan käynnistämisen ilman raskaita taloteknisiä muutoksia. Tilakokonaisuus sisältää lisäksi henkilökunnan pukuhuoneen, wc tilat, toimistotilan, varaston sekä siivouskomeron, jotka tukevat sujuvaa päivittäistä operointia.
Tilassa on aiemmin toiminut lounasravintola, ja se soveltuu hyvin vastaavaan käyttöön. Tavarantoimitus on helppo toteuttaa suoraan tilaan johtavien pariovien kautta.
Tila vuokrataan nykykunnossa, ja mahdollisista muutostöistä sovitaan erikseen vuokranantajan kanssa.
Soveltuu hyvin lounasravintolalle tai henkilöstöravintolalle.
Sijainti
Kiinteistö sijaitsee Aviapoliksen yritysalueella. Sijainti tarjoaa erinomaiset yhteydet pääväylille, kuten Tuusulanväylälle ja Kehä III:lle. Helsinki Vantaan lentoasema sijaitsee muutaman minuutin ajomatkan päässä.
Alue on helposti saavutettavissa sekä omalla autolla että julkisilla kulkuvälineillä.
Alue on helposti saavutettavissa sekä omalla autolla että julkisilla kulkuvälineillä.
Ympäristö
Aviapolis on yksi pääkaupunkiseudun merkittävimmistä yritys ja toimistokeskittymistä. Alueella toimii runsaasti toimisto ja logistiikka alan yrityksiä sekä kansainvälisiä toimijoita.
Ympäristö luo hyvän asiakaspohjan erityisesti lounasravintolatoiminnalle, sillä alueella työskentelee suuri määrä päivittäisiä kävijöitä.
Ympäristö luo hyvän asiakaspohjan erityisesti lounasravintolatoiminnalle, sillä alueella työskentelee suuri määrä päivittäisiä kävijöitä.
Pysäköinti
Kiinteistön yhteydessä on pysäköintimahdollisuuksia henkilökunnalle ja asiakkaille.
Palvelut
Aviapoliksen alueella on kattavat palvelut. Lentoaseman läheisyys tuo alueelle myös kansainvälistä liikennettä ja lisää asiakasvirtaa.
Kulkuyhteydet
Lähimmät bussipysäkit sijaitsevat kävelyetäisyydellä kiinteistöstä.
Aviapoliksen juna asema on noin 1 kilometrin etäisyydellä, josta on suora yhteys Helsingin keskustaan ja lentoasemalle.
Aviapoliksen juna asema on noin 1 kilometrin etäisyydellä, josta on suora yhteys Helsingin keskustaan ja lentoasemalle.
Vuokralaisia
Alueella toimii useita kotimaisia ja kansainvälisiä yrityksiä eri toimialoilta, mikä tukee ravintolatoiminnan kysyntää.
Muuta
Tila on heti vapaa. Mahdollisuus vuokrata joko pelkkä ravintolatila tai yhdistää siihen viereinen tila suuremmaksi kokonaisuudeksi. Kohde soveltuu erityisesti toimijalle, joka hakee valmiiksi ravintolakäyttöön soveltuvaa tilaa vahvalta yritysalueelta.
Vapautuu
Heti
Energiatehokkuusluokka
Ei lain edellyttämää energiatodistusta
Katutasossa
Näkyvällä paikalla
Ota yhteyttä
Comreal Oy LKV
Joonas Nilsson
Näytä puhelinnumero
044 328 3425
Ota yhteyttä, niin kerron lisää kohteesta. Huomasithan, että kaikki kohteemme ei ole esillä internetissä. Kerro meille tilatarpeesi, niin autamme sinua etsimään yrityksellesi oikean tilan.
Tilahakumme on maksuton.
Pyydä lisätietoa
