Myydään toimistotilat, tuotantotilat, autotalli/-hallitilat, muut tilat - Oulu
Palolankuja 4, 90620 Oulu #10730818
Myydään suositulta Ruskonniityn alueelta hyvässä kunnossa oleva tuotanto-/korjaamohalli!
Sähköportillinen aita kiertää koko tontin. Laaja piha-alue asfaltoitu lähes kokonaan.
Osoite
Palolankuja 4, 90620 Oulu
Tilatyyppi
Toimistotilaa
30 m2
Tuotantotilaa
520 m2
Autotalli/-hallitilaa
520 m2
Muuta tilaa
36 m2
Yhteensä
586 m2
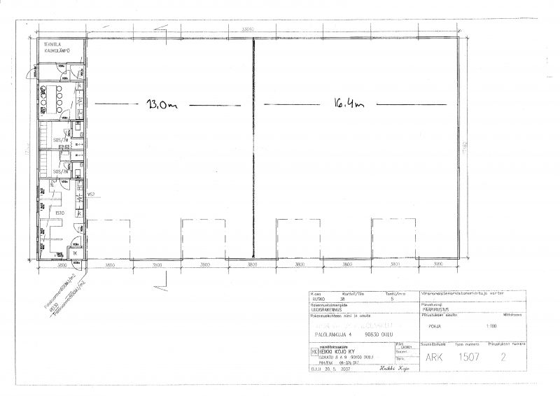
Tilajako
2 hallitilaa, n.290m² ja n.230m². Isommassa myös pesuhallitila. Koko hallitila 520m² jaettu kevyellä väliseinällä, jonka voi tarpeen mukaan purkaa.
Pohjapiirros
Myyntihinta
585.000€
Kiinteistö
Kaupungin vuokratontin pinta-ala 2785m². Rakennusoikeutta jäljellä vielä 541m².
Vuokra-aika 2042 vuoden loppuun.
Tontin vuokra 3247,00, kiinteistövero 1476,00
Vuokra-aika 2042 vuoden loppuun.
Tontin vuokra 3247,00, kiinteistövero 1476,00
Sijainti
Kivenheiton päässä Raitotiestä
Pysäköinti
Piha-alueella hyvin tilaa
Muuta
Koko halliin rakennettu uudet lattiarakenteet raskaille ajoneuvoille 2018-19. Nosto-ovellisten hallitilojen korkeus n.4700. Nosto-ovet 3800 x 4400.
2 hallitilaa, n.290m² ja n.230m². Isommassa myös pesuhallitila. Koko hallitila 520m² jaettu kevyellä väliseinällä, jonka voi tarpeen mukaan purkaa.
Muu tila pitää sisällään sos.tilat sekä tek.tilan.
2 hallitilaa, n.290m² ja n.230m². Isommassa myös pesuhallitila. Koko hallitila 520m² jaettu kevyellä väliseinällä, jonka voi tarpeen mukaan purkaa.
Muu tila pitää sisällään sos.tilat sekä tek.tilan.
Vapautuu
01.09.2026
Rakennusvuosi
2008
Ota yhteyttä
Pohjois-Suomen Toimitilat Oy
Harjapäänkatu 33, 90400 Oulu
Pekka Valkola
Näytä puhelinnumero
044 311 0555
Pyydä lisätietoa
