Vuokrataan toimistotilat - Helsinki
Hämeentie 13, Sörnäinen, 00530 Helsinki #10730524
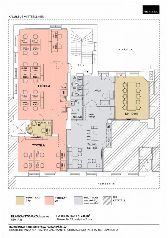
Ensimmäisen kerroksen tyylikäs 245 m² toimistotila Elannon vanhassa talossa
Osoite
Hämeentie 13, 00530 Helsinki
Tilatyyppi
Toimistotilaa
245 m2
Pohjapiirros
Kiinteistö
Toimistotila sijaitsee 1. kerroksessa, joka Hämeentien puolella on katutasossa. Tila on yhdistettävissä myös 450 m² kokonaisuudeksi.
Hämeentie 13a:n rakennutti vuonna 1907 Elanto, Helsingin ensimmäinen merkittävä osuuskauppa. Hämeentie 13 on saneerattu tekniikaltaan ja sisätiloiltaan täysin vuonna 2000. Huoneistoala talossa on 2659m2, josta varastoa ja arkistoa n. 275m2.
Taloon on sisäänkäynti sekä suoraan Hämeentien puolelta että kauniilta, kunnostetulta sisäpihalta, josta uumoillaan tulevaisuudessa luovan alan ihmisten kokoontumispaikkaa. Hakaniemi, Sörkkä ja Kallio ovat alueina alkaneet kiinnostaa yrityksiä. Kellarikerroksessa on autohallipaikkoja, pääsy hissillä.
Hämeentie 13a:n rakennutti vuonna 1907 Elanto, Helsingin ensimmäinen merkittävä osuuskauppa. Hämeentie 13 on saneerattu tekniikaltaan ja sisätiloiltaan täysin vuonna 2000. Huoneistoala talossa on 2659m2, josta varastoa ja arkistoa n. 275m2.
Taloon on sisäänkäynti sekä suoraan Hämeentien puolelta että kauniilta, kunnostetulta sisäpihalta, josta uumoillaan tulevaisuudessa luovan alan ihmisten kokoontumispaikkaa. Hakaniemi, Sörkkä ja Kallio ovat alueina alkaneet kiinnostaa yrityksiä. Kellarikerroksessa on autohallipaikkoja, pääsy hissillä.
Sijainti
Kiinteistö sijaitsee erinomaisten liikenneyhteyksien varrella. Bussi- ja raitiovaunupysäkit sekä metro ovat kaikki aivan vieressä.
Palvelut
Hakaniemen tori ja sen ympäristön palvelut ovat 5 min kävelymatkan päässä. Hakaniemessä on torin lisäksi mm. apteekki, posti, lääkäripalvelut, liikuntakeskus ja useita ravintoloita.
Kulkuyhteydet
Helsingin keskusta 1,6 km, Sörnäisten metroasema 400 m, Hakaniemen metroasema 800 m, Lentoasema 18,8 km
Vapautuu
Heti
Rakennusvuosi
1907
Saneerausvuosi
2000
Kerros
1 / 4
Energiatehokkuusluokka
Ei lain edellyttämää energiatodistusta
Näkyvällä paikalla
Hissi
Ota yhteyttä
ScanReal Oy LKV
Opus Business Park
Hitsaajankatu 24
00810 Helsinki
info@scanreal.fi
Puh:
Näytä puhelinnumero
020 730 8830
Sopivat toimitilat yhdellä otolla!
Kartoitamme toimitilatarpeesi ja etsimme yrityksellesi parhaiten sopivat vapaat toimitilat. Koska vuokranantajat maksavat palvelumme, on tämä yrityksellesi veloituksetonta.
OTA YHTEYTTÄ - SOVI NÄYTTÖ!
Kaikki kohteemme eivät ole netissä, kerro tilatarpeesi niin kartoitamme vaihtoehdot.
Palvelumme on tilanhakijalle ilmainen
Pyydä lisätietoa
