Myydään muut tilat - Helsinki
Halmetie 7, Tapanila, 00730 Helsinki #10730372
Myytävänä sijoituskiinteistö Helsingin Tapanilassa! Velaton hinta 949’000 €
Osoite
Halmetie 7, 00730 Helsinki
Tilatyyppi
Muuta tilaa
703 m2
Myyntihinta
Velaton hinta 949’000 €
Muuta
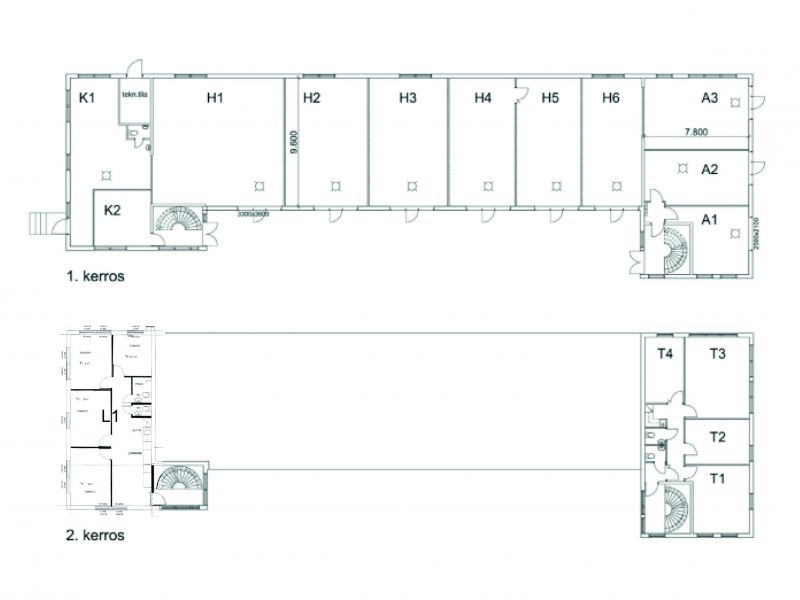
Helsingin Tapanilassa on myytävänä noin 700-neliöinen sijoituskiinteistö. Rakennuksen ensimmäisessä kerroksessa on viralliset autokorjaamotilat, varastotiloja sekä autotalleja. Toisessa kerroksessa on avaria ja valoisia toimistotiloja, joiden yhteydessä on myös sosiaalitilat.
Kiinteistö on täysin remontoitu ja IV-kone on uusittu. Rakennus on 10–15 käyttäjän vuokrakohde.
Vuosittaiset vuokratulot ovat noin 110’000–125’000 euroa (alv-vapaa) vuokrausasteesta riippuen. Tuottoprosentti on noin 8 %.
Pihassa on hyvin pysäköintitilaa.
Rakennus sijaitsee hyvien kulkuyhteyksien päässä; sekä Kehä ykköselle, Kehä kolmoselle, Tuusulanväylälle että Lahdenväylälle on vain parin kolmen kilometrin matka.
Tuottoprosentti noin 8 %!
Kohdetiedot
Sijainti
Katuosoite: Halmetie 7, 00730 Helsinki
Kaupunginosa: Tapanila
Ympäristö: Teollisuus- ja asuinaluetta
Tontti
Pinta-ala: 1’527 m²
Omistusmuoto: Vuokratontti (sopimus voimassa 31.12.2040 asti)
Raknnus/Huoneisto
Pinta-ala: Noin 703,8 m²
Huoneistoselitelmä: Viralliset autokorjaamotilat, varastotiloja, autotalleja, toimistotilaa, sosiaalitilat
Kunto, varusteet ja palvelut: Hyvä kunto
Lämmitys: Kaukolämpö
Pysäköinti: Pihassa
Myyntihinta ja kulut
Velaton hinta: 949’000 €
Vuokratulot: 110’000–125’000 €/v, alv-vapaa (riippuen vuokrausasteesta)
Kulut: 25’000–30’000 €/v
Nettotuotto: 80’000–100’000 €/v
Tonttivuokra: 10’730 €/v
Kiinteistövero: 610 €/v
Kaukolämpö: Noin 8’800 €/v
Kiinteistö on täysin remontoitu ja IV-kone on uusittu. Rakennus on 10–15 käyttäjän vuokrakohde.
Vuosittaiset vuokratulot ovat noin 110’000–125’000 euroa (alv-vapaa) vuokrausasteesta riippuen. Tuottoprosentti on noin 8 %.
Pihassa on hyvin pysäköintitilaa.
Rakennus sijaitsee hyvien kulkuyhteyksien päässä; sekä Kehä ykköselle, Kehä kolmoselle, Tuusulanväylälle että Lahdenväylälle on vain parin kolmen kilometrin matka.
Tuottoprosentti noin 8 %!
Kohdetiedot
Sijainti
Katuosoite: Halmetie 7, 00730 Helsinki
Kaupunginosa: Tapanila
Ympäristö: Teollisuus- ja asuinaluetta
Tontti
Pinta-ala: 1’527 m²
Omistusmuoto: Vuokratontti (sopimus voimassa 31.12.2040 asti)
Raknnus/Huoneisto
Pinta-ala: Noin 703,8 m²
Huoneistoselitelmä: Viralliset autokorjaamotilat, varastotiloja, autotalleja, toimistotilaa, sosiaalitilat
Kunto, varusteet ja palvelut: Hyvä kunto
Lämmitys: Kaukolämpö
Pysäköinti: Pihassa
Myyntihinta ja kulut
Velaton hinta: 949’000 €
Vuokratulot: 110’000–125’000 €/v, alv-vapaa (riippuen vuokrausasteesta)
Kulut: 25’000–30’000 €/v
Nettotuotto: 80’000–100’000 €/v
Tonttivuokra: 10’730 €/v
Kiinteistövero: 610 €/v
Kaukolämpö: Noin 8’800 €/v
Vapautuu
Heti
Ota yhteyttä
Tilat.fi
KTM, LKV Antti Soivio
Näytä puhelinnumero
0400 446 553
OTM, LKV Riikka Tuominen
Näytä puhelinnumero
0400 551 790
KTM, LKV Maria-Sofia Puhakka
Näytä puhelinnumero
0400-150330
Yrityksen virallinen nimi: LKV Toimitilaa.fi Oy. Toimitilojen välitykseen erikoistunut yritys.
http://www.tilat.fiPyydä lisätietoa
