Vuokrataan toimistotilat - Jyväskylä
Sairaalanmäki, Kukkula, 40620 Jyväskylä #10730115
Toimistotalo @ Sairaalanmäki
Osoite
Sairaalanmäki, 40620 Jyväskylä
Tilatyyppi
Toimistotilaa
9 - 360 m2
Kiinteistö
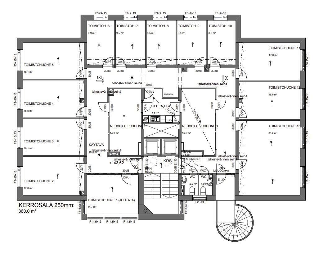
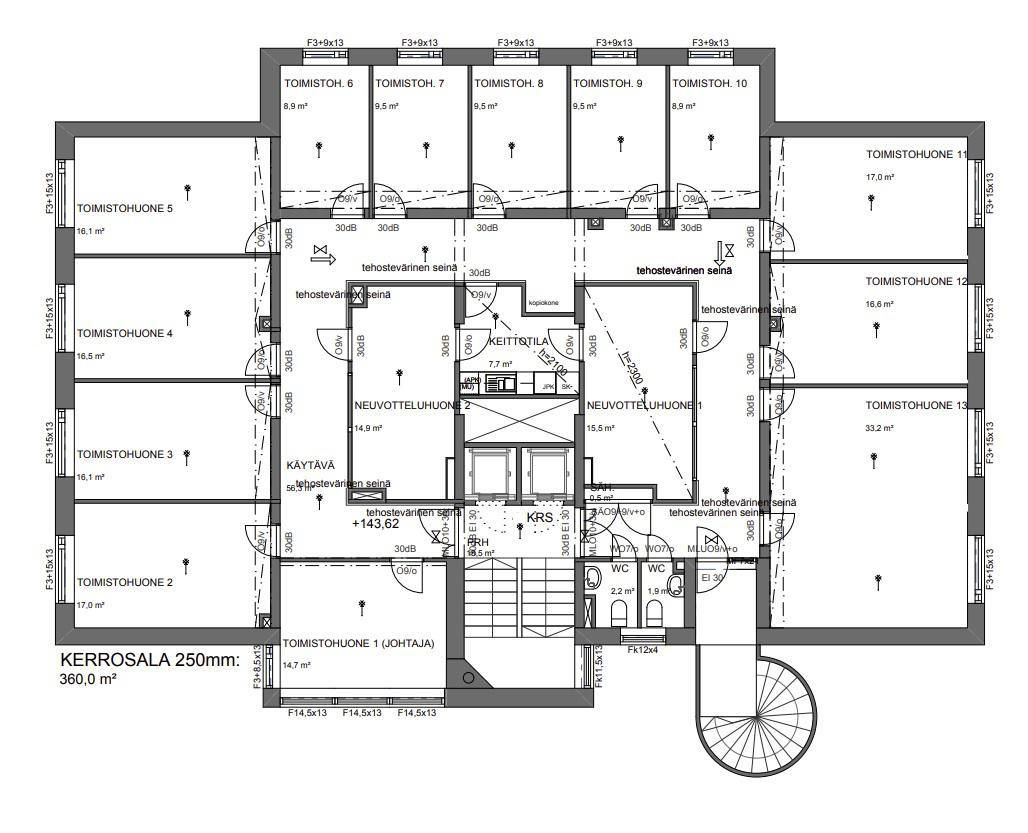
Remontoitua toimistotilaa sairaala Novan vieressä
Sairaalanmäellä Sairaala Novan vieressä vuokrattavana siistiä ja remontoitua toimistotilaa. Kiinteistön osoite on Hoitajantie 4.
Tämä kolmannen kerroksen n. 360 m² tila on selkeä ja toimiva kokonaisuus. Tila voidaan tarvittaessa jakaa kahden käyttäjän kesken.
3. kerroksen tiloissa on 14 toimistohuonetta, kaksi neuvotteluhuonetta, hyvin varusteltu keittiö ja omat wc:t.
Toimistohuoneiden koot vaihtelevat 9-17 m² haarukassa. Tiloissa on aiemmin toiminut terveydenhoitoalan toimija ja huoneissa on hyvä äänieristys.
Kerroksessa on valokuitu. Kiinteistössä on koneellinen ilmanvaihto ja kaksi hissiä.
Samassa kiinteistössä palvelee myös Time Rooms -majoitus, jossa voi tarvittaessa yöpyä.
Kiinteistö ja sijainti
Tilat sijaitsevat Sairaalanmäellä sairaala Novan vieressä Kukkulan alueella.
Alue on hyvien kulkuyhteyksien varrella ja saavutettavissa julkisilla, autolla ja kävellen tai pyöräillen.
Pysäköinti onnistuu viereisessä Jyväs-Parkin parkkitalossa.
Klikkaa tilojen virtuaaliesittelyyn tästä linkistä
Sairaalanmäellä Sairaala Novan vieressä vuokrattavana siistiä ja remontoitua toimistotilaa. Kiinteistön osoite on Hoitajantie 4.
Tämä kolmannen kerroksen n. 360 m² tila on selkeä ja toimiva kokonaisuus. Tila voidaan tarvittaessa jakaa kahden käyttäjän kesken.
3. kerroksen tiloissa on 14 toimistohuonetta, kaksi neuvotteluhuonetta, hyvin varusteltu keittiö ja omat wc:t.
Toimistohuoneiden koot vaihtelevat 9-17 m² haarukassa. Tiloissa on aiemmin toiminut terveydenhoitoalan toimija ja huoneissa on hyvä äänieristys.
Kerroksessa on valokuitu. Kiinteistössä on koneellinen ilmanvaihto ja kaksi hissiä.
Samassa kiinteistössä palvelee myös Time Rooms -majoitus, jossa voi tarvittaessa yöpyä.
Kiinteistö ja sijainti
Tilat sijaitsevat Sairaalanmäellä sairaala Novan vieressä Kukkulan alueella.
Alue on hyvien kulkuyhteyksien varrella ja saavutettavissa julkisilla, autolla ja kävellen tai pyöräillen.
Pysäköinti onnistuu viereisessä Jyväs-Parkin parkkitalossa.
Klikkaa tilojen virtuaaliesittelyyn tästä linkistä
Vapautuu
Kysy
Kerros
3
Liitetiedostot
Ota yhteyttä
LogisTila Oy
Rautpohjankatu 10, 40700 Jyväskylä
Kimmo Oravuo
Näytä puhelinnumero
0452644180
Pyydä lisätietoa
