Vuokrataan toimistotilat - Oulu
Äimäkuja 6, Äimärautio, 90400 Oulu #10729942
Toimisto ja varastotilaa
Osoite
Äimäkuja 6, 90400 Oulu
Tilatyyppi
Toimistotilaa
30 - 150 m2
Kiinteistö
Vapautumassa ja heti vapaana edullisia toimisto- ja varastotiloja
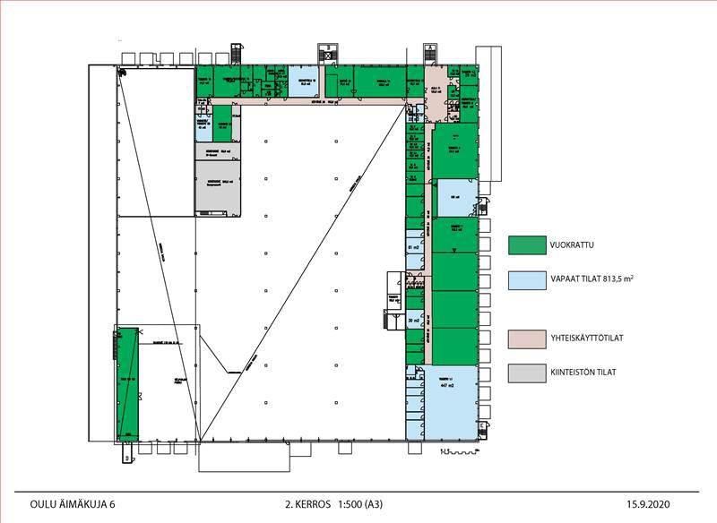
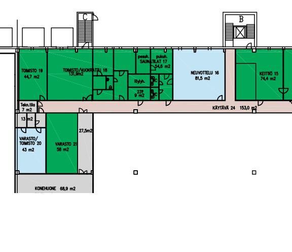
Erikokoisia toimistoja alkaen n. 30m ² aina 447m ² asti rakennuksen toisessa kerroksessa. Voit vuokrata yksittäisiä toimistoja tai useamman toimiston kokonaisuuksia. Edulliset tilat sopivat moneen käyttöön, kuten esimerkiksi urheiluseuran tai yhdistyksen tiloiksi.
Tilat sijaitsevat toisessa kerroksessa ja ovat muokattavissa täysin vuokralaisen tarpeen mukaisiksi esim. liikunta/kamppailu-urheiluun soveltuvaksi. Isoja neuvottelutiloja, ryhmätyötiloja, avokonttoria lasiseinin jne.
Tilakokonaisuuksia:
30m² toimistohuone, yhteiskäytössä olevat sosiaalitilat.
61m² kolmen toimistohuoneen kokonaisuus, yhteiskäytössä olevat sosiaalitilat
129m² toimistohuone avotoimistoksi, välisermeillä/seinillä jaettavaksi tai varastotilaksi. Yhteiskäytössä olevat sosiaalitilat
Julkisivuun on mahdollisuus asentaa näyttävä mainos, joka näkyy hyvin vieressä kulkevalle Limingantielle.
Kiinteistössä hyvä ilmanvaihto, joka on säännöllisesti puhdistettu ja säädetty. Vuokralaisille hyvät palvelut mm. tekninen manageeraus, kiinteistöpäällikkö, yleisten tilojen puhtaanapito, vuokrattujen tilojen kunnossapito sekä kattavat kiinteistöhuoltopalvelut
Kiinteistö ja sijainti
Helppo saavutettavuus sekä sijainti asiakkaille ja työntekijöille. Asfaltoidulla ja aidatulla pihalla on runsaasti pysäköintitilaa
Limingantullissa sekä naapurikiinteistössä on runsaasti lounaspalveluita tarjolla.
Alueelta on hyvät yhteydet keskustaan, moottoritielle ja Poikkimaantien kautta mm. Hiukkavaaran suuralueelle. Oulun satama sijaitsee vain n.1 km päässä halleista. Limingantullin Prisma 2.4 km, Oulun keskusta n. 4 km, Oulun lentokenttä n. 11 km.
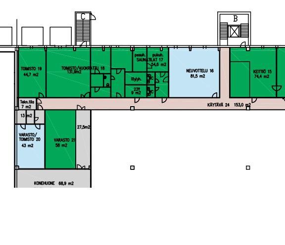
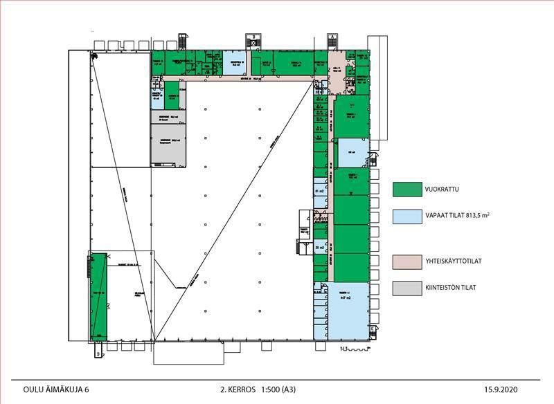
Erikokoisia toimistoja alkaen n. 30m ² aina 447m ² asti rakennuksen toisessa kerroksessa. Voit vuokrata yksittäisiä toimistoja tai useamman toimiston kokonaisuuksia. Edulliset tilat sopivat moneen käyttöön, kuten esimerkiksi urheiluseuran tai yhdistyksen tiloiksi.
Tilat sijaitsevat toisessa kerroksessa ja ovat muokattavissa täysin vuokralaisen tarpeen mukaisiksi esim. liikunta/kamppailu-urheiluun soveltuvaksi. Isoja neuvottelutiloja, ryhmätyötiloja, avokonttoria lasiseinin jne.
Tilakokonaisuuksia:
30m² toimistohuone, yhteiskäytössä olevat sosiaalitilat.
61m² kolmen toimistohuoneen kokonaisuus, yhteiskäytössä olevat sosiaalitilat
129m² toimistohuone avotoimistoksi, välisermeillä/seinillä jaettavaksi tai varastotilaksi. Yhteiskäytössä olevat sosiaalitilat
Julkisivuun on mahdollisuus asentaa näyttävä mainos, joka näkyy hyvin vieressä kulkevalle Limingantielle.
Kiinteistössä hyvä ilmanvaihto, joka on säännöllisesti puhdistettu ja säädetty. Vuokralaisille hyvät palvelut mm. tekninen manageeraus, kiinteistöpäällikkö, yleisten tilojen puhtaanapito, vuokrattujen tilojen kunnossapito sekä kattavat kiinteistöhuoltopalvelut
Kiinteistö ja sijainti
Helppo saavutettavuus sekä sijainti asiakkaille ja työntekijöille. Asfaltoidulla ja aidatulla pihalla on runsaasti pysäköintitilaa
Limingantullissa sekä naapurikiinteistössä on runsaasti lounaspalveluita tarjolla.
Alueelta on hyvät yhteydet keskustaan, moottoritielle ja Poikkimaantien kautta mm. Hiukkavaaran suuralueelle. Oulun satama sijaitsee vain n.1 km päässä halleista. Limingantullin Prisma 2.4 km, Oulun keskusta n. 4 km, Oulun lentokenttä n. 11 km.
Vapautuu
Kysy
Kerros
2
Ota yhteyttä
Logistila Oy
Kiilakiventie 1, 90250 OULU
Sami Karppinen
Näytä puhelinnumero
+358401994722
Pyydä lisätietoa
