Myydään toimistotilat, tuotantotilat, varastotilat, tontti, muut tilat - Oulu
Palosuonkuja 1, 90820 Oulu #10726693
Myydään Holstinmäeltä omalla 5326m²:n tontilla oleva teollisuushalli!
Paikka on erittäin hyvin saatavilla moottoritieltä sekä Haukiputaan tieltä. Tontilla on rakennusoikeutta jäljellä vielä reilut 1000m², joten tämä antaa hyvät mahdollisuudet paikan jatkokehitykseen. Piha-alueella runsaasti tilaa erilaisille kalustoille. Nykyiset hallitilat ovat vuokrattuina, irtisanomisaika 6kk.
Osoite
Palosuonkuja 1, 90820 Oulu
Tilatyyppi
Toimistotilaa
82 m2
Tuotantotilaa
396 m2
Varastotilaa
45 m2
Tontti
5326 m2
Muuta tilaa
8 m2
Yhteensä
531 m2
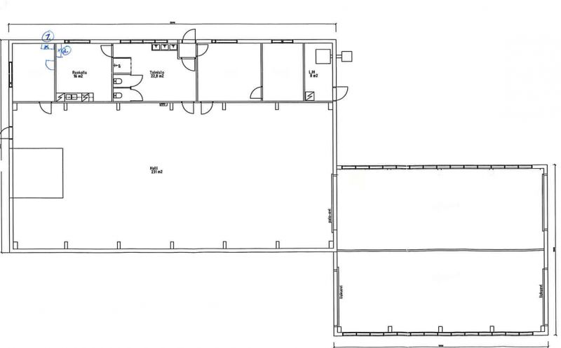
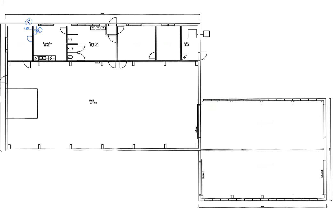
Tilajako
Päähalli 231m² ja 2 kpl halleja n.82m²/kpl
Pohjapiirros
Myyntihinta
Velaton myyntihinta 349.000€
Kiinteistö
Oma tontti 5326m², rakennusoikeutta jäljellä reilut 1000m².
Pysäköinti
Piha-alueella
Kulkuyhteydet
Moottoritieltä Kellonväylää vajaa kilometri ja oikealle Holstinmaantietä reilu kilometri ja kohde vasemmalla.
Vuokralaisia
3kpl
Muuta
Hallien vapaa korkeus 4800, nosto-ovet 4200, päähallissa siltanosturi 2000kg ja toimisto-osiossa myös sauna.
Lämmitysmuotona varaava sähkö, säteilylämmittimet sekä vesikiertopatterit.
Omistajalle jäävät hoitokulut n. 6300€/vuosi.
Lämmitysmuotona varaava sähkö, säteilylämmittimet sekä vesikiertopatterit.
Omistajalle jäävät hoitokulut n. 6300€/vuosi.
Vapautuu
Vuokrattu, irtisanomisaika 6kk
Rakennusvuosi
1985
Siltanosturi
Ota yhteyttä
Pohjois-Suomen Toimitilat Oy
Sepänkatu 20, 90100 Oulu
Pekka Valkola
Näytä puhelinnumero
044 311 0555
Pyydä lisätietoa
