Myydään toimistotilat, varastotilat, autotalli/-hallitilat - Lieto
Teollisuuskuja 13, 21420 Lieto #10726257
Halli + pressuhalli *Oma tontti * Rakennusoikeutta jäljellä *Näkyvä sijainti
Osoite
Teollisuuskuja 13, 21420 Lieto
Tilatyyppi
Toimistotilaa
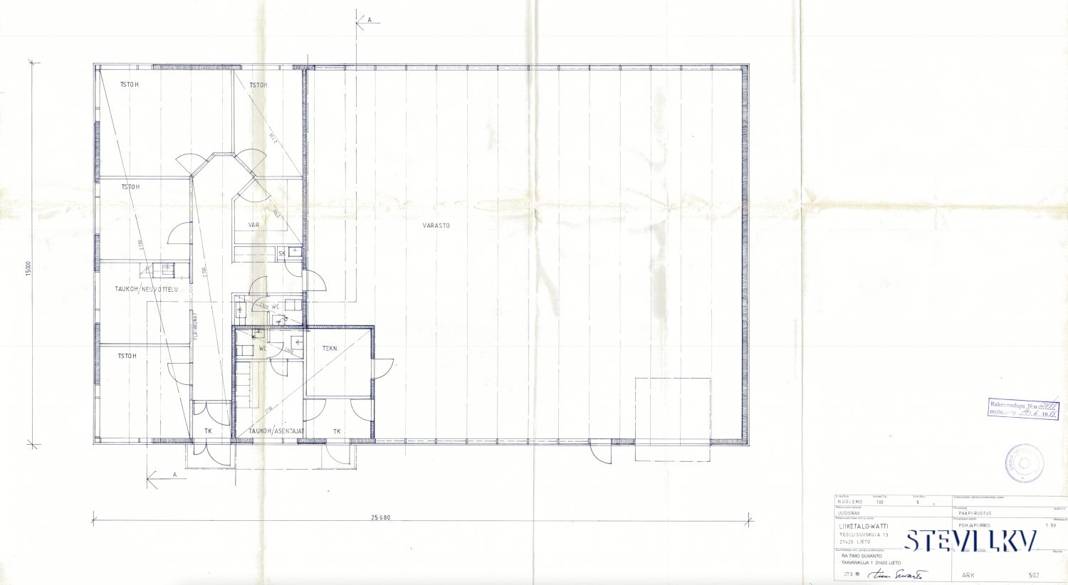
150 m2
Varastotilaa
250 m2
Autotalli/-hallitilaa
235 m2
Yhteensä
635 m2
Tilajako
Jaettavissa
Vuokra
2800€/kk
Myyntihinta
370 000€
Kiinteistö
Tuotanto- liike tai varastotilaa. Ja hyvin piha-aluetta
Kiinteistö/hallit on mahdollista ostaa 370 000€ tai vuokrata 2800€/kk + kulut.
Näkyvä sijainti Hämeentien läheisyydessä ja hyvä kulkuyhteys.
Varasto-/toimistorakennus (1989): Hallia noin 235m2 + toimistoa noin 150m2.
Hallin puolelle on pakettiautolla mentävä nosto-ovi.
Rakennukseen on useampi käyntiovi.
Sähkölämmitys pattereilla ja kaksi ilmalämpöpumppua.
Lisäksi pressuhalli on noin 250m2.
Kokonaisuudessa on rakennusten lisäksi kaksi omaa tonttia; tonttien koot 1771m2 ja 1579m2.
Rakennusoikeutta on vielä käyttämättä eli mahdollisuus rakentaa lisää toimitilaa.
Tehokkuus luku e=0,3.
Pääsulakkeet ovat nyt 3x35A (suurennattavissa 3 x100A).
Heti vapaana (kerro koska tila tarve alkaa).
Esittelyt sopimuksen mukaan. Ole yhteydessä, mikäli olet kiinnostunut.
Toimitila terveisin,
Stefan Virtanen
Kiinteistönvälittäjä | LKV | LVV | KTM | Yrittäjä
stefan@stevilkv.com | 0400 999 900
www.stevilkv.com
Kiinteistö/hallit on mahdollista ostaa 370 000€ tai vuokrata 2800€/kk + kulut.
Näkyvä sijainti Hämeentien läheisyydessä ja hyvä kulkuyhteys.
Varasto-/toimistorakennus (1989): Hallia noin 235m2 + toimistoa noin 150m2.
Hallin puolelle on pakettiautolla mentävä nosto-ovi.
Rakennukseen on useampi käyntiovi.
Sähkölämmitys pattereilla ja kaksi ilmalämpöpumppua.
Lisäksi pressuhalli on noin 250m2.
Kokonaisuudessa on rakennusten lisäksi kaksi omaa tonttia; tonttien koot 1771m2 ja 1579m2.
Rakennusoikeutta on vielä käyttämättä eli mahdollisuus rakentaa lisää toimitilaa.
Tehokkuus luku e=0,3.
Pääsulakkeet ovat nyt 3x35A (suurennattavissa 3 x100A).
Heti vapaana (kerro koska tila tarve alkaa).
Esittelyt sopimuksen mukaan. Ole yhteydessä, mikäli olet kiinnostunut.
Toimitila terveisin,
Stefan Virtanen
Kiinteistönvälittäjä | LKV | LVV | KTM | Yrittäjä
stefan@stevilkv.com | 0400 999 900
www.stevilkv.com
Sijainti
Hyvä sijainti ison tien vieressä
Ympäristö
Teollisuusaluetta
Pysäköinti
Pihalla tilaa ja iso tontti
Palvelut
Alueen palvelut
Muuta
Tontilla reilusti rakennusoikeutta (e=0,3)
Vapautuu
Heti
Kerros
1 / 1
Katutasossa
Näkyvällä paikalla
Jaettavissa
Ota yhteyttä
Stevi LKV | Kiinteistönvälitys & Vuokravälitys
Stefan Virtanen
LKV, KTM, Yrittäjä
Näytä puhelinnumero
0400 999 900
stefan@stevilkv.com
Reipasta palvelua ja hyvää konsultointia.
Soita tai laita spostia ja kerro tila tarpeesi; tämä on ilmainen palvelu tilaa etsivälle (vuokranantaja maksaa palkkion).
Toimitilojen myynti & vuokraus.
Pyydä lisätietoa
