Vuokrataan toimistotilat - Helsinki
Elimäenkatu 9, Vallila, 00510 Helsinki #10723576
Toimistotilaa Vallilan Kravattitehtaalla.
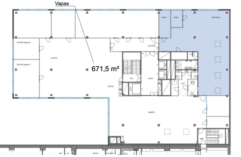
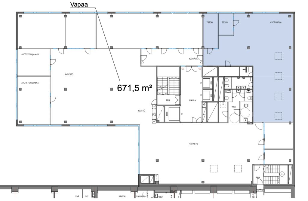
Tämä 671,5m2 tila sijaitsee kiinteistön 7. kerroksessa. Toimistossa on avotilaa, huoneita sekä omat keittiö- ja wc-tilat. Osaa tilasta voidaan käyttää varastointiin. Kuvat ovat yleiskuvia kiinteistön tiloista.
Elimäenkatu 9-15 eli Kravattitehdas sijaitsee keskellä kehittyvää Helsinkiä, Vallilassa. Kiinteistö sijaitsee hyvien liikenneyhteyksien varrella, Triplan kauppakeskukseen ja Pasilan juna-asemalle on reilun kilometrin kävelymatka. Kravattitehtaan vanhimmat osat rakennettiin vuonna 1926. Kiinteistön tiloja modernisoidaan parhaillaan vanhaa historiaa kunnioittaen. Vuokralaiset pääsevät vaikuttamaan pintamateriaaleihin, pohjaratkaisuun ja valitsemaan itselleen sopivat brändivärit. Rakennuksessa on lastauslaiturit sisäpihalla ja tavarahisseillä pääsee suoraan toimitiloihin.
Taloon on avattu Fazerin uusi lounasravintola- ja kahvilakonsepti Ravintola Kravattitehdas. Lisäksi talossa on erikokoisia kokoustiloja ja auditorio. Kiinteistöön on tulossa sähköauton latauspiste ja vuokrattava sähköauto sekä lainapolkupyöriä vuokralaisten käyttöön.
Kysy lisää numerosta 044 723 4700 tai info@bref.fi. Palvelumme on tilanhakijoille ilmainen.
Hissi
Bureau Real Estate Finland Oy
Lars Sonckin kaari 16, 02600 Espoo
Näytä puhelinnumero
0447234700
Bureau Real Estate Finland Oy
https://www.bref.fi