Vuokrataan toimistotilat - Espoo
Miestentie 7, Otaniemi, 02150 Espoo #10719785
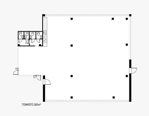
Pääkonttoritasoista 5. kerroksen modernia toimistotilaa Keilaniemessä, pohjaratkaisu toteutetaan vuokralaisen tarpeiden ja toiveiden mukaiseksi. Talossa vastaanotto, neuvottelukeskus, lounasravintola sekä autohalli talo on yhteydessä Swing 2 taloon jossa lisää palveluja sekä hyvätasoinen business-hotelli. Ota yhteyttä ja sovi esittely, palvelumme on tilanhakijoille ilmainen. Puh: 09 7745 100.
Osoite
Miestentie 7, 02150 Espoo
Tilatyyppi
Toimistotilaa
262 m2
Kiinteistö
Katso kiinteistöesite liitetiedostosta.
Sijainti
Kohde sijaitsee hyvien liikenneyhteyksien päässä Espoon Keilaniemessä Miestentiellä.
Ympäristö
Keilaniemi
Pysäköinti
Pihalla ja talon kellarissa.
Kulkuyhteydet
Metro, bussit.
Muuta
Kiinteistössä on kaiken kattavat Business Parkin oheispalvelut.
Vapautuu
Heti
Kerros
5 / 8
Energiatehokkuusluokka
Ei lain edellyttämää energiatodistusta
Näkyvällä paikalla
Hissi
Liitetiedostot
Ota yhteyttä
Senaatin Notariaatti Oy LKV
Lämmittäjänkatu 4 A
FIN-00880 Helsinki
Tel:
Näytä puhelinnumero
+358 9 7745 100
Pyydä lisätietoa
