Vuokrataan toimistotilat - Helsinki
Lautatarhankatu 10, Kalasatama, 00580 Helsinki #10715498
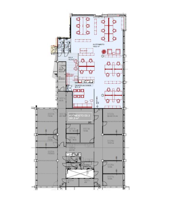
Vuokrataan kaikki nykyajan vaatimukset täyttävää muuntojoustavaa toimistotilaa kehittyvällä Kalasataman alueella. Tämä täysin remontoitu 2019 tila sijaitsee 3. kerroksessa, joka on pääosin avotilaa. Hieno aula ja keittiö, toimivat neukkarit (3x2-4 hlöä), (1x7-8 hlöä), (1x14 hlöä) ja (1x15 hlöä).
Ikkunoista näkymät Suvilahteen ja kiinteistön sisäpihalle. Kiinteistössä on aulapalvelumahdollisuus. Ota yhteyttä ja sovi esittely, palvelumme on tilanhakijoille ilmainen.
Osoite
Lautatarhankatu 10, 00580 Helsinki
Tilatyyppi
Toimistotilaa
799 m2
Pohjapiirros
Kiinteistö
TROOLI- moderni toimistokiinteistö, joka sijaitsee mainiolla paikalla Kalasatamassa. Kiinteistössä on suuri auditorio, kuntosali ja kulku sisäkautta lounasravintolaan, jossa toimii myös catering-palvelu.
Sijainti
Kalasatama/Sörnäinen
Pysäköinti
Kiinteistössä on parkkihalli sekä sisäpihan autopaikkoja.
Kulkuyhteydet
Kalasataman metroasema sekä linja-autopysäkki ovat aivan kiinteistön vieressä.
Vapautuu
Heti
Kerros
3 / 6
Energiatehokkuusluokka
F2007
Näkyvällä paikalla
Hissi
Liitetiedostot
Ota yhteyttä
Senaatin Notariaatti Oy LKV
Lämmittäjänkatu 4 A
FIN-00880 Helsinki
Tel:
Näytä puhelinnumero
+358 9 7745 100
Pyydä lisätietoa
