Vuokrataan toimistotilat - Helsinki
Porkkalankatu 5, Ruoholahti, 00180 Helsinki #10714429
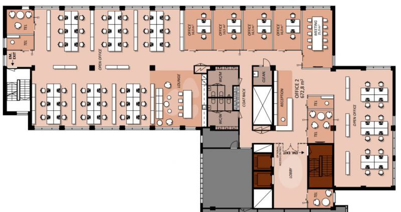
Vuokrataan tehokas 5. kerroksen avo/monitilatoimisto keskeiseltä paikalta Ruoholahdesta. Tilat ovat hyvässä, muuttovalmiissa kunnossa ja muokataan tarvittaessa vuokralaisen käyttöön täysin sopivaksi. Avotilaratkaisu mahdollistaa noin 60-70 työpisteen viihtyisän toimiston. Talossa kattavat oheispalvelut: - vastaanotto,- lounasravintola,- neuvottelutilat,- kuntosali,- pyöräparkki,- pukuhuoneet + suihkut,- parkkihalli,- vieraspysäköinti. Avaa kiinteistöesite liitetiedostosta ja ota yhteyttä esittelyn merkeissä, palvelumme on tilanhakijoille ilmainen. Puh: 09 7745 100.
Näkyvällä paikalla
Hissi
Liitetiedostot
Senaatin Notariaatti Oy LKV
Lämmittäjänkatu 4 A
FIN-00880 Helsinki
Tel:
Näytä puhelinnumero
+358 9 7745 100
