Vuokrataan toimistotilat - Helsinki
Vattuniemenranta 2, Lauttasaari, 00210 Helsinki #10713074
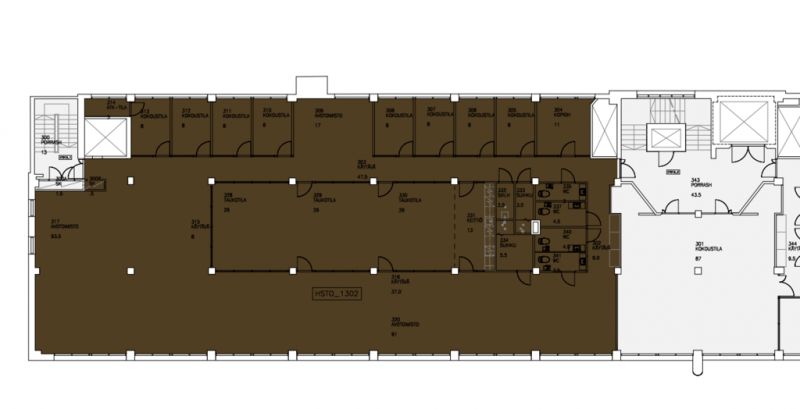
Toimistotilaa Lauttasaaressa.
Tämä 513m2 toimisto sijaitsee kiinteistön 3. kerroksessa. Toimistossa on työ-/neuvotteluhuoneita, avotilaa sekä omat keittiö- ja wc-tilat.
Vattuniemenranta 2 on viihtyisä toimistokiinteistö Helsingin Lauttasaaressa. Sen toimitilat ovat muokattavissa vuokralaisen tarpeiden mukaan. Osasta kiinteistön tiloista on myös merinäköalat. Lisäksi se sijaitsee helposti saavutettavissa olevalla paikalla ja siitä on lyhyt matka Lauttasaaren alueen palveluiden ääreen.
Kysy lisää numerosta 044 723 4700 tai info@bref.fi. Palvelumme on tilanhakijoille ilmainen.
Hissi
Bureau Real Estate Finland Oy
Lars Sonckin kaari 16, 02600 Espoo
Näytä puhelinnumero
0447234700
Bureau Real Estate Finland Oy
https://www.bref.fi