Vuokrataan toimistotilat - Jyväskylä
Kivääritehtaankatu 6, Tourula, 40100 Jyväskylä #10702718
Valoisaa toimistotilaa Tourulan Kivääritehtaalla perinteikkäässä miljöössä.
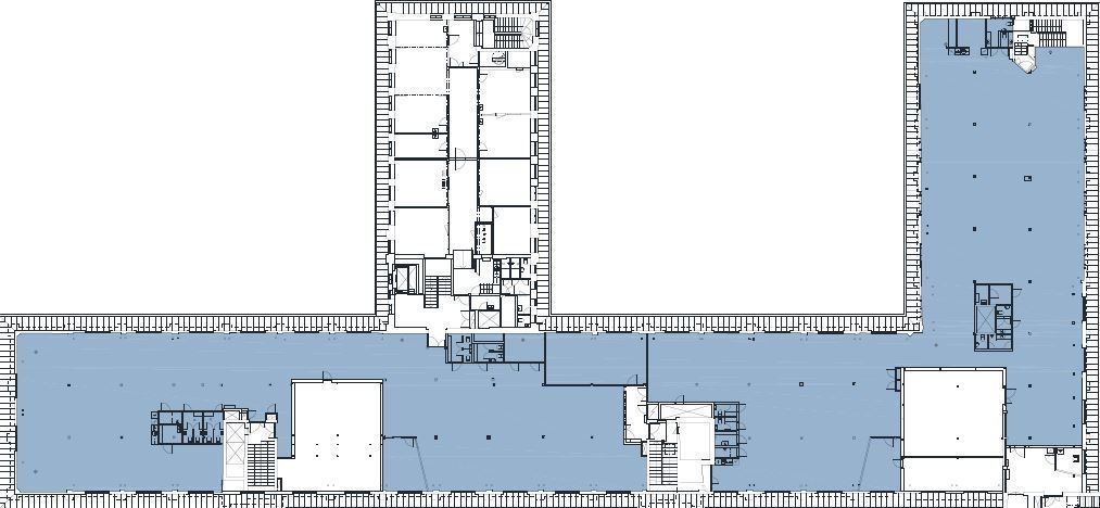
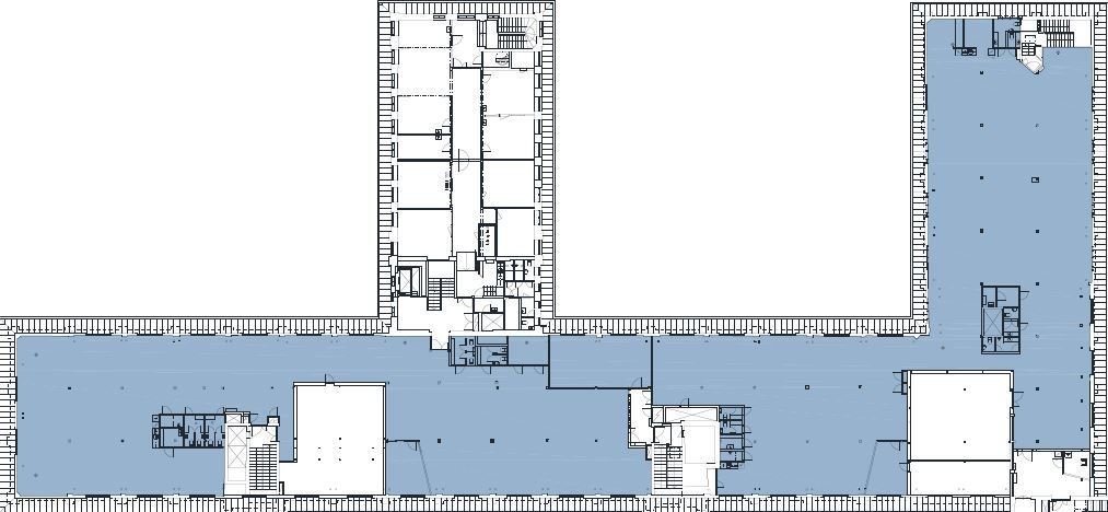
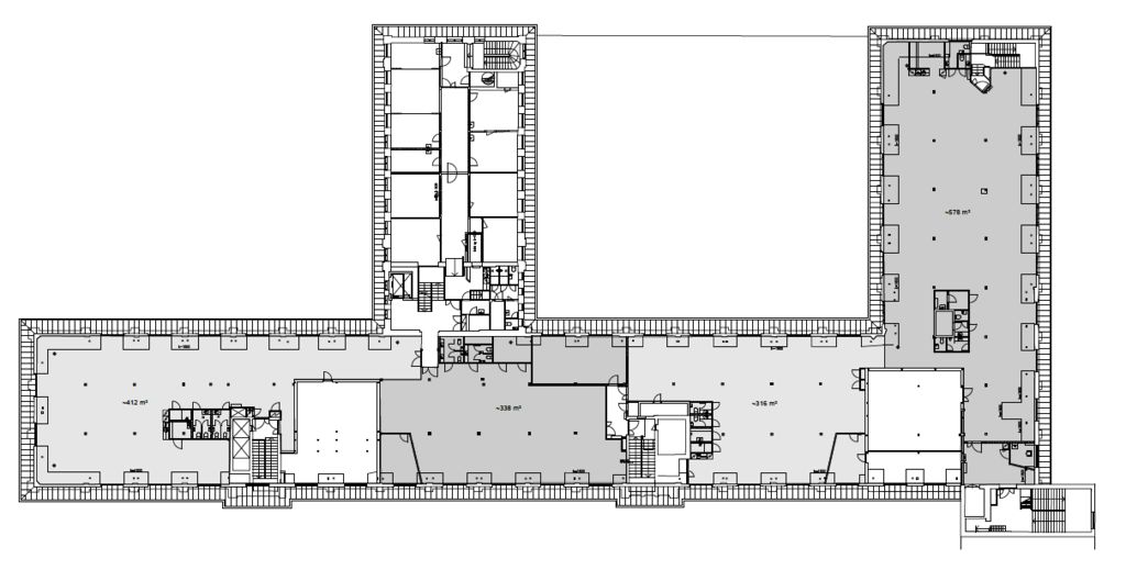
Tämä 1475 m² toimisto sijaitsee kiinteistön 4. kerroksessa ja koostuu erillisistä huoneista sekä avotilasta. Tilassa on vaihteleva huonekorkeus sen harjakaton ja kattoikkunoiden takia. Tila on mahdollista jakaa 412 m², 331 m², 316 m² ja 578 m² kokoisiin osiin.
Kivääritehtaankatu 6 on entinen kivääritehdas, joka oli toiminnassa 1990-luvun lopulle asti. Vuonna 1927 valmistunut Valtion Kivääritehdas on osa suomalaista historiaa. Alun perin puolustuslaitoksemme tarpeisiin perustettu tehdas on modernisoitu vastaamaan nykyajan käyttäjän toiveita aina toimistotiloista tuotannon vaativiin tarpeisiin. Alueen arvokkuuden säilyttämiseksi on kulttuurihistoriallisesti merkittävät rakennukset määrätty suojelukohteeksi.
Kysy lisää numerosta 044 723 4700 tai info@bref.fi. Palvelumme on tilanhakijoille ilmainen.
Bureau Real Estate Finland Oy
Lars Sonckin kaari 16, 02600 Espoo
Näytä puhelinnumero
0447234700
Bureau Real Estate Finland Oy
https://www.bref.fi