Vuokrataan toimistotilat, tuotantotilat, varastotilat, autotalli/-hallitilat - Helsinki
Hankasuontie 9, Konala, 00390 Helsinki #10701241
Toimitilaa vilkkaalta Hankasuontien teollisuus- ja yritysalueelta. Vapaana 1. kerroksen toimivia tilayhdistelmiä 505-1371 m² sekä 2. kerroksen tilat 279 m² ja 495 m². Kiinteistössä on 1000 m²:n kokoinen parkkihalli.
Osoite
Hankasuontie 9, 00390 Helsinki
Tilatyyppi
Toimistotilaa
105 - 988 m2
Tuotantotilaa
400 - 1157 m2
Varastotilaa
400 - 1157 m2
Autotalli/-hallitilaa
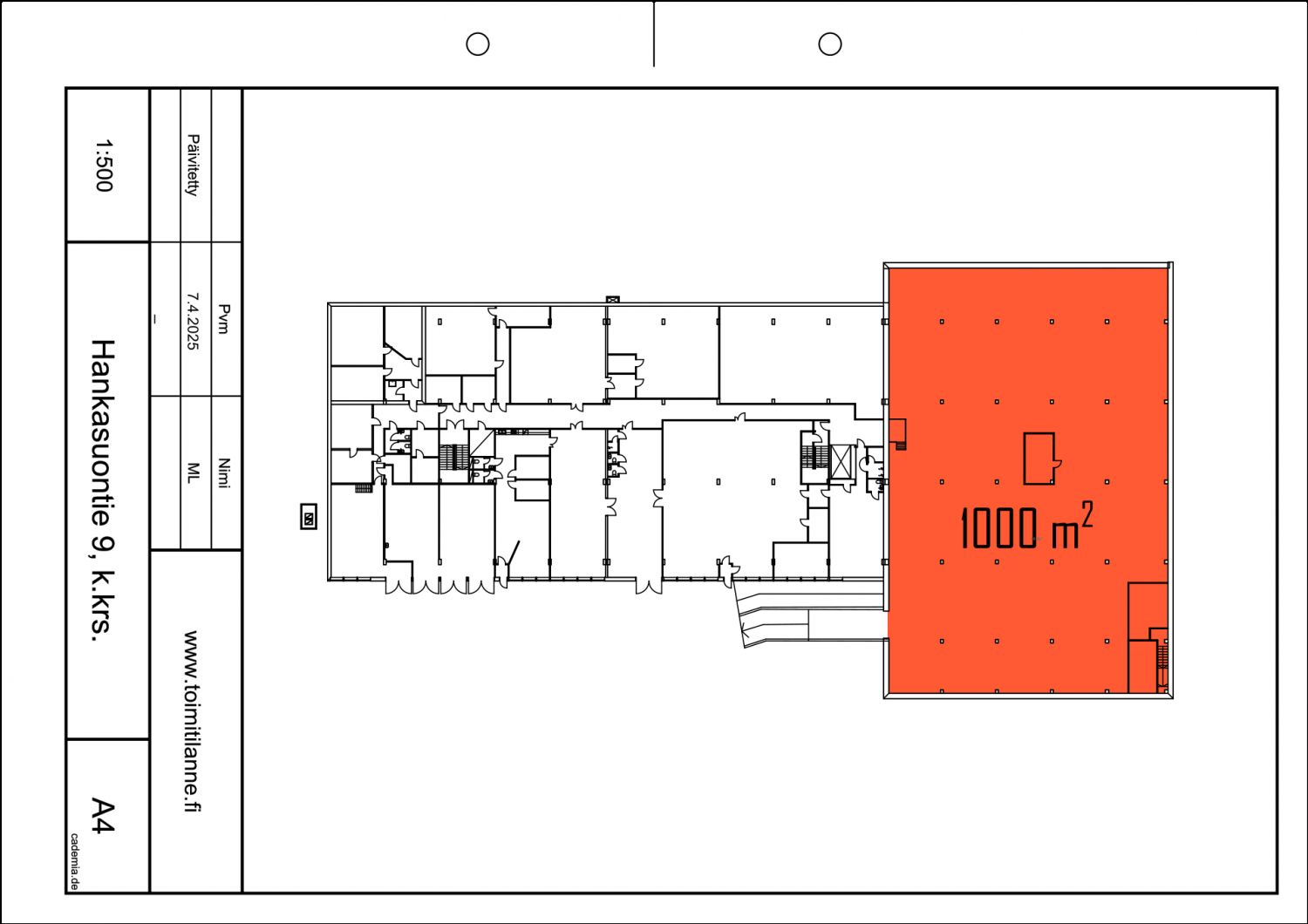
1000 m2
Yhteensä
1905 - 4302 m2
Tilajako
Jaettavissa
1. krs, erilaisia toimitilayhdistelmiä:
Toimisto- ja tuotanto/varastotila 505 m²,
Toimisto- ja tuotanto/varastotila 866 m²
Toimisto- ja tuotanto/varastotila 505+866=1371 m²
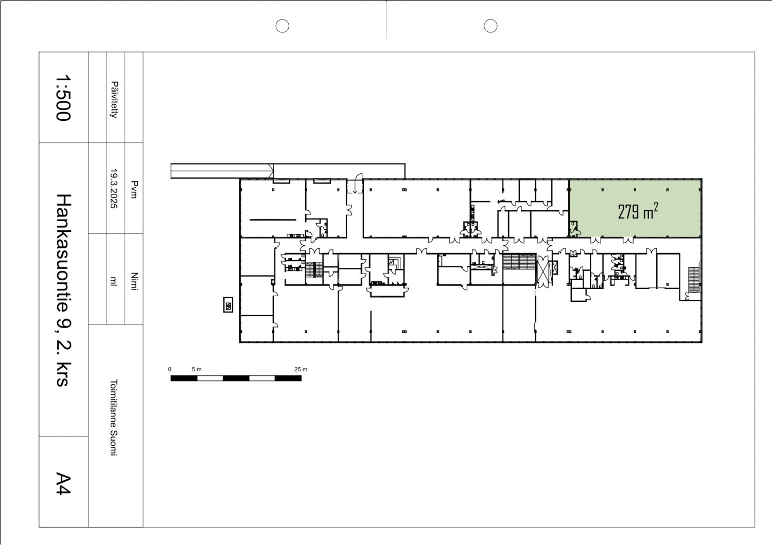
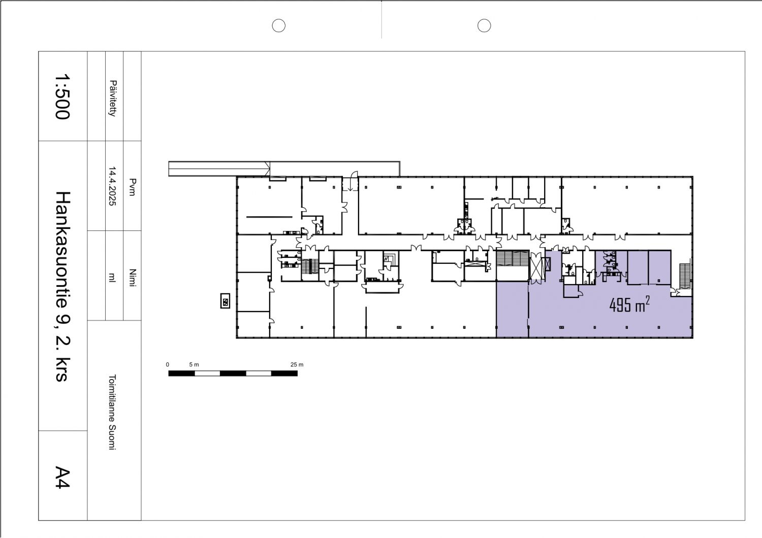
2. krs (ajoramppi, tavarahissi):
Tuotanto- tai varastotila 279 m²
Toimistotila 495 m²
Kellarikerros: Parkkihalli 1000 m²
Pohjapiirros
Kiinteistö
Kolmikerroksisessa toimitilakiinteistössä Helsingin Konalassa on vuokrattavana tuotanto- ja varastotiloja sekä toimistotilaa. Kiinteistössä on lastauslaituri ja tavarahissi (3,5 tn).
Sijainti
Sijainti vilkkaalla Hankasuontien teollisuus- ja yritysalueella antaa yrityksille mahdollisuuden toimia hyvien kulkuyhteyksien äärellä Vihdintien tuntumassa, Kehä 1:n lähellä.
Vuokralaisia
Rakennuksessa toimii tällä hetkellä yrityksiä mm. maahantuonnin, tukkukaupan, kokoonpanon ja B2B-toiminnan parista.
Lisätietoa saneerauksista
Kiinteistöön on toteutettu kattava peruskorjaus vuosien 2009 ja 2010 aikana. Remontissa uusittiin rakenteiden ja pintojen ohella myös tekniikka. Tämä tarjoaa muuntojoustavuutta, joka tekee kiinteistöstä erilaisille yrityksille houkuttelevan.
Vapautuu
Heti
Saneerausvuosi
2010
Näkyvällä paikalla
Jaettavissa
Lastauslaituri
Liitetiedostot
Ota yhteyttä
Toimitilanne Suomi
Tatu Hyvärinen
p.
Näytä puhelinnumero
040 145 7845
Siilitie 8a A
00800 HELSINKI
Pyydä lisätietoa
