Myydään toimistotilat, liiketilat, varastotilat, työtilat - Porvoo
Lundinkatu 18, 06100 Porvoo #10694085
Upea ja valoisa liiketila Porvoon keskustassa! Velaton myyntihinta: 183'000 €
Osoite
Lundinkatu 18, 06100 Porvoo
Tilatyyppi
Toimistotilaa
154 m2
Liiketilaa
154 m2
Varastotilaa
61,5 m2
Työtilaa
40 - 92,5 m2
Yhteensä
154 m2
Virtuaaliesittely
Myyntihinta
183'000 € (velaton)
Muuta
Nyt on myytävänä täysin remontoitu, siisti ja tyylikäs liiketila hyvässä taloyhtiössä. Tila on näkyvällä paikalla oleva kulmahuoneisto ja sijaitsee vain korttelin päässä Porvoon torista. Tässä on hyvä kaupallinen sijainti nyt ja tulevaisuudessa!
Tila myydään vuokrattuna! Huoneisto on jaettu kahdelle eri vuokralaiselle.
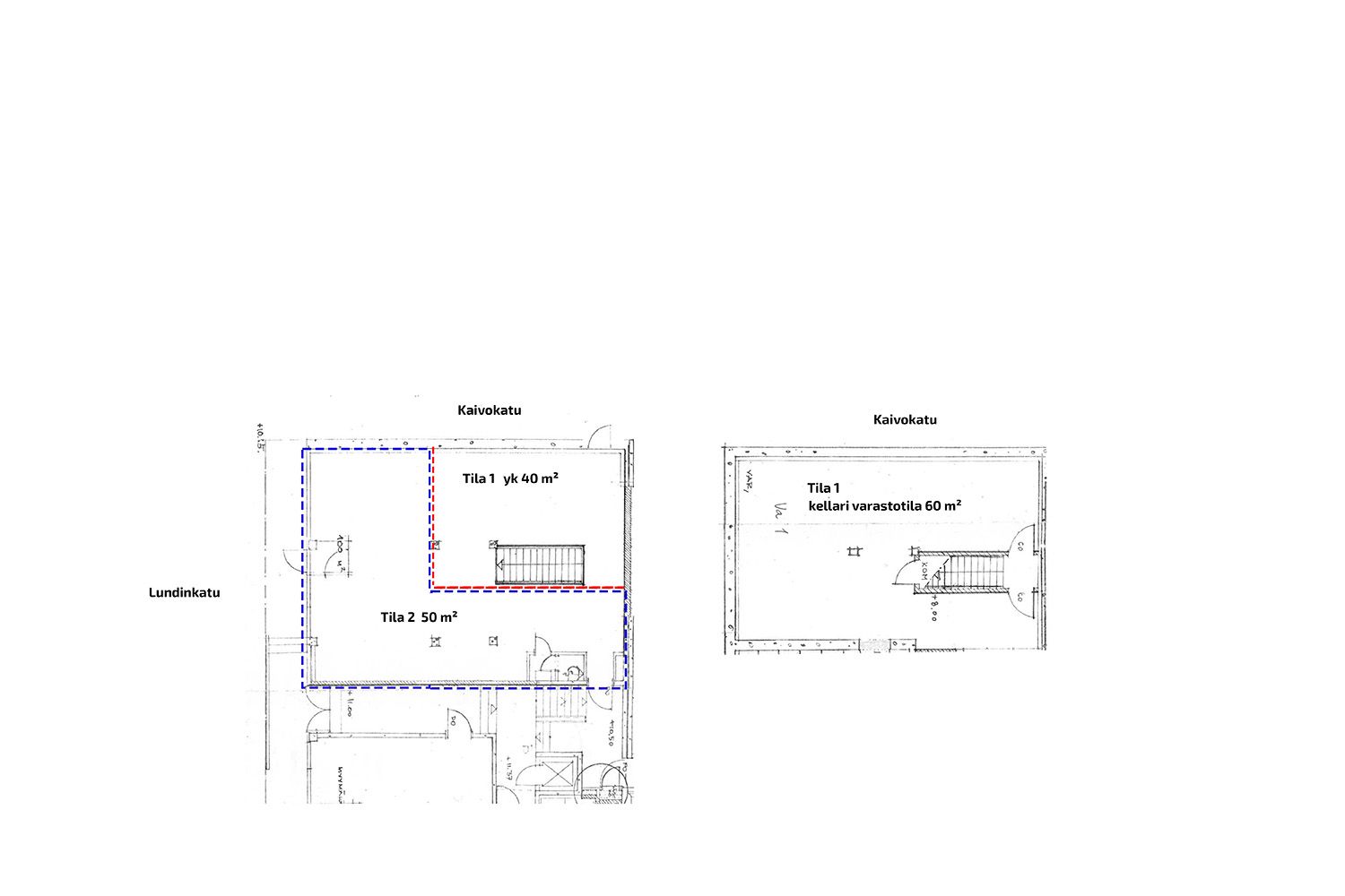
Varsinaiset liiketilat sekä niiden ohessa oleva keittiö ovat pinta-alaltaan noin 92,5 m². Ne sijaitsevat rakennuksen katutasossa. Kellarissa on lisäksi wc- ja varastotiloja yhteensä noin 61,5 m². Liiketilassa on suuret ikkunat kahteen suuntaan (Lundinkadun ja kaivokadun suuntaan), jotka päästävät hyvin luonnonvaloa huoneistoon. Tila on pääosin avointa tilaa, mutta on helppo jakaa pienempiin osiin.
Huoneistoon on kadulta kaksi sisäänkäyntiä, joissa molemmissa on tuulikaappi.
Todella hyvällä sijainnilla monipuolinen liiketila!
Kohdetiedot
Sijainti
Katuosoite: Lundinkatu 18, 06100 Porvoo
Kaupunginosa: Keskusta
Ympäristö: Liikkeitä, asuinhuoneistoja, kaikki keskustan palvelut, kaupunginpuisto
Rakennus/huoneisto
Pinta-alat: 154 m²
Kiinteistötyyppi: Kerrostalo
Rakennusvuosi: 1969
Huoneistoselitelmä: Liiketila + varasto ja sosiaalitilat
Hissi: Ei
Kerros: Katutaso + kellari
Kunto, varusteet ja palvelut: Tilat remontoitu. Keittiö, kaksi wc, kellarivarasto, ilmalämpöpumppuja, vesipisteitä,
Pysäköinti: Kadulla
Energiatodistus: E
Vapautuminen: Myydään vuokrattuna
Myyntihinta ja kulut
Myyntihinta: 169’037,82 €
Velkaosuus: 13’962,18
Velaton myyntihinta: 183’000 €
Hoitovastike: 720 €/kk
Vesimaksu: Taloyhtiön taksojen mukaan
Sähkömaksu: Mittauksen mukaan
Lämmitys: Sisältyy vastikkeeseen
Tila myydään vuokrattuna! Huoneisto on jaettu kahdelle eri vuokralaiselle.
Varsinaiset liiketilat sekä niiden ohessa oleva keittiö ovat pinta-alaltaan noin 92,5 m². Ne sijaitsevat rakennuksen katutasossa. Kellarissa on lisäksi wc- ja varastotiloja yhteensä noin 61,5 m². Liiketilassa on suuret ikkunat kahteen suuntaan (Lundinkadun ja kaivokadun suuntaan), jotka päästävät hyvin luonnonvaloa huoneistoon. Tila on pääosin avointa tilaa, mutta on helppo jakaa pienempiin osiin.
Huoneistoon on kadulta kaksi sisäänkäyntiä, joissa molemmissa on tuulikaappi.
Todella hyvällä sijainnilla monipuolinen liiketila!
Kohdetiedot
Sijainti
Katuosoite: Lundinkatu 18, 06100 Porvoo
Kaupunginosa: Keskusta
Ympäristö: Liikkeitä, asuinhuoneistoja, kaikki keskustan palvelut, kaupunginpuisto
Rakennus/huoneisto
Pinta-alat: 154 m²
Kiinteistötyyppi: Kerrostalo
Rakennusvuosi: 1969
Huoneistoselitelmä: Liiketila + varasto ja sosiaalitilat
Hissi: Ei
Kerros: Katutaso + kellari
Kunto, varusteet ja palvelut: Tilat remontoitu. Keittiö, kaksi wc, kellarivarasto, ilmalämpöpumppuja, vesipisteitä,
Pysäköinti: Kadulla
Energiatodistus: E
Vapautuminen: Myydään vuokrattuna
Myyntihinta ja kulut
Myyntihinta: 169’037,82 €
Velkaosuus: 13’962,18
Velaton myyntihinta: 183’000 €
Hoitovastike: 720 €/kk
Vesimaksu: Taloyhtiön taksojen mukaan
Sähkömaksu: Mittauksen mukaan
Lämmitys: Sisältyy vastikkeeseen
Vapautuu
Vuokrattu
Rakennusvuosi
1969
Kerros
1 / 4
Energiatehokkuusluokka
E
Katutasossa
Näkyvällä paikalla
Ota yhteyttä
Tilat.fi
KTM, LKV Antti Soivio
Näytä puhelinnumero
0400 446 553
OTM, LKV Riikka Tuominen
Näytä puhelinnumero
0400 551 790
KTM, LKV Maria-Sofia Puhakka
Näytä puhelinnumero
0400-150330
MBA, LKV Susanne Wallenius
Näytä puhelinnumero
0400-128877
LKV Tilat.fi Oy toimitilojen välitykseen erikoistunut yritys.
http://www.tilat.fiPyydä lisätietoa
