Vuokrataan varastotilat, työtilat, autotalli/-hallitilat - Porvoo
Urakoitsijantie 15 A 4, 06450 Porvoo #10689670
Porvoon Ölstensissä vuokrattavana hyvä hallitila! Vuokra 1’500 €/kk + alv
Osoite
Urakoitsijantie 15 A 4, 06450 Porvoo
Tilatyyppi
Varastotilaa
150 m2
Työtilaa
150 m2
Autotalli/-hallitilaa
150 m2
Yhteensä
150 m2
Virtuaaliesittely
Vuokra
1’500 €/kk + alv
Vuokraan sisältyy lämpö
Muuta
Porvoon Kruunun yrityspuistossa Ölstensin teollisuusalueella on nyt vuokrattavana hyväkuntoinen ja monipuolinen hallilohko sosiaalitiloineen.
Ei sovellu autokorjaamoksi eikä -pesulaksi!
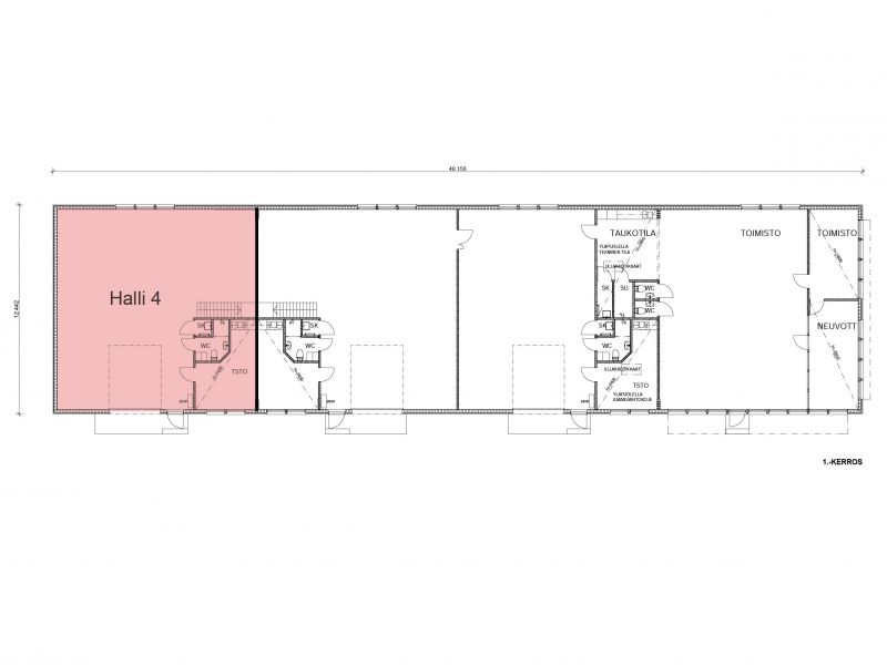
Kaikkiaan noin 150 m²:n hallirakennuksen päätytilassa (halli 4) on nosto-ovi (L 3 m x K 4,5 m), erillinen käyntiovi ja lattiakaivo. Ison hallin lisäksi tiloissa on suihku ja wc, erillinen siivouskomero sekä toimistohuone, jonka yhteydessä on minikeittiö. Sekä toimistossa että isossa hallissa on ikkunat. Vapaata korkeutta hallissa on noin viisi metriä.
Pihassa on hyvin pysäköintitilaa ja tilan vieressä oma aidattu alue, jonka vuokralainen saa halutessaan vuokrata lisähintaan 200 €/kk.
Tila vuokrataan vain arvonlisäverovelvolliseen yrityskäyttöön.
Rakennus sijaitsee aidatulla, asfaltoidulla alueella. Yritysalueella on useampi tallentava valvontakamera sekä GSM-ohjatut portit.
Kruunun alueella on kierrätettävien materiaalien keräyspisteet paperille, pahville sekä energia-, puu- että metallijätteelle.
Alueella myös isompia hallitiloja vuokrattavana – kysy tästä lisää!
Kohdetiedot
Sijainti
Katuosoite: Urakoitsijantie 15 A 4, 06450 Porvoo
Kaupunginosa: Ölstens
Ympäristö: Teollisuusalue
Rakennus/huoneisto
Pinta-ala: Noin 150 m²
Rakennustyyppi: Teollisuushalli
Rakennusvuosi: 2006
Huoneistoselitelmä: Halli, varastotila
Energiatodistus: Laki ei edellytä todistusta
Kunto, varusteet ja palvelut: Hyvä kunto, hallitila, erillinen toimistotila, minikeittiö, parvi, wc, suihku, siivouskomero
Lämmitys: Maalämpö
Vapautuu: Heti vapaa
Pysäköinti: Pihassa
Vuokrahinta ja kulut
Kuukausivuokra: 1’500 €/kk + alv
Vesimaksu: Kulutuksen mukaan
Sähkö: Mittauksen mukaan
Lämmitys: Sisältyy vuokraan
Aidattu pihatila: 200 €/kk
Muuta: Minimisopimuskausi 12 kk, vakuus 3 kk:n vuokraa vastaava summa, luottotietojen oltava kunnossa
Ei sovellu autokorjaamoksi eikä -pesulaksi!
Kaikkiaan noin 150 m²:n hallirakennuksen päätytilassa (halli 4) on nosto-ovi (L 3 m x K 4,5 m), erillinen käyntiovi ja lattiakaivo. Ison hallin lisäksi tiloissa on suihku ja wc, erillinen siivouskomero sekä toimistohuone, jonka yhteydessä on minikeittiö. Sekä toimistossa että isossa hallissa on ikkunat. Vapaata korkeutta hallissa on noin viisi metriä.
Pihassa on hyvin pysäköintitilaa ja tilan vieressä oma aidattu alue, jonka vuokralainen saa halutessaan vuokrata lisähintaan 200 €/kk.
Tila vuokrataan vain arvonlisäverovelvolliseen yrityskäyttöön.
Rakennus sijaitsee aidatulla, asfaltoidulla alueella. Yritysalueella on useampi tallentava valvontakamera sekä GSM-ohjatut portit.
Kruunun alueella on kierrätettävien materiaalien keräyspisteet paperille, pahville sekä energia-, puu- että metallijätteelle.
Alueella myös isompia hallitiloja vuokrattavana – kysy tästä lisää!
Kohdetiedot
Sijainti
Katuosoite: Urakoitsijantie 15 A 4, 06450 Porvoo
Kaupunginosa: Ölstens
Ympäristö: Teollisuusalue
Rakennus/huoneisto
Pinta-ala: Noin 150 m²
Rakennustyyppi: Teollisuushalli
Rakennusvuosi: 2006
Huoneistoselitelmä: Halli, varastotila
Energiatodistus: Laki ei edellytä todistusta
Kunto, varusteet ja palvelut: Hyvä kunto, hallitila, erillinen toimistotila, minikeittiö, parvi, wc, suihku, siivouskomero
Lämmitys: Maalämpö
Vapautuu: Heti vapaa
Pysäköinti: Pihassa
Vuokrahinta ja kulut
Kuukausivuokra: 1’500 €/kk + alv
Vesimaksu: Kulutuksen mukaan
Sähkö: Mittauksen mukaan
Lämmitys: Sisältyy vuokraan
Aidattu pihatila: 200 €/kk
Muuta: Minimisopimuskausi 12 kk, vakuus 3 kk:n vuokraa vastaava summa, luottotietojen oltava kunnossa
Vapautuu
Heti
Rakennusvuosi
2006
Katutasossa
Näkyvällä paikalla
Ota yhteyttä
Tilat.fi
KTM, LKV Antti Soivio
Näytä puhelinnumero
0400 446 553
OTM, LKV Riikka Tuominen
Näytä puhelinnumero
0400 551 790
KTM, LKV Maria-Sofia Puhakka
Näytä puhelinnumero
0400-150330
MBA, LKV Susanne Wallenius
Näytä puhelinnumero
0400-128877
LKV Tilat.fi Oy on toimitilojen välitykseen erikoistunut yritys.
http://www.tilat.fiPyydä lisätietoa
