Vuokrataan toimistotilat - Helsinki
Mannerheimintie 15b, Keskusta, 00100 Helsinki #10689342
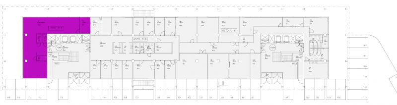
Vuokrattavana ensimmäisen kerroksen avotoimistotilaa entisestä Töölön sokeritehtaasta.
Osoite
Mannerheimintie 15b, 00100 Helsinki
Tilatyyppi
Toimistotilaa
121 m2
Tilajako
Jaettavissa
laajennettavissa 419 m²
Kiinteistö
Vuokrattavana ensimmäisen kerroksen toimistotilaa entisestä Töölön sokeritehtaasta. Tilassa avotilan lisäksi erillinen neuvotteluhuone sekä wc- tilat.
Sijainti
Taka-Töölö, Helsinki
Pysäköinti
Pysäköintitilaa lähellä sijaitsevalla pysäköintialueella.
Palvelut
Kaikki keskustan palvelut lähietäisyydellä.
Kulkuyhteydet
-Raitiovaunu
-Bussi
-Oma auto
-Bussi
-Oma auto
Vapautuu
Heti
Kerros
1
Energiatehokkuusluokka
Ei lain edellyttämää energiatodistusta
Näkyvällä paikalla
Jaettavissa
Hissi
Ota yhteyttä
REALIUM OY LKV
Tammasaarenkatu 1, 00180 Helsinki
Vaihde:
Näytä puhelinnumero
010 326 346
Tuomo Mäkelä
tuomo.makela@realium.fi
p.
Näytä puhelinnumero
044 050 1158
Joel Keto
joel.keto@realium.fi
p.
Näytä puhelinnumero
045 317 0330
KAIKKI TILAVAIHTOEHDOT KERRALLA!
SOITA - MEILAA JA TILAA NÄYTTÖ!
Ilmainen palvelu tilanhakijoille.
Kartoitamme parhaat tilavaihtoehdot.
Kaikki kohteet eivät ole netissä.
Pyydä lisätietoa
