Vuokrataan liiketilat, varastotilat - Helsinki
Navigatortalo, Eteläinen Makasiinikatu 4, Kaartinkaupunki, 00130 Helsinki #10683120
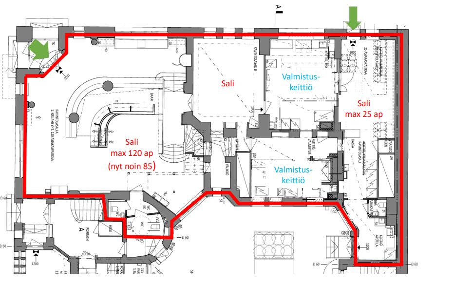
Kaartinkaupungissa, Navigator-talossa vuokrattavana upea 482 m2 (katutaso 324 m2+kellari 158 m2) ravintolatila arvokiinteistön kivijalassa. Tilaan mahtuu 145 asiakaspaikkaa ja siinä on talon tyyliin sopiva näyttävä ruokasali ja täysi valmistuskeittiö, ja kaksi sisäänkäyntiä kadulta. Mahdollisuus parklet-terassiin Unioninkadun puolella. Liiketila on täydellisesti kunnostettu ja varusteltu ravintolakäyttöön.
Ota yhteyttä ja sovi esittely, vuokrauspalvelumme on tilanhakijoille maksuton.
Katutasossa
Näkyvällä paikalla
Senaatin Notariaatti Oy LKV
Lämmittäjänkatu 4 A
FIN-00880 Helsinki
Tel:
Näytä puhelinnumero
+358 9 7745 100
