Vuokrataan/myydään toimistotilat, liiketilat, työtilat - Porvoo
Aleksanterinkatu 22, 06100 Porvoo #10660233
Hyvä liiketila myymäläksi, toimistoksi tai asiakaspalvelutilaksi!
Osoite
Aleksanterinkatu 22, 06100 Porvoo
Tilatyyppi
Toimistotilaa
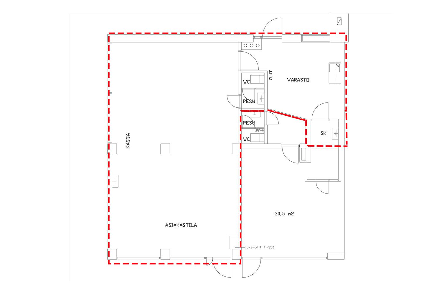
84,5 m2
Liiketilaa
84,5 m2
Työtilaa
84,5 m2
Yhteensä
84,5 m2
Virtuaaliesittely
Tila soveltuu
Koulutus, parturi- ja kampaamo, coworking
Vuokra
1'299 €/kk + alv
Vuokraan sisältyy vesi, lämpö
Myyntihinta
69'900 € (velaton)
Muuta
Porvoon keskustassa myytävänä ja vuokrattavana hyvä selkeäpohjainen liikehuoneisto. Näkyvä paikka Aleksanterinkadun varrella. Isot näyteikkunat ja leveä ovi kadulta.
Tilassa on kampaamolle tai kauneushoitolalle vesipisteet valmiina. Erillinen takahuone, missä pieni keittiö ja siivouskomero. Liikehuoneiston kautta kulku wc-tilaan.
Takakautta kulku lastausoven kautta helpottaa tavaraliikennettä.
Monipuolinen tila näkyvällä paikalla!
Kohdetiedot
Sijainti
Katuosoite: Aleksanterinkatu 22, 06100 Porvoo
Kaupunginosa: Keskusta
Ympäristö: Asuntoja, liikehuoneistoja ja ammattikoulu
Rakennus/huoneisto
Pinta-alat: Noin 84,5 m²
Rakennustyyppi: Kerrostalo
Rakennusvuosi: 1962
Huoneistoselitelmä: Myymälätila/Toimistotila
Hissi: Ei
Kerros: Katutaso
Lämmitys: Kaukolämpö
Kunto, varusteet ja palvelut: Siisti tila. Myymälän/liiketilan avoin tila, keittiö, wc ja siivouskomero.
Vapautuminen: Viimeistään 1.3.2025 (vapautuu tarvittaessa nopeammin)
Myyntihinta ja kulut
Myyntihinta: 60’600 €
Velaton myyntihinta: 69’900 €
Velkaosuus: 9’300 € (tarkentuu kaupanteossa, lyhenee kuukausittain)
Hoitovastike 755,52 €/kk
Rahoitusvastike: 403,05 € (lyhennys 141,66 €/kk)
Lämmitys: Sisältyy vastikkeeseen
Vesimaksu: 48 €/kk
Vuokrahinta ja kulut
Kuukausivuokra: 1’299 € + alv
Lämmitys: Kaukolämpö (sisältyy vuokraan)
Sähkömaksu: Mittauksen mukaan (oma sähkösopimus)
Vesimaksu: Sisältyy vuokraan
Muuta: Vakuus 3kk vuokraa vastaava summa, minimisopimus 12kk ja luottotietojen on oltava kunnossa
Tilassa on kampaamolle tai kauneushoitolalle vesipisteet valmiina. Erillinen takahuone, missä pieni keittiö ja siivouskomero. Liikehuoneiston kautta kulku wc-tilaan.
Takakautta kulku lastausoven kautta helpottaa tavaraliikennettä.
Monipuolinen tila näkyvällä paikalla!
Kohdetiedot
Sijainti
Katuosoite: Aleksanterinkatu 22, 06100 Porvoo
Kaupunginosa: Keskusta
Ympäristö: Asuntoja, liikehuoneistoja ja ammattikoulu
Rakennus/huoneisto
Pinta-alat: Noin 84,5 m²
Rakennustyyppi: Kerrostalo
Rakennusvuosi: 1962
Huoneistoselitelmä: Myymälätila/Toimistotila
Hissi: Ei
Kerros: Katutaso
Lämmitys: Kaukolämpö
Kunto, varusteet ja palvelut: Siisti tila. Myymälän/liiketilan avoin tila, keittiö, wc ja siivouskomero.
Vapautuminen: Viimeistään 1.3.2025 (vapautuu tarvittaessa nopeammin)
Myyntihinta ja kulut
Myyntihinta: 60’600 €
Velaton myyntihinta: 69’900 €
Velkaosuus: 9’300 € (tarkentuu kaupanteossa, lyhenee kuukausittain)
Hoitovastike 755,52 €/kk
Rahoitusvastike: 403,05 € (lyhennys 141,66 €/kk)
Lämmitys: Sisältyy vastikkeeseen
Vesimaksu: 48 €/kk
Vuokrahinta ja kulut
Kuukausivuokra: 1’299 € + alv
Lämmitys: Kaukolämpö (sisältyy vuokraan)
Sähkömaksu: Mittauksen mukaan (oma sähkösopimus)
Vesimaksu: Sisältyy vuokraan
Muuta: Vakuus 3kk vuokraa vastaava summa, minimisopimus 12kk ja luottotietojen on oltava kunnossa
Vapautuu
01.03.2026
Rakennusvuosi
1962
Katutasossa
Näkyvällä paikalla
Lastauslaituri
Ota yhteyttä
Tilat.fi
KTM, LKV Antti Soivio
Näytä puhelinnumero
0400 446 553
OTM, LKV Riikka Tuominen
Näytä puhelinnumero
0400 551 790
KTM, LKV Maria-Sofia Puhakka
Näytä puhelinnumero
0400-150330
HTM, LKV Aleksandra Riki
Näytä puhelinnumero
0400-211288
LKV Tilat.fi Oy on toimitilojen välitykseen erikoistunut yritys.
http://www.tilat.fiPyydä lisätietoa
