Videoesittely
Vuokrataan toimistotilat, varastotilat - Helsinki
Itälahdenkatu 23, Lauttasaari, 00210 Helsinki #10655776
Merellisessä Lauttasaaressa viihtyisiä toimistotiloja 8-207 m² sekä näyttely- ja varastotilaa. Metroasemalta noin 1 km.
Osoite
Itälahdenkatu 23, 00210 Helsinki
Tilatyyppi
Toimistotilaa
8 - 728 m2
Varastotilaa
35 - 145 m2
Yhteensä
43 - 873 m2
Tilajako
Jaettavissa
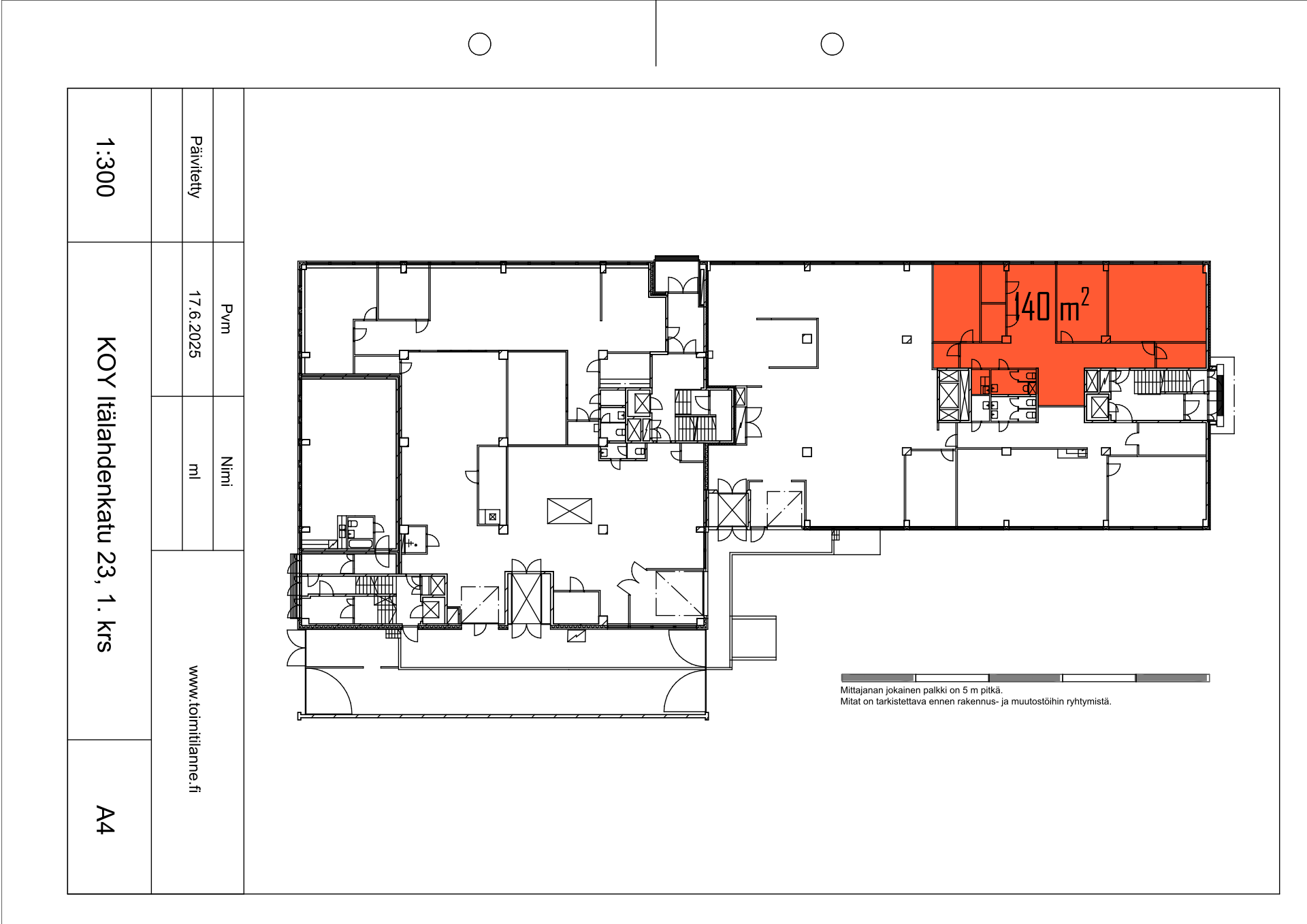
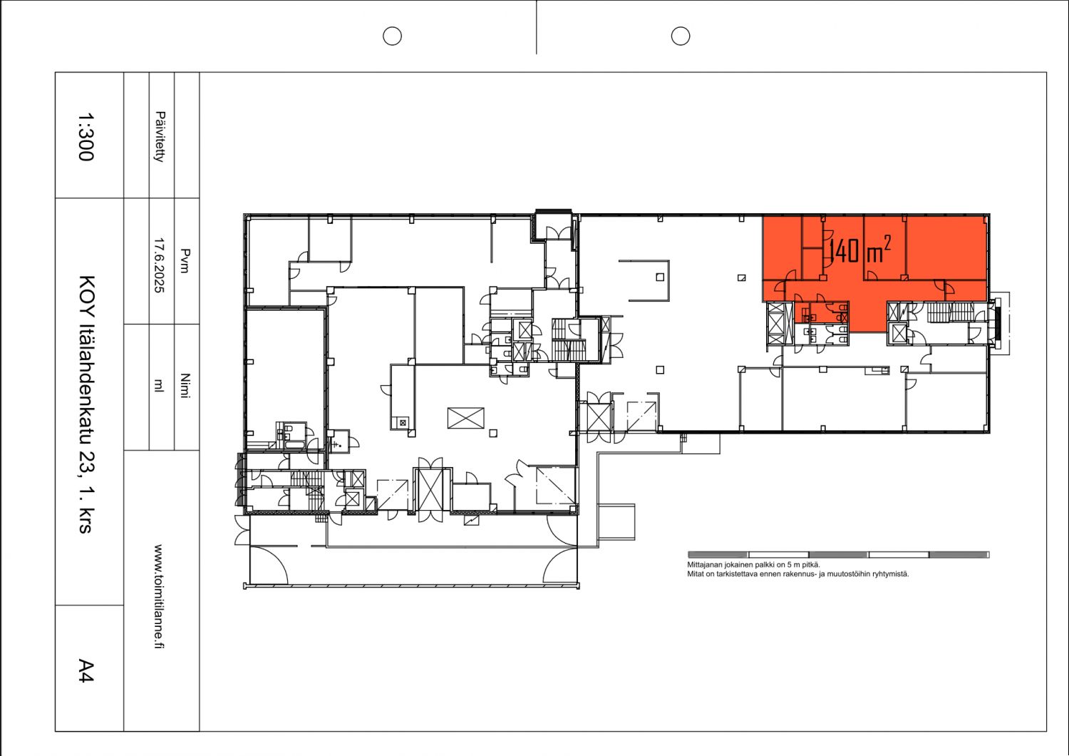
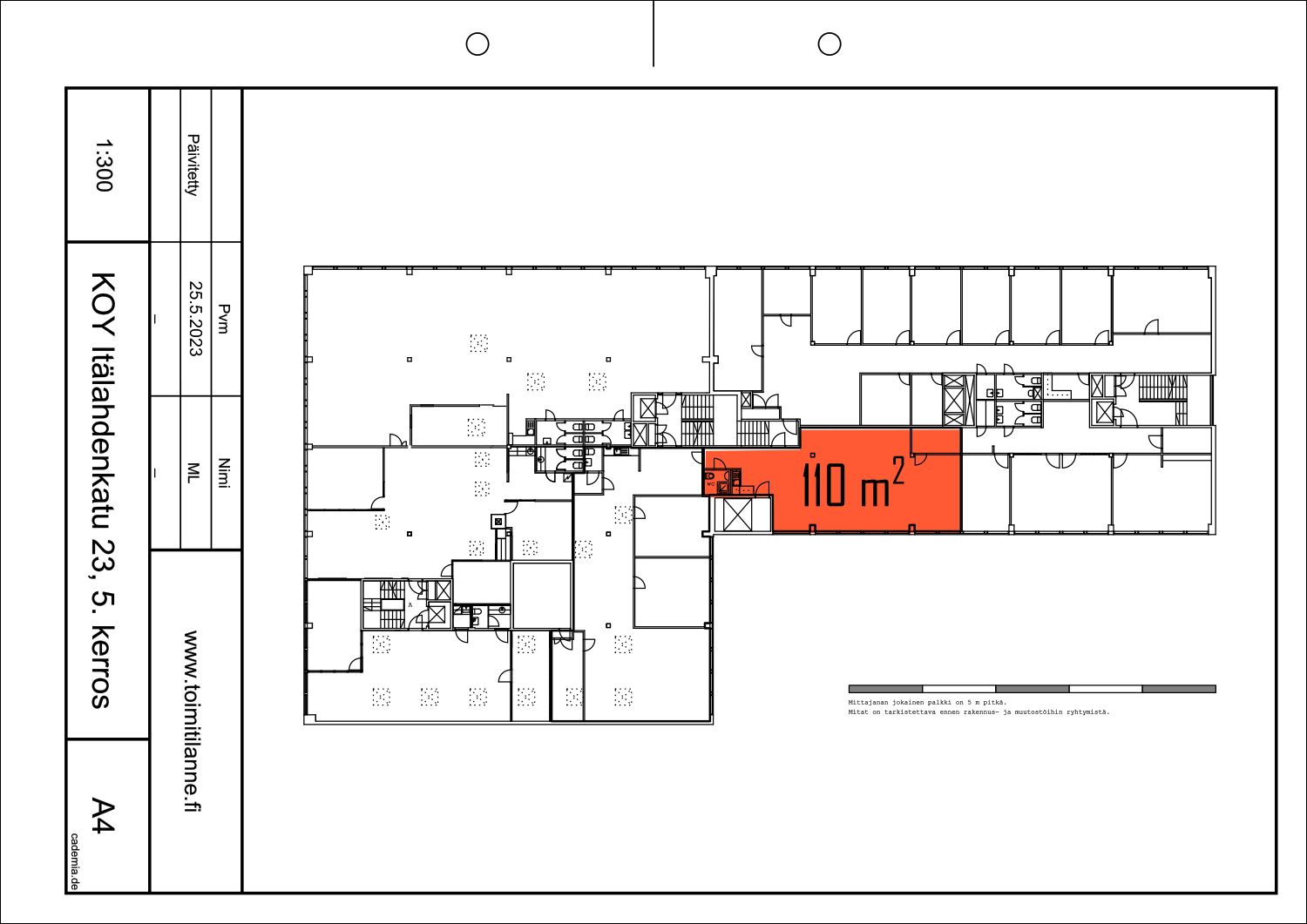
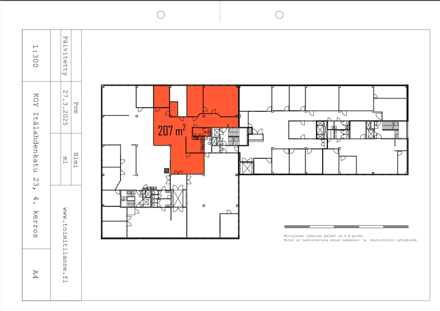
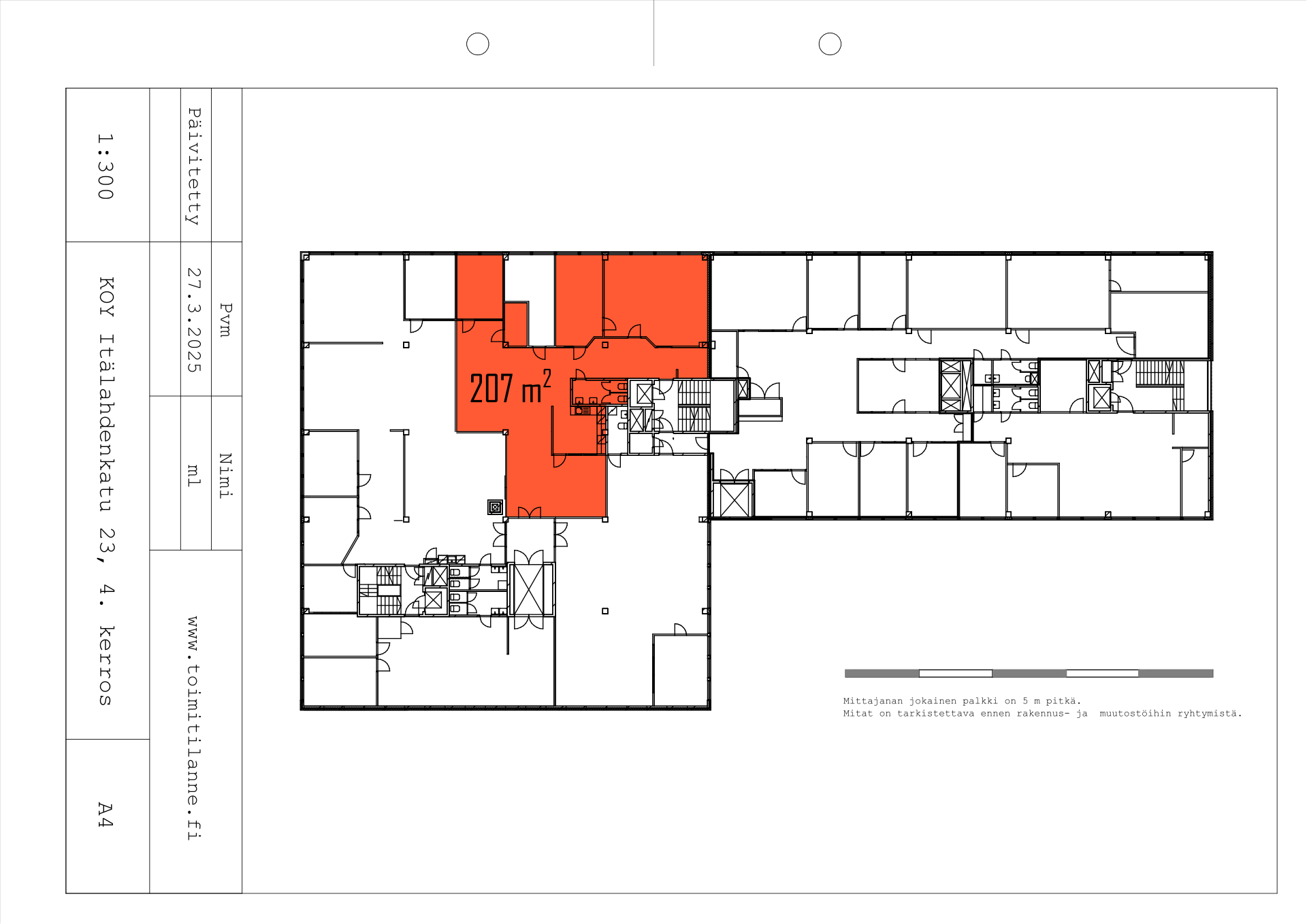
Vapaat toimistotilat: 8 m², 24 m², 110 m², 118 m², 121 m², 140 m² ja 207 m².
Vapaat varastotilat: 35 m², 110 m²
Vapaat toimisto- ja varastotilat: 160 m²
Pohjapiirros
Kiinteistö
Itälahdenkatu 23:sta (Melkonkatu 24) vuokrataan toimistotilaa työhuoneista mahdollisiin esittelytiloihin (showroom) mutta myös varastotilaa. Kolmannessa kerroksessa on kuuden toimistohuoneen toimistohotelli.
Helsingin Lauttasaaressa sijaitseva toimistorakennus on valmistunut 1970-luvulla. Sen kokonaispinta-ala on 7000 m².
Rakennuksessa on viisi kerrosta ja kellarikerros. Henkilöhissit kulkevat kaikkiin kerroksiin, tavarahissit kellarista 4. kerrokseen asti. Lastauslaituri.
Helsingin Lauttasaaressa sijaitseva toimistorakennus on valmistunut 1970-luvulla. Sen kokonaispinta-ala on 7000 m².
Rakennuksessa on viisi kerrosta ja kellarikerros. Henkilöhissit kulkevat kaikkiin kerroksiin, tavarahissit kellarista 4. kerrokseen asti. Lastauslaituri.
Ympäristö
Toimitilojen lähistöllä on useita lounasravintoloita.
Pysäköinti
Kohteessa on omia parkkipaikkoja.
Kulkuyhteydet
Bussi 21 Kampista ja Lauttasaaren metroasemalta. Metroasemalta on matkaa noin 1 km.
Vuokralaisia
Itälahdenkatu 23:sta miltei puolet on vuokrattu tukku- ja vähittäiskaupan tai agentuuritoiminnan harjoittamiseen.
Muuta
Vapaat toimistotilat: 110 m², 118 m², 121 m², 140 m² (katutaso) ja 207 m². Lisäksi toimistohuoneita.
Vapaat varastotilat: 35 m² (tavarahissi) 4. kerroksessa ja 110 m² katutasossa (lastauslaituri).
Vapaat toimisto- ja varastotilat: 160 m² (tavarahissiyhteys lastauslaiturilta)
Kiinteistössä on kunnon lastauslaiturit ja kaksi tavarahissiä.
Vapaat varastotilat: 35 m² (tavarahissi) 4. kerroksessa ja 110 m² katutasossa (lastauslaituri).
Vapaat toimisto- ja varastotilat: 160 m² (tavarahissiyhteys lastauslaiturilta)
Kiinteistössä on kunnon lastauslaiturit ja kaksi tavarahissiä.
Vapautuu
Heti
Näkyvällä paikalla
Jaettavissa
Hissi
Lastauslaituri
Ota yhteyttä
Toimitilanne Suomi
Björn Lindgren, p.
Näytä puhelinnumero
041 581 8560
Siilitie 8a A
00800 HELSINKI
Pyydä lisätietoa
