Vuokrataan liiketilat, näyttelytilat, tuotantotilat, varastotilat, työtilat - Järvenpää
Satukukanpolku 5, 04430 Järvenpää #10624071
MONITOIMITILA on helposti räätälöitävä ja asiakaslähtöinen, monenlaiseen toimintaan soveltuva toimitilaratkaisu PK-yrityksille.
Osoite
Satukukanpolku 5, 04430 Järvenpää
Tilatyyppi
Liiketilaa
98 - 490 m2
Näyttelytilaa
98 - 490 m2
Tuotantotilaa
98 - 490 m2
Varastotilaa
98 - 490 m2
Työtilaa
98 - 490 m2
Yhteensä
98 - 490 m2
Tilajako
Jaettavissa
Kiinteistö
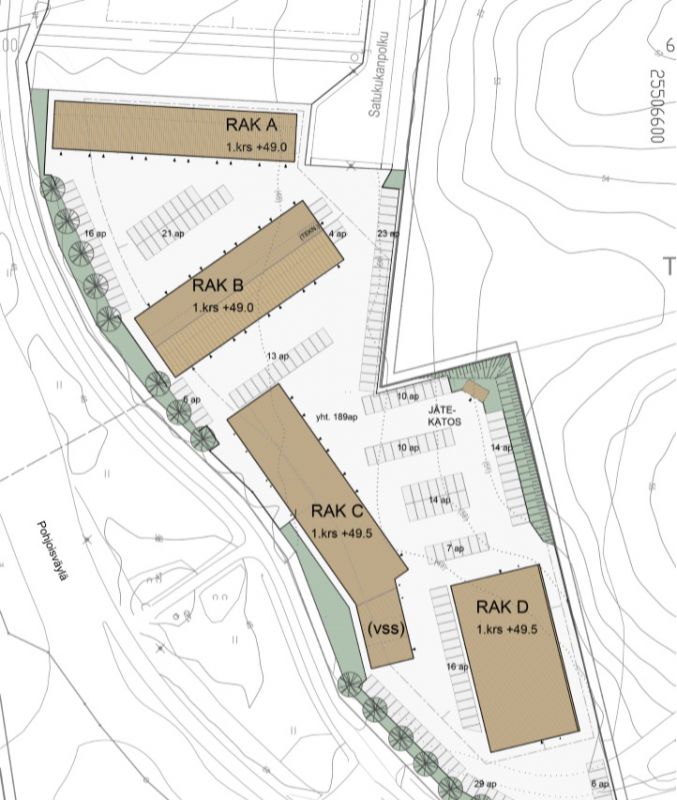
Järvenpään Monitoimitilat on uutta vastaava kiinteistö paraatipaikalla, Pohjoisväylän varrella ja Lahden moottoritien vieressä, Poikkitien liikenneympyrän kohdalla olevalle näkyvälle tontille.
Monitoimitilat -konseptin mukainen kohde on suuruudeltaan 5.425 m2 koostuen neljästä rakennuksesta.
Vuokrattavissa olevat tilakoot:
A-talo: 98 + 2 x 196 m2. Eli kolme tilaa, voidaan tarvittaessa yhdistää ja poistaa väliseinät. Yhteensä 5 nosto-ovea, erilliset käyntiovet. Pysäköintitilat yhtiön pihalla.
Lisäksi vuokrattavissa B-talossa 160+160 m2 suuruinen kokonaisuus (yhdessä tai erikseen). Ko. tilat soveltuvat autopesulatoimintaan. 4 kpl nosto-ovia, erilliset käyntiovet.
Monitoimitilat -konseptin mukainen kohde on suuruudeltaan 5.425 m2 koostuen neljästä rakennuksesta.
Vuokrattavissa olevat tilakoot:
A-talo: 98 + 2 x 196 m2. Eli kolme tilaa, voidaan tarvittaessa yhdistää ja poistaa väliseinät. Yhteensä 5 nosto-ovea, erilliset käyntiovet. Pysäköintitilat yhtiön pihalla.
Lisäksi vuokrattavissa B-talossa 160+160 m2 suuruinen kokonaisuus (yhdessä tai erikseen). Ko. tilat soveltuvat autopesulatoimintaan. 4 kpl nosto-ovia, erilliset käyntiovet.
Sijainti
Yritysalue sijaitsee Keski-Uudenmaan ytimessä parhaalla paikalla. Alue tulee olemaan seudullisesti merkittävä kaupan ja teollisuuden keskittymä.
Ympäristö
Kohde sijaitsee Pohjoisväylän varressa välittömästi Lahden väylän läheisyydessä.
Alueella sijaitsee lukuisia yrityksiä mm.:
Mäkelän Kone, Lidl, K-Rauta, Puuilo, Nixi-keittiöt, Neste, Laattapiste
Alueella sijaitsee lukuisia yrityksiä mm.:
Mäkelän Kone, Lidl, K-Rauta, Puuilo, Nixi-keittiöt, Neste, Laattapiste
Pysäköinti
Yhtiön omalla tontilla
Kulkuyhteydet
Pohjoisväylä
Lahdenväylä
Lahdenväylä
Muuta
Monitoimitilat ovat uudishankkeita, jotka sijaitsevat aina omalla tontilla, ja jokaiseen tilaan kuuluu omat autopaikat. Tilojen harkittu sijainti mahdollistaa sujuvan logistiikan.
Monitoimitilat -kiinteistöihin suunnitellut pohjaratkaisut mahdollistavat tilojen
muunneltavuuden. Myös talotekniikassa on valmiiksi huomioitu mahdolliset muutostarpeet. Näin tiloja voidaan muokata joustavasti käyttäjän tarpeiden mukaan tuotanto-, varasto-, toimisto- ja näyttelytiloiksi.
Kiinteistöjen ulkonäössä huomioidaan myös yritysten tarpeet edustavalle julkisivulle ja ympäristölle, ovathan toimitilat yrityksen käyntikortti.
Kohteissa voidaan hyödyntää yhtiöön vuosien mittaan kumuloitunut tietotaito monitoimitilojen toteutuksessa.
Tilojen korkeatasoinen varustelu mahdollistaa tilojen sopivuuden monille eri toimialoille ja toimijoille.
Arvot asiakkaalle:
* Yritysten muuttuviin tarpeisiin suunnitellut, helposti muunneltavat tilat
* Tilat joustavasti yhdisteltävissä suuremmiksikin kokonaisuuksiksi
* Varustelu helposti räätälöitävissä
* Soveltuvuus monenlaiseen toimintaan
* Tyylikkäät ja nykyaikaiset toimitilat
* Hyvä sijainti
* Kustannustehokkuus
Monitoimitilat -kiinteistöihin suunnitellut pohjaratkaisut mahdollistavat tilojen
muunneltavuuden. Myös talotekniikassa on valmiiksi huomioitu mahdolliset muutostarpeet. Näin tiloja voidaan muokata joustavasti käyttäjän tarpeiden mukaan tuotanto-, varasto-, toimisto- ja näyttelytiloiksi.
Kiinteistöjen ulkonäössä huomioidaan myös yritysten tarpeet edustavalle julkisivulle ja ympäristölle, ovathan toimitilat yrityksen käyntikortti.
Kohteissa voidaan hyödyntää yhtiöön vuosien mittaan kumuloitunut tietotaito monitoimitilojen toteutuksessa.
Tilojen korkeatasoinen varustelu mahdollistaa tilojen sopivuuden monille eri toimialoille ja toimijoille.
Arvot asiakkaalle:
* Yritysten muuttuviin tarpeisiin suunnitellut, helposti muunneltavat tilat
* Tilat joustavasti yhdisteltävissä suuremmiksikin kokonaisuuksiksi
* Varustelu helposti räätälöitävissä
* Soveltuvuus monenlaiseen toimintaan
* Tyylikkäät ja nykyaikaiset toimitilat
* Hyvä sijainti
* Kustannustehokkuus
Vapautuu
Heti
Rakennusvuosi
2020
Uudiskohde
Katutasossa
Näkyvällä paikalla
Jaettavissa
Ota yhteyttä
Conorin
Toimitilojen vuokraus ja myynti
Näytä puhelinnumero
09 - 612 2230
Toimisto
Valimotie 17-19
Helsinki
Kaikki vapaat tilamme:
vapaat.toimitilat.fi/conorin
Pyydä lisätietoa
