Lataa pohjapiirros [PDF]
Pohjapiirros
Lataa pohjapiirros [PDF]
Pohjapiirros
Lataa pohjapiirros [PDF]
Pohjapiirros
Lataa pohjapiirros [PDF]
Pohjapiirros
Lataa pohjapiirros [PDF]
Pohjapiirros
Vuokrataan toimistotilat - Helsinki
Sentnerinkuja 1, Lassila, 00440 Helsinki #10595251
Vuokrataan Lassilasta hyvien julkisten liikenneyhteyksien varrelta modernia ja muunneltavaa toimistotilaa n. 50-380 hengen organisaatioille. Tilat ovat joustavasti muokattavissa yhdelle tai usealle organisaatiolle, kerrokset n. 1500 m2 voidaan helposti jakaa kahteen osaan.
Osoite
Sentnerinkuja 1, 00440 Helsinki
Tilatyyppi
Toimistotilaa
1565 m2
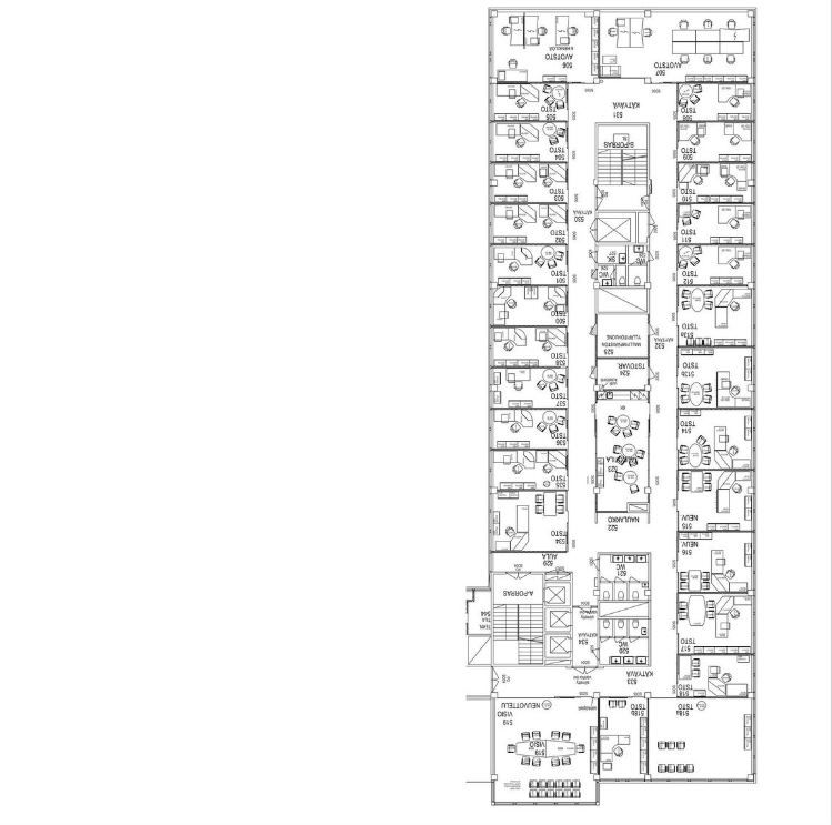
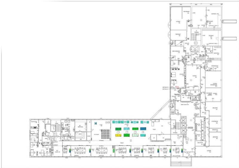
Pohjapiirros
Kiinteistö
Sentnerinkuja 1 sisältää vuokrattavia toimistotiloja 2.-5. kerroksessa yht. n. 5700 m2. Kiinteistössä on mm. aulapalvelupiste, kokouskeskus, sauna-osasto, pukeutumis- ja peseytymistilat, ym.
Pysäköinti
Kiinteistön pihalla 70 pysäköintipaikkaa. Vieressä Sentnerinkuja 4:ssä on myös pysäköintitalo, josta vuokrattavissa pysäköintipaikkoja. Lisäksi 2-4 tunnin kadunvarsipaikkoja esim. vieraspysäköintiin.
Kulkuyhteydet
Juna ja linja-autot.
Vapautuu
Heti
Energiatehokkuusluokka
Ei lain edellyttämää energiatodistusta
Ota yhteyttä
Senaatin Notariaatti Oy LKV
Lämmittäjänkatu 4 A
FIN-00880 Helsinki
Tel:
Näytä puhelinnumero
+358 9 7745 100
Pyydä lisätietoa
