Vuokrataan toimistotilat, tuotantotilat - Hyvinkää
Harkkokatu 2, 05800 Hyvinkää #10525177
Elintarviketeollisuuden käyttöön sopivaa tuotantotilaa Hyvinkäällä. Optimaalinen tila myös logistiikkakäyttöön, erilaiseen tuotantoon tai varastointiin.
Toimistotilaa on n. 30-70 m² tarpeen mukaan
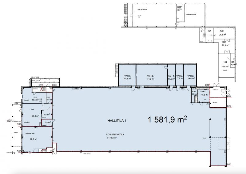
Koko kiinteistö 4470 m² .
Betonirunkoinen ja -pintainen teollisuushalli. Tila on toiminut leipomokäytössä ja viimeksi elintarvikkeiden teollisessa valmistuksessa.
Vuokrattava tila soveltuu elintarvekeollisuuden lisäksi monipuolisesti tuotanto-, varasto- ja logistiseen käyttöön.
Vuokrattava tila koostuu avoimesta ja pilarittomasta hallitilasta, jonka toisessa päässä on pukuhuonetilat (2. krs) ja toimistohuone sekä niiden sisäänkäynti ja kulkuyhteys lastauslaiturille sekä autotalli, josta myös yhteys halliosaan.
Toisesta päästä on nosto-ovellinen kulkuyhteys halliin sekä lisää toimistotilaa 2. kerroksessa.
Katutasossa
Näkyvällä paikalla
Lastauslaituri
Rentto Oy
Niinistönkatu 12 A
05800
Hyvinkää
Eeva Vanhatalo
Myyntipäällikkö LKV, KiAT
Näytä puhelinnumero
040 7070 868
Rentto Oy vuokraa monipuolisesti kaikki yrityksesi tarvitsemat tilat Keski-Uudenmaan alueella. Meiltä löydät toimisto-, teollisuus- ja coworking-tilat sekä kaikkea siltä väliltä!
Tilamme sijaitsevat keskeisillä paikoilla, hyvien liikenneyhteyksien varrella. Kohteet ovat räätälöitävissä yrityksesi tarpeiden mukaisesti tai rakennettavissa alusta asti avaimet käteen -periaatteella!
Rentto Oy:llä on lisäksi Espoossa juhla- ja kokouskäyttöön vuokrattava merenrantahuvila Villa Åkerblom.
