Vuokrataan tuotantotilat, varastotilat, työtilat, autotalli/-hallitilat - Porvoo
Urakoitsijantie 3, 06450 Porvoo #10512012
Vuokrataan korkea hallitila hyvällä sijainnilla!
Osoite
Urakoitsijantie 3, 06450 Porvoo
Tilatyyppi
Tuotantotilaa
225 m2
Varastotilaa
225 m2
Työtilaa
225 m2
Autotalli/-hallitilaa
225 m2
Yhteensä
225 m2
Virtuaaliesittely
Vuokra
1’490 €/kk + alv
Muuta
Ölstensin teollisuusalueella on noin 255 m² varasto- ja hallitila vuokrattavana. Hyvä ja selkeä hallitila, joka soveltuu monenlaiseen käyttöön ja varastointiin
Hallitila soveltuu autokorjaamo käyttöön, mutta tilassa ei saa jatkossa pitää autopesulaa.
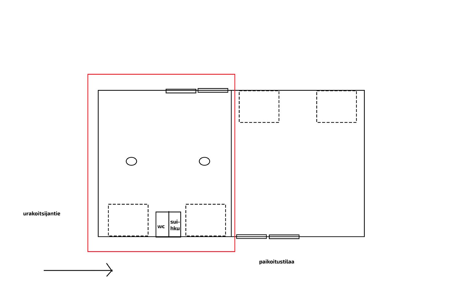
Syvyys on 14,5 metriä ja leveys noin 17,5 metriä. Tilan hyvään varusteluun kuuluu vesipiste, wc, suihku sekä kaksi lattiakaivoa hiekan ja öljynerotuksella. Halliin on käyntiovelliset paljeovet (L4,0 m x K4,0 m). Vapaa korkeus tilassa 5,3 metriä. Lämmitys sähköllä (ilmalämpöpumppu). Tilassa on painovoimainen ilmanvaihto.
Ölstensin yritysalue sijaitsee muutaman kilometrin päässä Porvoon keskustasta. Alueelta on erinomaiset liikenneyhteydet Porvoon moottoritielle läheisen Treksilän liittymän kautta.
Moneen soveltuva halli moottoritien läheisyydessä!
Kohdetiedot
Sijainti
Katuosoite: Urakoitsijantie 3, 06450 Porvoo
Kaupunginosa: Ölstens
Ympäristö: Teollisuusalue
Rakennus/huoneisto
Pinta-alat: 225 m²
Rakennustyyppi: Teollisuusrakennus
Rakennusvuosi: 2007
Energiatodistus: Laki ei edellytä
Huoneistoselitelmä: Teollisuusvarastohallitila
Kunto, varusteet ja palvelut: Käyntiovelliset paljeovet (2kpl), lattiakaivo hiekan ja öljyn erotuksella, suihku ja wc-tilat
Lämmitys: Sähköllä (ilmalämpöpumppu)
Vapautuminen: 1.6.2026
Vuokrahinta ja kulut
Kuukausivuokra: 1’490 €/kk + alv
Vesimaksu: Mittauksen/taksojen mukaan
Sähkö: Mittauksen mukaan (oma sopimus)
Lämmitys: Sähköllä vuokralaisen lukuun/kustannuksella
Auraus talvella: Vuokralainen vastaa kuluista ja järjestelyistä
Jätehuolto: Vuokralainen vastaa kuluista ja järjestelyistä
Muut ehdot: Minimisopimuskausi 12 kk, vakuus 3 kk:n vuokraa vastaava summa, luottotietojen oltava kunnossa
Hallitila soveltuu autokorjaamo käyttöön, mutta tilassa ei saa jatkossa pitää autopesulaa.
Syvyys on 14,5 metriä ja leveys noin 17,5 metriä. Tilan hyvään varusteluun kuuluu vesipiste, wc, suihku sekä kaksi lattiakaivoa hiekan ja öljynerotuksella. Halliin on käyntiovelliset paljeovet (L4,0 m x K4,0 m). Vapaa korkeus tilassa 5,3 metriä. Lämmitys sähköllä (ilmalämpöpumppu). Tilassa on painovoimainen ilmanvaihto.
Ölstensin yritysalue sijaitsee muutaman kilometrin päässä Porvoon keskustasta. Alueelta on erinomaiset liikenneyhteydet Porvoon moottoritielle läheisen Treksilän liittymän kautta.
Moneen soveltuva halli moottoritien läheisyydessä!
Kohdetiedot
Sijainti
Katuosoite: Urakoitsijantie 3, 06450 Porvoo
Kaupunginosa: Ölstens
Ympäristö: Teollisuusalue
Rakennus/huoneisto
Pinta-alat: 225 m²
Rakennustyyppi: Teollisuusrakennus
Rakennusvuosi: 2007
Energiatodistus: Laki ei edellytä
Huoneistoselitelmä: Teollisuusvarastohallitila
Kunto, varusteet ja palvelut: Käyntiovelliset paljeovet (2kpl), lattiakaivo hiekan ja öljyn erotuksella, suihku ja wc-tilat
Lämmitys: Sähköllä (ilmalämpöpumppu)
Vapautuminen: 1.6.2026
Vuokrahinta ja kulut
Kuukausivuokra: 1’490 €/kk + alv
Vesimaksu: Mittauksen/taksojen mukaan
Sähkö: Mittauksen mukaan (oma sopimus)
Lämmitys: Sähköllä vuokralaisen lukuun/kustannuksella
Auraus talvella: Vuokralainen vastaa kuluista ja järjestelyistä
Jätehuolto: Vuokralainen vastaa kuluista ja järjestelyistä
Muut ehdot: Minimisopimuskausi 12 kk, vakuus 3 kk:n vuokraa vastaava summa, luottotietojen oltava kunnossa
Vapautuu
01.06.2026
Rakennusvuosi
2007
Kerros
1 / 1
Katutasossa
Näkyvällä paikalla
Ota yhteyttä
Tilat.fi
KTM, LKV Antti Soivio
Näytä puhelinnumero
0400 446 553
OTM, LKV Riikka Tuominen
Näytä puhelinnumero
0400 551 790
KTM, LKV Maria-Sofia Puhakka
Näytä puhelinnumero
0400-150330
HTM, LKV Aleksandra Riki
Näytä puhelinnumero
0400-211288
LKV Tilat.fi Oy on toimitilojen välitykseen erikoistunut yritys.
http://www.tilat.fiPyydä lisätietoa
