Myydään/sijoituskohde tuotantotilat, varastotilat, työtilat - Helsinki
Lyhtytie 4, Suutarila, 00750 Helsinki #10510803
Sijoituskohteeksi 681 m2 tuotanto-/toimistokiinteistö hyvällä sijainnilla. Aidattu piha.
Täyteen vuokrattu, tuotto yli 9,4%.
Osoite
Lyhtytie 4, 00750 Helsinki
Tilatyyppi
Tuotantotilaa
681 m2
Varastotilaa
681 m2
Työtilaa
681 m2
Yhteensä
681 m2
Myyntihinta
950.000
Kiinteistö
Loistavalla sijainnilla Kehä-III vieressä aidatulla pihalla oleva kiinteistö, joka on täyteen vuokrattu (yhdelle käyttäjälle). Vuokralainen vastaa hoitokuluista.
Myydään osittain 2-kerroksisen monitoimikiinteistön / kiinteistöyhtiön koko osakekanta. Aidattu piha.
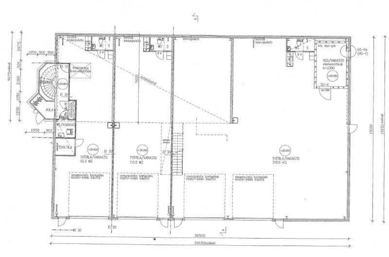
1.krs tuotanto-/varastotilaa, useita nosto-ovia ja erilliset käyntiovet.
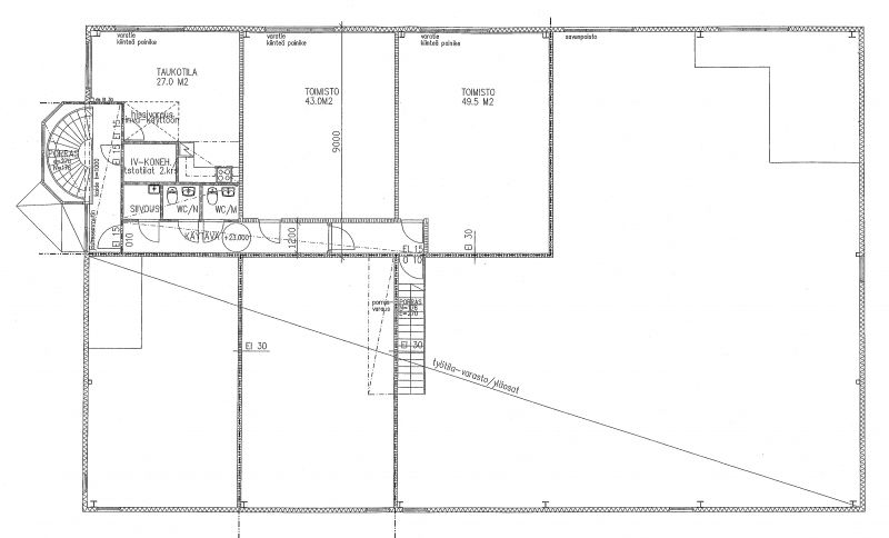
2.krs toimisto-/taukotilaa.
Velaton hinta: 950.000 euroa
Yhtiölainan siirto mahdollinen.
Tilat 1. kerroksessa yht. 534m2 -> 222 m2 + 110 m2 + 110 m2 + 92 m2
Toimistot 2. krs yht. 147m2 -> 61 m2+53 m2 + 33 m2
- Sähkölämmitys + ilmalämpöpumput
- Koneellinen ilmanvaihto
- Rakennusvuosi 2006
- Hallitiloissa wc, suihku, öljynerotuskaivo, korkea nosto-ovi.
- Toimistokäytävällä yhteiskäyttöiset wc:t.
Myydään osittain 2-kerroksisen monitoimikiinteistön / kiinteistöyhtiön koko osakekanta. Aidattu piha.
1.krs tuotanto-/varastotilaa, useita nosto-ovia ja erilliset käyntiovet.
2.krs toimisto-/taukotilaa.
Velaton hinta: 950.000 euroa
Yhtiölainan siirto mahdollinen.
Tilat 1. kerroksessa yht. 534m2 -> 222 m2 + 110 m2 + 110 m2 + 92 m2
Toimistot 2. krs yht. 147m2 -> 61 m2+53 m2 + 33 m2
- Sähkölämmitys + ilmalämpöpumput
- Koneellinen ilmanvaihto
- Rakennusvuosi 2006
- Hallitiloissa wc, suihku, öljynerotuskaivo, korkea nosto-ovi.
- Toimistokäytävällä yhteiskäyttöiset wc:t.
Sijainti
Hyvällä sijainnilla, halutulla alueella Suutarilassa.
Ympäristö
Suutarilan yritysalueella, Kehä-III välittömässä läheisyydessä.
Pysäköinti
Omalla pihalla, kadulla
Palvelut
Alueella ravintolat, pankit Tikkurila ja Aviapolis, juna, lentokenttä.
Kulkuyhteydet
Kehä-III:n vieressä, Bussit, Juna Tikkurilasta/Puistolasta
Vapautuu
Heti
Ota yhteyttä
Conorin
Toimitilojen vuokraus ja myynti
Näytä puhelinnumero
09 - 612 2230
Toimisto
Valimotie 17-19
Helsinki
Kaikki vapaat tilamme:
vapaat.toimitilat.fi/conorin
Pyydä lisätietoa
