Vuokrataan toimistotilat - Helsinki
Strömbergintie 1, Pitäjänmäki, 00380 Helsinki #9995355
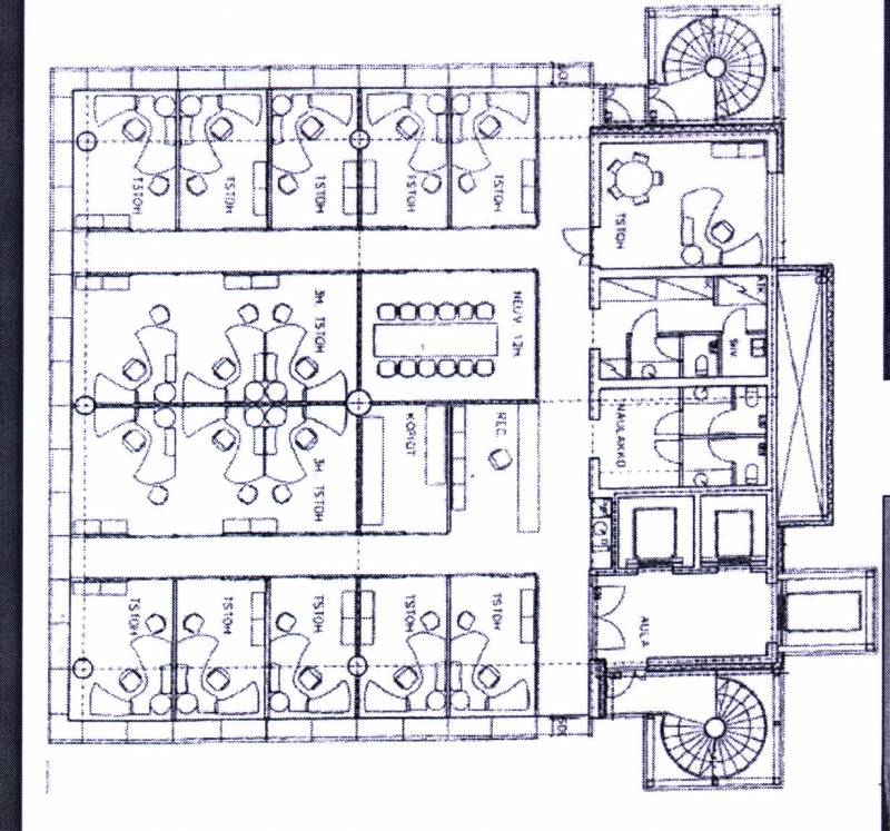
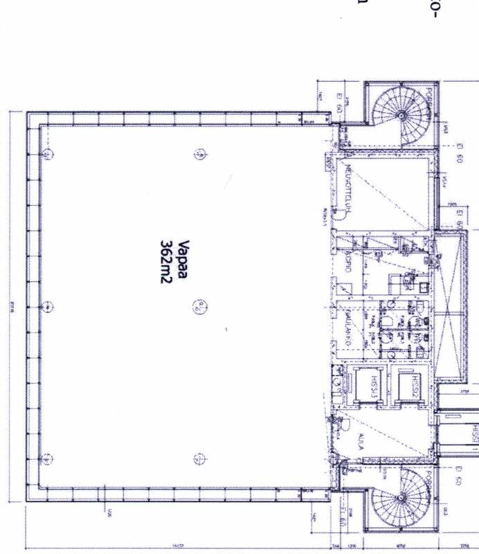
Modernia ja taloteknisesti nykyaikaiset vaatimukset täyttävää avo-/kombi- tai huonetilaksi muunneltavaa toimistotilaa Pitäjänmäen juna-aseman läheisyydessä.
Osoite
Strömbergintie 1, 00380 Helsinki
Tilatyyppi
Toimistotilaa
362 m2
Vapautuu
Kysy
Energiatehokkuusluokka
Ei lain edellyttämää energiatodistusta
Ota yhteyttä
Senaatin Notariaatti Oy LKV
Lämmittäjänkatu 4 A
FIN-00880 Helsinki
Tel:
Näytä puhelinnumero
+358 9 7745 100
Pyydä lisätietoa
